647 Stagecoach Road Mantorville, MN 55955 - Zumbro River - South Fork
For Sale MLS# 6794290
4 beds 2 baths 2,228 sq ft Single Family
Details for 647 Stagecoach Road
MLS# 6794290
Description for 647 Stagecoach Road, Mantorville, MN, 55955 - Zumbro River - South Fork
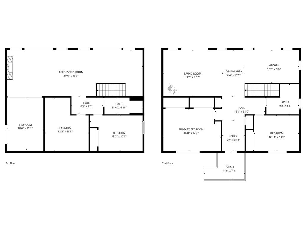
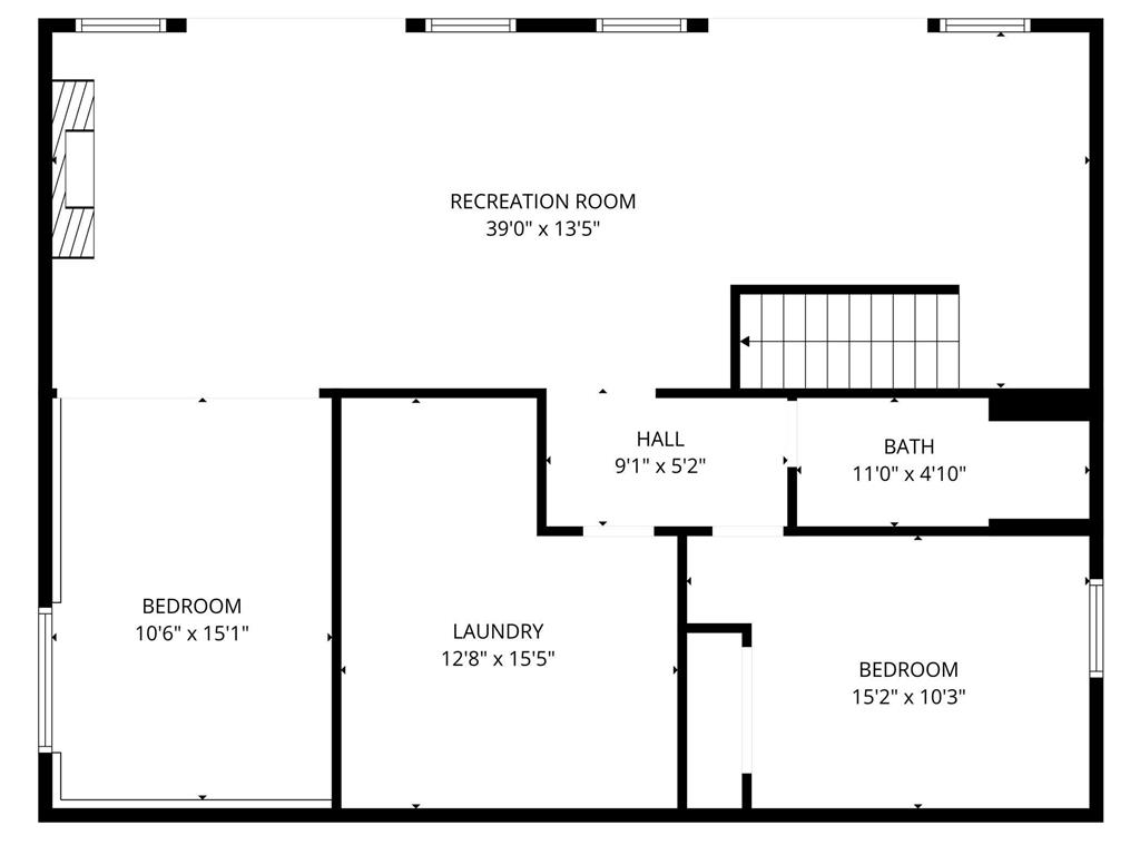
This potential short sale offers a unique "city-meets-country" lifestyle on a paved road with city water and sewer. While the main house requires cosmetic repairs including some drywall, paint, and flooring, it sits on expansive acreage featuring a stone lined creek, a circular driveway with two entrances off Stagecoach Road, and a full length deck. The main level boasts an open concept kitchen and living room anchored by a heating stove and oversized windows for southern exposure. A wide staircase leads to the walkout lower level family room, two additional bedrooms, and laundry. External amenities include a detached garage with a heated and cooled bonus room behind, an extra deck, and a finished hobby shed. All offers are welcomed, subject to bank approval.
Listing Information
Property Type: Residential, Single Family, Acreage,Ranch-Style Home,Rural Residential, Farm
Status: Active
Bedrooms: 4
Bathrooms: 2
Lot Size: 3.56 Acres
Square Feet: 2,228 sq ft
Year Built: 1977
Foundation: 1,200 sq ft
Garage: Yes
Stories: 1 Story
Subdivision: Pioneer Trails Add
County: Dodge
Days On Market: 160
Construction Status: Previously Owned
School Information
District: 204 - Kasson-Mantorville
Room Information
Main Floor
Bathroom:
Bedroom 1:
Bedroom 2:
Kitchen:
Lower Floor
Bathroom:
Bedroom 3:
Bedroom 4:
Family Room:
Bathrooms
Full Baths: 1
3/4 Baths: 1
Additonal Room Information
Family: Family Room,Lower Level
Dining: Kitchen/Dining Room,Living/Dining Room
Laundry: In Basement, Laundry Room
Bath Description: Basement,Main Floor 3/4 Bath,Main Floor Full Bath
Interior Features
Square Footage above: 1,200 sq ft
Square Footage below: 1,028 sq ft
Appliances: Range, Refrigerator, Dryer, Dishwasher, Washer
Basement: Walkout, Finished (Livable), Egress Windows, Full
Fireplaces: 2, Gas Burning, Family Room, Living Room
Accessibility: Other
Additional Interior Features: Kitchen Window, Main Floor Bedroom
Utilities
Water: City Water/Connected
Sewer: City Sewer/Connected
Cooling: Wall
Heating: Baseboard, Natural Gas
Exterior / Lot Features
Garage Spaces: 2
Open Parking: 8
Parking Description: Heated Garage, Detached Garage, gravel lot, Driveway - Gravel, Parking Lot, Garage Dimensions - 24' X 40', Garage Door Height - 7, Garage Door Width - 14, Garage Sq Ft - 960.0
Exterior: Metal, Brick/Stone
Roof: Asphalt Shingles, Age Over 8 Years, Architectural Shingle
Lot View: West
Lot Dimensions: 248' X 625"
Farm Type: Hobby,Wooded/Hunting
Zoning: Other
Topography: Solar Oriented, Walkout, Wooded, Gently Rolling
Additional Exterior/Lot Features: Panoramic View, Patio, Deck, Tree Coverage - Heavy, Underground Utilities, Road Frontage - City, Paved Streets
Out Buildings: Garage(s), Shed - Machine, Workshop
Wooded Acres: 2
Waterfront Details
Standard Water Body: Zumbro River - South Fork
DNR Lake ID: S9990238
Water Front Features: Creek/Stream
Driving Directions
Turn right onto County Rd 5 NW. Turn left toward 600th St. Continue onto 600th St. Turn left onto 237th Ave. Turn right onto 605th St/Stagecoach Rd. Destination is on the left.
Financial Considerations
Tax/Property ID: 255010050
Tax Amount: 4256
Tax Year: 2025
HomeStead Description: Homesteaded
A broker reciprocity listing courtesy: Dwell Realty Group LLC
The data relating to real estate for sale on this web site comes in part from the Broker Reciprocity℠ Program of the Regional Multiple Listing Service of Minnesota, Inc. Real estate listings held by brokerage firms other than Edina Realty, Inc. are marked with the Broker Reciprocity℠ logo or the Broker Reciprocity℠ thumbnail and detailed information about them includes the name of the listing brokers. Edina Realty, Inc. is not a Multiple Listing Service (MLS), nor does it offer MLS access. This website is a service of Edina Realty, Inc., a broker Participant of the Regional Multiple Listing Service of Minnesota, Inc. IDX information is provided exclusively for consumers personal, non-commercial use and may not be used for any purpose other than to identify prospective properties consumers may be interested in purchasing. Open House information is subject to change without notice. Information deemed reliable but not guaranteed.
Copyright 2026 Regional Multiple Listing Service of Minnesota, Inc. All Rights Reserved.
Payment Calculator
Interest rate and annual percentage rate (APR) are based on current market conditions, are for informational purposes only, are subject to change without notice and may be subject to pricing add-ons related to property type, loan amount, loan-to-value, credit score and other variables. Estimated closing costs used in the APR calculation are assumed to be paid by the borrower at closing. If the closing costs are financed, the loan, APR and payment amounts will be higher. If the down payment is less than 20%, mortgage insurance may be required and could increase the monthly payment and APR. Contact us for details. Additional loan programs may be available. Accuracy is not guaranteed, and all products may not be available in all borrower's geographical areas and are based on their individual situation. This is not a credit decision or a commitment to lend.
Sales History & Tax Summary for 647 Stagecoach Road
Sales History
| Date | Price | |
|---|---|---|
| Currently not available. | ||
Tax Summary
| Tax Year | Estimated Market Value | Total Tax |
|---|---|---|
| Currently not available. | ||
Data powered by ATTOM Data Solutions. Copyright© 2026. Information deemed reliable but not guaranteed.
Schools
Schools nearby 647 Stagecoach Road
| Schools in attendance boundaries | Grades | Distance | Rating |
|---|---|---|---|
| Loading... | |||
| Schools nearby | Grades | Distance | Rating |
|---|---|---|---|
| Loading... | |||
Data powered by ATTOM Data Solutions. Copyright© 2026. Information deemed reliable but not guaranteed.
The schools shown represent both the assigned schools and schools by distance based on local school and district attendance boundaries. Attendance boundaries change based on various factors and proximity does not guarantee enrollment eligibility. Please consult your real estate agent and/or the school district to confirm the schools this property is zoned to attend. Information is deemed reliable but not guaranteed.
SchoolDigger ® Rating
The SchoolDigger rating system is a 1-5 scale with 5 as the highest rating. SchoolDigger ranks schools based on test scores supplied by each state's Department of Education. They calculate an average standard score by normalizing and averaging each school's test scores across all tests and grades.
Coming soon properties will soon be on the market, but are not yet available for showings.