6482 W Torrington Court Crystal River, FL 34429
For Sale MLS# OM710871
3 beds 2 baths 1,843 sq ft Single Family
Details for 6482 W Torrington Court
MLS# OM710871
Description for 6482 W Torrington Court, Crystal River, FL, 34429
Welcome home to Meadowcrest, one of Crystal River’s most sought-after communities! This beautifully maintained 3-bedroom, 2-bath home offers comfort, space, and a true sense of community. Step inside and you’ll love the open floor plan that connects the great room, dining area, and kitchen — perfect for family gatherings or casual get-togethers with friends. The kitchen features all appliances, a large pantry, and a cozy breakfast bar that opens to the light-filled great room and eat-in area. The primary suite is spacious and thoughtfully designed with two walk-in closets, dual sinks, and a step-in shower. Enjoy your morning coffee or unwind in the evening in the peaceful Florida room overlooking the lush backyard. Every room feels open and inviting, with plenty of natural light throughout. This home also includes an inside laundry room, 2-car garage, and beautifully landscaped yard located on a quiet cul-de-sac street. Living in Meadowcrest means more than just a beautiful home — it’s a lifestyle. Residents can join clubs, attend social events, or enjoy the amenities on their own. You’ll love having access to a clubhouse, two community pools (one heated), tennis and pickleball courts, shuffleboard, cornhole, bocce ball, and walking trails that wind through the neighborhood’s park-like setting with ponds and lush greenery. This home truly has it all — space, charm, and a welcoming community. Come see why Meadowcrest is one of the most desirable places to live in Crystal River! ???
Listing Information
Property Type: Residential, Single Family Residence
Status: Active
Bedrooms: 3
Bathrooms: 2
Lot Size: 0.16 Acres
Square Feet: 1,843 sq ft
Year Built: 1998
Garage: Yes
Stories: 1 Story
Construction: Concrete,Stucco
Subdivision: Fox Hollow Village First Add
Foundation: Slab
County: Citrus
School Information
Elementary: Crystal River Primary School
Middle: Crystal River Middle School
High: Crystal River High School
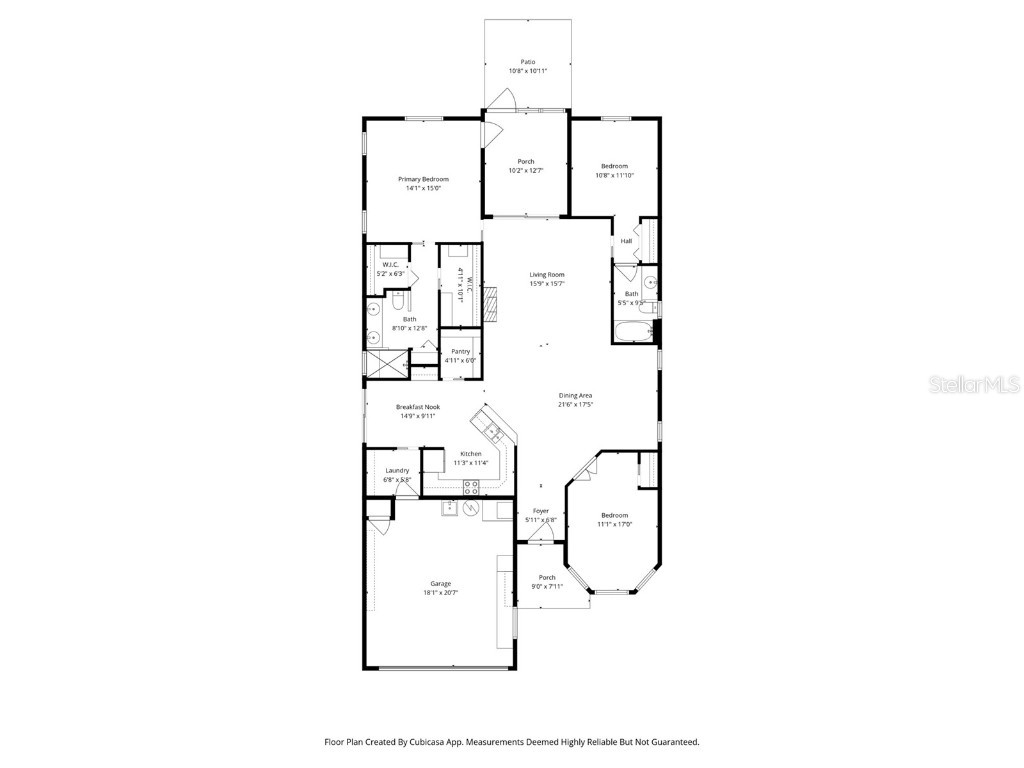
Room Information
Main Floor
Florida Room: 12x10
Dining Room: 12x12
Bedroom 3: 17x11
Bedroom 2: 11x10
Primary Bedroom: 15x14
Dinette: 9x14
Kitchen: 11x11
Great Room: 15x15
Bathrooms
Full Baths: 2
Additonal Room Information
Laundry: Inside, Laundry Room
Interior Features
Appliances: Electric Water Heater, Dishwasher, Microwave, Range, Refrigerator
Flooring: Carpet,Ceramic Tile,Wood
Additional Interior Features: Ceiling Fan(s), Vaulted Ceiling(s), Split Bedrooms, Open Floorplan, Main Level Primary
Utilities
Sewer: Public Sewer
Other Utilities: Electricity Connected,Sewer Connected,Water Connected,Water Not Available
Cooling: Central Air, Ceiling Fan(s)
Heating: Electric, Central
Exterior / Lot Features
Attached Garage: Attached Garage
Garage Spaces: 2
Roof: Shingle
Lot Dimensions: 55x136
Additional Exterior/Lot Features: Sprinkler/Irrigation
Community Features
Community Features: Sidewalks
Homeowners Association: Yes
HOA Dues: $349 / Monthly
Driving Directions
CR486 (NORVELL BRYANT HWY) TO MEADWOCREST ENTRANCE. RIGHT ON CANNONDALE, FOLLOW AROUND TO TORRINGTON CT
Financial Considerations
Terms: Cash,Conventional,FHA,VA Loan
Tax/Property ID: 17E-18S-25-0230-000G0-0100
Tax Amount: 1320.69
Tax Year: 2024
A broker reciprocity listing courtesy: EPIQUE REALTY, INC.
Based on information provided by Stellar MLS as distributed by the MLS GRID. Information from the Internet Data Exchange is provided exclusively for consumers’ personal, non-commercial use, and such information may not be used for any purpose other than to identify prospective properties consumers may be interested in purchasing. This data is deemed reliable but is not guaranteed to be accurate by Edina Realty, Inc., or by the MLS. Edina Realty, Inc., is not a multiple listing service (MLS), nor does it offer MLS access.
Copyright 2026 Stellar MLS as distributed by the MLS GRID. All Rights Reserved.
Payment Calculator
Interest rate and annual percentage rate (APR) are based on current market conditions, are for informational purposes only, are subject to change without notice and may be subject to pricing add-ons related to property type, loan amount, loan-to-value, credit score and other variables. Estimated closing costs used in the APR calculation are assumed to be paid by the borrower at closing. If the closing costs are financed, the loan, APR and payment amounts will be higher. If the down payment is less than 20%, mortgage insurance may be required and could increase the monthly payment and APR. Contact us for details. Additional loan programs may be available. Accuracy is not guaranteed, and all products may not be available in all borrower's geographical areas and are based on their individual situation. This is not a credit decision or a commitment to lend.
Sales History & Tax Summary for 6482 W Torrington Court
Sales History
| Date | Price | |
|---|---|---|
| Currently not available. | ||
Tax Summary
| Tax Year | Estimated Market Value | Total Tax |
|---|---|---|
| Currently not available. | ||
Data powered by ATTOM Data Solutions. Copyright© 2026. Information deemed reliable but not guaranteed.
Schools
Schools nearby 6482 W Torrington Court
| Schools in attendance boundaries | Grades | Distance | Rating |
|---|---|---|---|
| Loading... | |||
| Schools nearby | Grades | Distance | Rating |
|---|---|---|---|
| Loading... | |||
Data powered by ATTOM Data Solutions. Copyright© 2026. Information deemed reliable but not guaranteed.
The schools shown represent both the assigned schools and schools by distance based on local school and district attendance boundaries. Attendance boundaries change based on various factors and proximity does not guarantee enrollment eligibility. Please consult your real estate agent and/or the school district to confirm the schools this property is zoned to attend. Information is deemed reliable but not guaranteed.
SchoolDigger ® Rating
The SchoolDigger rating system is a 1-5 scale with 5 as the highest rating. SchoolDigger ranks schools based on test scores supplied by each state's Department of Education. They calculate an average standard score by normalizing and averaging each school's test scores across all tests and grades.
Coming soon properties will soon be on the market, but are not yet available for showings.