$429,900
6501 Livingston Avenue N Saint Petersburg, FL 33702
For Sale MLS# TB8453505
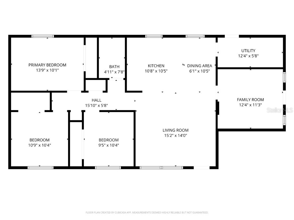
3 beds 1 baths 1,274 sq ft Single Family
Details for 6501 Livingston Avenue N
MLS# TB8453505
Description for 6501 Livingston Avenue N, Saint Petersburg, FL, 33702
Experience elevated Florida living at 6501 Livingston Ave N — an impeccably renovated BLOCK residence situated on an oversized corner lot in one of St. Petersburg’s most convenient and desirable neighborhoods. NO FLOODING OR HURRICANE DAMAGE! Reimagined in 2023 with premium finishes, modern comforts, and timeless style, this 3-bedroom plus den home offers an upscale turnkey living experience rarely found at this price point. Step inside to discover a light-filled interior adorned with LVP flooring, recessed LED lighting, and soft-close shaker cabinetry, complemented by granite countertops and a full suite of Samsung stainless appliances. Every detail has been thoughtfully selected for quality and sophistication, including new interior paint, curated lighting, and an inviting flow ideal for both everyday living and entertaining. The peace of mind here is unmatched — boasting a new roof (2023), water heater (2023), whole-home rewire (2023), and new GrandAire HVAC (2023). An ASSUMABLE flood policy of only $2,230/year offers huge savings! Outdoors, this home continues to impress. The property showcases brand-new 2024 landscaping, vinyl fencing added in 2023, a sun-shade retreat, and a versatile storage shed, while the half garage offers the perfect solution for bikes, paddleboards, or workshop storage. Smart-home features such as the Schlage smart lock and Ring doorbell enhance security and convenience. Whether you desire a luxury retreat, a stylish primary residence, or a high-performing investment opportunity, this property is uniquely positioned to exceed expectations. 6501 Livingston Ave N blends modern comfort with refined design — a rare turnkey offering in the heart of St. Petersburg.
Listing Information
Property Type: Residential, Single Family Residence
Status: Active
Bedrooms: 3
Bathrooms: 1
Lot Size: 0.17 Acres
Square Feet: 1,274 sq ft
Year Built: 1973
Garage: Yes
Stories: 1 Story
Construction: Block
Subdivision: North St Petersburg
Foundation: Slab
County: Pinellas
Room Information
Main Floor
Kitchen:
Primary Bedroom:
Living Room:
Bathrooms
Full Baths: 1
Additonal Room Information
Laundry: Laundry Room
Interior Features
Appliances: Cooktop, Dishwasher, Disposal, Dryer, Freezer, Microwave, Range, Refrigerator, Washer, Electric Water Heater
Flooring: Luxury Vinyl
Doors/Windows: Window Treatments
Additional Interior Features: Ceiling Fan(s), Window Treatments, Living/Dining Room, Open Floorplan, Stone Counters, Smart Home, Kitchen/Family Room Combo
Utilities
Water: Public
Sewer: Public Sewer
Other Utilities: Cable Connected,Municipal Utilities,Sewer Connected,Water Connected
Cooling: Central Air, Ceiling Fan(s)
Heating: Central, Electric
Exterior / Lot Features
Attached Garage: Attached Garage
Garage Spaces: 1
Roof: Shingle
Lot Dimensions: 52x131
Additional Exterior/Lot Features: Lighting
Driving Directions
From 4th St N, turn left on Livingston Ave N, and home is on the left.
Financial Considerations
Tax/Property ID: 31-30-17-61146-049-0010
Tax Amount: 6341.05
Tax Year: 2024
A broker reciprocity listing courtesy: COMPASS FLORIDA LLC
Based on information provided by Stellar MLS as distributed by the MLS GRID. Information from the Internet Data Exchange is provided exclusively for consumers’ personal, non-commercial use, and such information may not be used for any purpose other than to identify prospective properties consumers may be interested in purchasing. This data is deemed reliable but is not guaranteed to be accurate by Edina Realty, Inc., or by the MLS. Edina Realty, Inc., is not a multiple listing service (MLS), nor does it offer MLS access.
Copyright 2025 Stellar MLS as distributed by the MLS GRID. All Rights Reserved.
Payment Calculator
Interest rate and annual percentage rate (APR) are based on current market conditions, are for informational purposes only, are subject to change without notice and may be subject to pricing add-ons related to property type, loan amount, loan-to-value, credit score and other variables. Estimated closing costs used in the APR calculation are assumed to be paid by the borrower at closing. If the closing costs are financed, the loan, APR and payment amounts will be higher. If the down payment is less than 20%, mortgage insurance may be required and could increase the monthly payment and APR. Contact us for details. Additional loan programs may be available. Accuracy is not guaranteed, and all products may not be available in all borrower's geographical areas and are based on their individual situation. This is not a credit decision or a commitment to lend.
Sales History & Tax Summary for 6501 Livingston Avenue N
Sales History
| Date | Price | Change |
|---|---|---|
| Currently not available. | ||
Tax Summary
| Tax Year | Estimated Market Value | Total Tax |
|---|---|---|
| Currently not available. | ||
Data powered by ATTOM Data Solutions. Copyright© 2025. Information deemed reliable but not guaranteed.
Schools
Schools nearby 6501 Livingston Avenue N
| Schools in attendance boundaries | Grades | Distance | Rating |
|---|---|---|---|
| Loading... | |||
| Schools nearby | Grades | Distance | Rating |
|---|---|---|---|
| Loading... | |||
Data powered by ATTOM Data Solutions. Copyright© 2025. Information deemed reliable but not guaranteed.
The schools shown represent both the assigned schools and schools by distance based on local school and district attendance boundaries. Attendance boundaries change based on various factors and proximity does not guarantee enrollment eligibility. Please consult your real estate agent and/or the school district to confirm the schools this property is zoned to attend. Information is deemed reliable but not guaranteed.
SchoolDigger ® Rating
The SchoolDigger rating system is a 1-5 scale with 5 as the highest rating. SchoolDigger ranks schools based on test scores supplied by each state's Department of Education. They calculate an average standard score by normalizing and averaging each school's test scores across all tests and grades.
Coming soon properties will soon be on the market, but are not yet available for showings.