$1,449,000
6520 Simone Shores Circle Apollo Beach, FL 33572 - ST CREUX CANAL
For Sale MLS# TB8391408
5 beds 4 baths 3,202 sq ft Single Family
Details for 6520 Simone Shores Circle
MLS# TB8391408
Description for 6520 Simone Shores Circle, Apollo Beach, FL, 33572 - ST CREUX CANAL
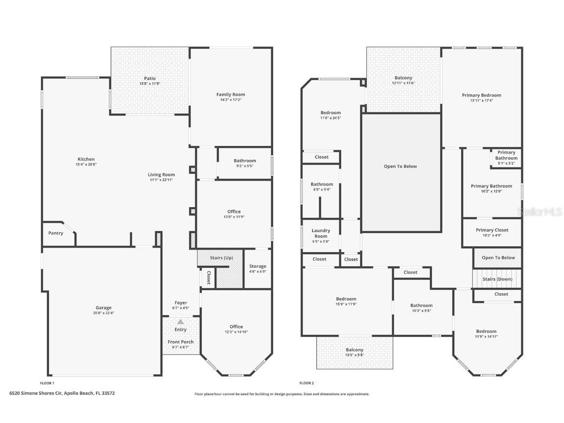
Welcome to 6520 Simone Shores Dr, Apollo Beach, FL – Brand-New Custom Waterfront Pool Home with Contemporary Design! Step into modern luxury with this stunning 2024 custom-built waterfront home. Thoughtfully designed for efficiency, technology, and comfort, this exceptional Meridian Floor Plan by Bistro Builders features cutting-edge solar roof tiles, delivering instant energy savings while providing the latest in contemporary living. The Grand Bahama Room welcomes you with soaring 24-ft ceilings, custom LED lighting, a fireplace, and a wireless built-in sound system that extends through every room, including the outdoor spaces and garage. Expansive wall-to-wall cascading sliding glass doors seamlessly blend indoor and outdoor living, leading to the lanai, pool, outdoor kitchen, and waterfront views. The chef’s kitchen is a statement in both design and functionality, featuring top-of-the-line gas appliances, a spacious pantry with a full prep area, a secondary wine refrigerator, and a generous island with built-in under-cabinet storage. Sleek European-style custom cabinetry with drawer inserts enhances the modern aesthetic, while impact-resistant, high-strength windows flood the space with natural light. This home offers incredible versatility, with a flexible layout that accommodates a first-floor primary suite, in-law suite, or game room/bedroom combo. The front-facing office with elegant bay windows provides a perfect workspace, complete with dedicated ethernet and customizable lighting. A full bathroom on the main level adds to the home’s functionality. Each bathroom is finished with floor-to-ceiling custom tile work, rain-making multi-shower heads with integrated music, heated bidet toilets, and custom lighted mirrors. Upstairs, a mini-bar area offers easy access to the balcony, ideal for enjoying waterfront evenings. The second level features four well-appointed bedrooms, including two full primary suites, plus a laundry room for added convenience. The primary suite offers private balcony access, a luxurious bath with dual sinks, a large walk-in shower, a soaking tub, and custom-built European-style closets. Bedroom 4 features charming bay windows and shares a Jack-and-Jill bath with Bedroom 3, which also has a private balcony. Bedroom 2 enjoys its own en-suite bath and direct access to the rear balcony, providing yet another space to take in the breathtaking views. Every inch of this 3,100+ sq ft home is designed for functionality, technology, and style. The home is move-in ready, complete with a heated saltwater pool and hot tub. The seawall has been recently replaced, and a brand-new 10K boat lift and dock are currently being installed. This fully integrated smart home allows you to control lights, music, appliances, pool, lawn irrigation, AC, and garage doors from any of the strategically placed iPads throughout the home. Built to exceptional structural standards, this home features solid block construction on all exterior walls, stem wall construction below the slab, a high elevation, and storm-rated impact windows and doors. For ultimate security, the state-of-the-art system includes fingerprint and facial recognition access doors. Additional features like fire-resistant doors, energy-efficient sprayed-in insulation further enhance safety, durability, and comfort. No shortcuts were taken in the construction of this exceptional waterfront home. Schedule your private showing today!
Listing Information
Property Type: Residential, Single Family Residence
Status: Active
Bedrooms: 5
Bathrooms: 4
Lot Size: 0.38 Acres
Square Feet: 3,202 sq ft
Year Built: 2025
Garage: Yes
Stories: 2 Story
Construction: Block,Stucco
Construction Display: New Construction
Subdivision: Hemingway Estates Ph 1-A
Builder: Bistro Builders
Foundation: Slab,Stem Wall
County: Hillsborough
Construction Status: New Construction
School Information
Elementary: Apollo Beach-Hb
Middle: Eisenhower-Hb
High: Lennard-Hb
Room Information
Main Floor
Kitchen: 30x15
Office: 15x12
Office: 12x13
Living Room: 23x11
Family Room: 17x14
Upper Floor
Primary Bathroom: 12x10
Bedroom 4: 15x12
Bedroom 3: 12x16
Bedroom 2: 24x11
Primary Bedroom: 17x14
Bathrooms
Full Baths: 3
1/2 Baths: 1
Additonal Room Information
Laundry: Inside, Laundry Room, Upper Level
Interior Features
Appliances: Wine Refrigerator, Bar Fridge, Built-In Oven, Dishwasher, Disposal, Tankless Water Heater, Range, Refrigerator
Flooring: Ceramic Tile
Doors/Windows: Double Pane Windows, Insulated Windows, Display Window(s), Tinted Windows, ENERGY STAR Qualified Windows, Storm Window(s)
Fireplaces: Gas, Electric, Family Room
Additional Interior Features: Walk-In Closet(s), Ceiling Fan(s), High Ceilings, Upper Level Primary, Stone Counters
Utilities
Water: Public
Sewer: Public Sewer
Other Utilities: Cable Available,Electricity Connected,Fiber Optic Available,Natural Gas Connected,High Speed Internet Available,Municipal Utilities,Sewer Connected,Water Connected
Cooling: Ceiling Fan(s), Central Air
Heating: Central
Exterior / Lot Features
Attached Garage: Attached Garage
Garage Spaces: 2
Parking Description: Off Street, Garage, driveway, Garage Door Opener
Roof: Tile, Other
Pool: Heated, Gunite, Salt Water, In Ground
Lot View: Canal,Water
Lot Dimensions: 62x130
Additional Exterior/Lot Features: Outdoor Grill, Sprinkler/Irrigation, Balcony, Outdoor Kitchen, Balcony, Covered, Patio, Rear Porch, Front Porch, Flat, Level, Landscaped, Greenbelt, Outside City Limits, Drainage
Waterfront Details
Standard Water Body: ST CREUX CANAL
Water Front Features: Canal Access
Community Features
Community Features: Water Access, Sidewalks, Waterfront, Street Lights
Security Features: Fire Alarm, Closed Circuit Camera(s), Security System Owned, Smoke Detector(s)
HOA Dues Include: Maintenance Grounds
Homeowners Association: Yes
HOA Dues: $200 / Monthly
Driving Directions
From US 41 - Head West onto Apollo Beach Blvd, Right on Dickman Road, Right on Emily Creek into community, to Simone Shores Cir to address.
Financial Considerations
Terms: Cash,Conventional,FHA,VA Loan
Tax/Property ID: U-22-31-19-902-000000-00024.0
Tax Amount: 3551.77
Tax Year: 2024
A broker reciprocity listing courtesy: 27NORTH REALTY
Based on information provided by Stellar MLS as distributed by the MLS GRID. Information from the Internet Data Exchange is provided exclusively for consumers’ personal, non-commercial use, and such information may not be used for any purpose other than to identify prospective properties consumers may be interested in purchasing. This data is deemed reliable but is not guaranteed to be accurate by Edina Realty, Inc., or by the MLS. Edina Realty, Inc., is not a multiple listing service (MLS), nor does it offer MLS access.
Copyright 2026 Stellar MLS as distributed by the MLS GRID. All Rights Reserved.
Payment Calculator
Interest rate and annual percentage rate (APR) are based on current market conditions, are for informational purposes only, are subject to change without notice and may be subject to pricing add-ons related to property type, loan amount, loan-to-value, credit score and other variables. Estimated closing costs used in the APR calculation are assumed to be paid by the borrower at closing. If the closing costs are financed, the loan, APR and payment amounts will be higher. If the down payment is less than 20%, mortgage insurance may be required and could increase the monthly payment and APR. Contact us for details. Additional loan programs may be available. Accuracy is not guaranteed, and all products may not be available in all borrower's geographical areas and are based on their individual situation. This is not a credit decision or a commitment to lend.
Sales History & Tax Summary for 6520 Simone Shores Circle
Sales History
| Date | Price | |
|---|---|---|
| Currently not available. | ||
Tax Summary
| Tax Year | Estimated Market Value | Total Tax |
|---|---|---|
| Currently not available. | ||
Data powered by ATTOM Data Solutions. Copyright© 2026. Information deemed reliable but not guaranteed.
Schools
Schools nearby 6520 Simone Shores Circle
| Schools in attendance boundaries | Grades | Distance | Rating |
|---|---|---|---|
| Loading... | |||
| Schools nearby | Grades | Distance | Rating |
|---|---|---|---|
| Loading... | |||
Data powered by ATTOM Data Solutions. Copyright© 2026. Information deemed reliable but not guaranteed.
The schools shown represent both the assigned schools and schools by distance based on local school and district attendance boundaries. Attendance boundaries change based on various factors and proximity does not guarantee enrollment eligibility. Please consult your real estate agent and/or the school district to confirm the schools this property is zoned to attend. Information is deemed reliable but not guaranteed.
SchoolDigger ® Rating
The SchoolDigger rating system is a 1-5 scale with 5 as the highest rating. SchoolDigger ranks schools based on test scores supplied by each state's Department of Education. They calculate an average standard score by normalizing and averaging each school's test scores across all tests and grades.
Coming soon properties will soon be on the market, but are not yet available for showings.