6524 6th Avenue N Saint Petersburg, FL 33710
For Sale MLS# TB8332642
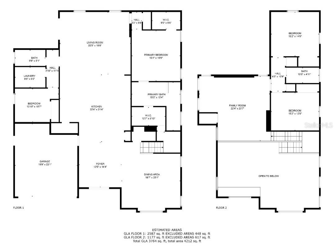
4 beds 4 baths 3,764 sq ft Single Family
Details for 6524 6th Avenue N
MLS# TB8332642
Description for 6524 6th Avenue N, Saint Petersburg, FL, 33710
SELLER FINANCING AVAILABLE - BRAND NEW CONTEMPORARY MASTERPIECE! Introducing a rare opportunity to own an exceptionally Luxurious New Construction home in the highly sought-after, brick street, tree-lined neighborhood of Eagle Crest. Nestled on a spacious 8,751 sqft lot, this stunning 4-bedroom, 3.5-bath, 3,720 sqft residence is a perfect blend of cutting-edge design and modern comfort. From the moment you arrive, the home captivates with sleek architectural lines, vibrant tropical landscaping, a custom paver driveway and grand double entry doors. Step inside to soaring 21-foot ceilings, an tri-split, open-concept layout and sun-drenched living spaces adorned with 2’x4’ gloss white porcelain tile flooring. The heart of the home is a chef’s dream Kitchen—equipped with black stainless Smart Samsung appliances, an oversized 11’ waterfall eat at island for 5 equipped with RGB lighting, marble countertops, European-style flat-panel custom cabinetry system and more!. A custom wine cellar under the stairs adds a unique and sophisticated touch. Retreat to your private oversized Primary suite showcasing RGB entry lighting, 2 walk-in closets and a lavish en suite bath featuring a 4’x8’ marble walk-in shower with a 20”x40” rain head, LED double vanity/anti fog, a free standing soaking tub with a statement accent wall and Woodbridge electronic toilet. The home also includes: • Dedicated office space • Three additional bedrooms with closets and a second floor Loft flex space over looking the formal Living Room • Two additional Bathrooms, Laundry room and 2-car garage • Smart home technology: Brilliant Hub, 3 Amazon Video Hub Intercom/Camera systems, Smart switches, Thermostats, Door Bell, Camera system and wifi Garage Door Opener. • 10’ ceilings in all bedrooms • Pre-designed space for modern in-ground pool & spa (installation to follow purchase with Pool Credit with an acceptable contract) • Expansive backyard with covered patio, lush green space all on a irrigation well pump system. All of this, just minutes from Downtown St. Petersburg, top-rated Beaches, Shopping, Restaurants and Dining. BONUS: One surprise feature you must see in person! Schedule your private tour today and experience luxury living reimagined! FUTURE POOL/SPA $100,000.00 CREDIT TOWARDS THE PURCHASE PRICE WITH AN ACCEPTABLE CONTRACT (INQUIRE FOR DETAILS)! SELLER FINANCING AVAILABLE!! Own this beautiful NEW home for only 20% DOWN at a 4.5% interest rate with a 10 year balloon mortgage- buyer approval required by seller. Buyer to verify all information.
Listing Information
Property Type: Residential, Single Family Residence
Status: Active
Bedrooms: 4
Bathrooms: 4
Lot Size: 0.20 Acres
Square Feet: 3,764 sq ft
Year Built: 2025
Garage: Yes
Stories: 2 Story
Construction: Block,Stucco
Construction Display: New Construction
Subdivision: Eagle Crest
Builder: MC2DESIGN and BUILD
Foundation: Slab
County: Pinellas
Construction Status: New Construction
Room Information
Main Floor
Bedroom 2: 11x14
Primary Bedroom: 16x15
Kitchen: 21x22
Living Room: 20x22
Upper Floor
Bedroom 4: 14x15
Bedroom 3: 12x15
Bathrooms
Full Baths: 3
1/2 Baths: 1
Additonal Room Information
Laundry: Inside
Interior Features
Appliances: Range Hood, Electric Water Heater, Washer, Microwave, Range, Refrigerator, Dishwasher, Disposal, Dryer, Wine Refrigerator
Flooring: Ceramic Tile,Wood
Doors/Windows: Window Treatments, ENERGY STAR Qualified Windows, Double Pane Windows
Additional Interior Features: Window Treatments, Built-in Features, High Ceilings, Walk-In Closet(s), Ceiling Fan(s), Eat-In Kitchen, Wood Cabinets, Smart Home, Main Level Primary, Kitchen/Family Room Combo, Open Floorplan, Stone Counters
Utilities
Water: Public
Sewer: Public Sewer
Other Utilities: Cable Available,Municipal Utilities
Cooling: Ceiling Fan(s), Central Air
Heating: Electric
Exterior / Lot Features
Attached Garage: Attached Garage
Garage Spaces: 2
Roof: Shingle
Pool: Tile, Heated, In Ground, Salt Water
Lot Dimensions: 70x125
Fencing: Vinyl
Additional Exterior/Lot Features: Rain Gutters, Sprinkler/Irrigation, Storage, Awning(s), Lighting, Covered, Rear Porch, Landscaped
Community Features
Community Features: Sidewalks
Driving Directions
Use GPS.
Financial Considerations
Terms: Cash,Conventional,Owner May Carry,Private Financing Available
Tax/Property ID: 17-31-16-23634-018-0060
Tax Amount: 3998.38
Tax Year: 2024
A broker reciprocity listing courtesy: ELLIOTT COASTAL REALTY LLC
Based on information provided by Stellar MLS as distributed by the MLS GRID. Information from the Internet Data Exchange is provided exclusively for consumers’ personal, non-commercial use, and such information may not be used for any purpose other than to identify prospective properties consumers may be interested in purchasing. This data is deemed reliable but is not guaranteed to be accurate by Edina Realty, Inc., or by the MLS. Edina Realty, Inc., is not a multiple listing service (MLS), nor does it offer MLS access.
Copyright 2025 Stellar MLS as distributed by the MLS GRID. All Rights Reserved.
Payment Calculator
Interest rate and annual percentage rate (APR) are based on current market conditions, are for informational purposes only, are subject to change without notice and may be subject to pricing add-ons related to property type, loan amount, loan-to-value, credit score and other variables. Estimated closing costs used in the APR calculation are assumed to be paid by the borrower at closing. If the closing costs are financed, the loan, APR and payment amounts will be higher. If the down payment is less than 20%, mortgage insurance may be required and could increase the monthly payment and APR. Contact us for details. Additional loan programs may be available. Accuracy is not guaranteed, and all products may not be available in all borrower's geographical areas and are based on their individual situation. This is not a credit decision or a commitment to lend.
Sales History & Tax Summary for 6524 6th Avenue N
Sales History
| Date | Price | Change |
|---|---|---|
| Currently not available. | ||
Tax Summary
| Tax Year | Estimated Market Value | Total Tax |
|---|---|---|
| Currently not available. | ||
Data powered by ATTOM Data Solutions. Copyright© 2025. Information deemed reliable but not guaranteed.
Schools
Schools nearby 6524 6th Avenue N
| Schools in attendance boundaries | Grades | Distance | Rating |
|---|---|---|---|
| Loading... | |||
| Schools nearby | Grades | Distance | Rating |
|---|---|---|---|
| Loading... | |||
Data powered by ATTOM Data Solutions. Copyright© 2025. Information deemed reliable but not guaranteed.
The schools shown represent both the assigned schools and schools by distance based on local school and district attendance boundaries. Attendance boundaries change based on various factors and proximity does not guarantee enrollment eligibility. Please consult your real estate agent and/or the school district to confirm the schools this property is zoned to attend. Information is deemed reliable but not guaranteed.
SchoolDigger ® Rating
The SchoolDigger rating system is a 1-5 scale with 5 as the highest rating. SchoolDigger ranks schools based on test scores supplied by each state's Department of Education. They calculate an average standard score by normalizing and averaging each school's test scores across all tests and grades.
Coming soon properties will soon be on the market, but are not yet available for showings.