$479,900
6528 Rover Way Saint Cloud, FL 34771
For Sale MLS# O6363457
3 beds 2 baths 1,881 sq ft Single Family
Details for 6528 Rover Way
MLS# O6363457
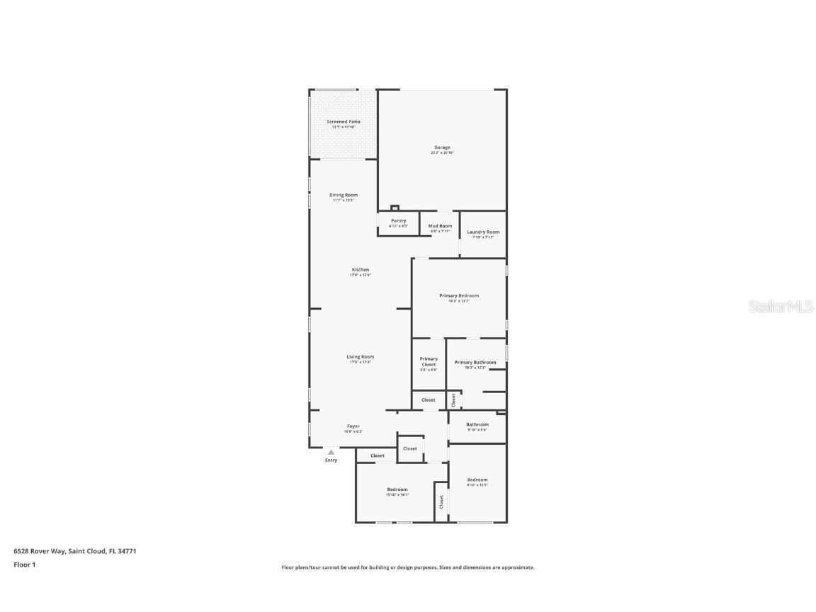
Description for 6528 Rover Way, Saint Cloud, FL, 34771
Step into modern, energy-efficient living with this 2023 Pulte Bordeaux in Weslyn Park, featuring solar panels and a bright, open layout designed for comfort and style. This single-story home offers 3 bedrooms, 2 baths, and 1,881 sq ft of thoughtfully planned space with luxury vinyl flooring through the main living areas and abundant natural light throughout. The kitchen anchors the home with stone counters, a large island, walk-in pantry, recessed lighting, a stone tile backsplash, and upgraded cabinetry with both above-cabinet and under-cabinet lighting. It flows seamlessly into the dining and living areas, where a beautiful tray ceiling adds openness and character. The primary suite offers a peaceful retreat with a spacious walk-in closet and an ensuite featuring dual sinks, stone counters, and a large walk-in shower. Two front bedrooms enjoy great natural light and share a well-appointed full bath, making them perfect for guests, family, or a home office. Enjoy the outdoors year-round in the screened lanai with brick pavers, ceiling fan, and a private fenced yard. A mudroom, large laundry room, and side-entry two-car garage add everyday convenience. Living in Weslyn Park means access to a zero-entry pool, playground, community garden, green spaces, dog park, and miles of nature trails. Zoned for Voyager K-8 and minutes from Lake Nona, Medical City, FL-417, and Orlando International Airport, this home blends comfort, style, and sustainability in Sunbridge’s visionary master-planned community. Move-in ready and lifestyle-ready—welcome home.
Listing Information
Property Type: Residential, Single Family Residence
Status: Active
Bedrooms: 3
Bathrooms: 2
Lot Size: 0.12 Acres
Square Feet: 1,881 sq ft
Year Built: 2023
Garage: Yes
Stories: 1 Story
Construction: Block,Stucco
Subdivision: Weslyn Park
Builder: Pulte Homes
Foundation: Slab
County: Osceola
School Information
Elementary: Voyager K-8
Middle: Voyager K-8
High: Tohopekaliga High School
Room Information
Main Floor
Porch:
Laundry:
Bedroom 3:
Bedroom 2:
Primary Bathroom:
Primary Bedroom:
Living Room:
Dining Room:
Kitchen:
Bathrooms
Full Baths: 2
Additonal Room Information
Laundry: Inside, Laundry Room
Interior Features
Appliances: Electric Water Heater, Microwave, Range, Refrigerator, Dishwasher, Disposal
Flooring: Carpet,Luxury Vinyl,Tile
Doors/Windows: Blinds, Window Treatments
Additional Interior Features: Split Bedrooms, Walk-In Closet(s), Window Treatments, Tray Ceiling(s), Built-in Features, Eat-In Kitchen, Kitchen/Family Room Combo, Open Floorplan, Stone Counters, Crown Molding, Main Level Primary, Living/Dining Room
Utilities
Water: Public
Sewer: Public Sewer
Other Utilities: Municipal Utilities
Cooling: Central Air
Heating: Heat Pump, Electric, Central
Exterior / Lot Features
Attached Garage: Attached Garage
Garage Spaces: 2
Parking Description: Garage Faces Side, Garage, driveway, Garage Door Opener
Roof: Shingle
Pool: Community
Additional Exterior/Lot Features: Lighting, Screened, Covered, Level, Flat, Landscaped
Community Features
Community Features: Pool, Sidewalks, Playground, Dog Park, Marina, Park, Community Mailbox
HOA Dues Include: Internet, Taxes, Recreation Facilities, Pool(s), Common Areas
Homeowners Association: Yes
HOA Dues: $1,656 / Annually
Driving Directions
From 417, head south on Narcoossee, turn left on Weslyn Park Blvd, then left on Rover Way—home is on the right. From the Turnpike, take Exit 244, follow US-192/441, turn left on Nova, right on Cyrils, left on Narcoossee, then right on Weslyn Park Blvd and left on Rover Way—the home will be on the right.
Financial Considerations
Terms: Cash,Conventional,Other,VA Loan
Tax/Property ID: 02-25-31-5538-0001-0500
Tax Amount: 8499
Tax Year: 2024
A broker reciprocity listing courtesy: REAL BROKER, LLC
Based on information provided by Stellar MLS as distributed by the MLS GRID. Information from the Internet Data Exchange is provided exclusively for consumers’ personal, non-commercial use, and such information may not be used for any purpose other than to identify prospective properties consumers may be interested in purchasing. This data is deemed reliable but is not guaranteed to be accurate by Edina Realty, Inc., or by the MLS. Edina Realty, Inc., is not a multiple listing service (MLS), nor does it offer MLS access.
Copyright 2025 Stellar MLS as distributed by the MLS GRID. All Rights Reserved.
Payment Calculator
Interest rate and annual percentage rate (APR) are based on current market conditions, are for informational purposes only, are subject to change without notice and may be subject to pricing add-ons related to property type, loan amount, loan-to-value, credit score and other variables. Estimated closing costs used in the APR calculation are assumed to be paid by the borrower at closing. If the closing costs are financed, the loan, APR and payment amounts will be higher. If the down payment is less than 20%, mortgage insurance may be required and could increase the monthly payment and APR. Contact us for details. Additional loan programs may be available. Accuracy is not guaranteed, and all products may not be available in all borrower's geographical areas and are based on their individual situation. This is not a credit decision or a commitment to lend.
Sales History & Tax Summary for 6528 Rover Way
Sales History
| Date | Price | Change |
|---|---|---|
| Currently not available. | ||
Tax Summary
| Tax Year | Estimated Market Value | Total Tax |
|---|---|---|
| Currently not available. | ||
Data powered by ATTOM Data Solutions. Copyright© 2025. Information deemed reliable but not guaranteed.
Schools
Schools nearby 6528 Rover Way
| Schools in attendance boundaries | Grades | Distance | Rating |
|---|---|---|---|
| Loading... | |||
| Schools nearby | Grades | Distance | Rating |
|---|---|---|---|
| Loading... | |||
Data powered by ATTOM Data Solutions. Copyright© 2025. Information deemed reliable but not guaranteed.
The schools shown represent both the assigned schools and schools by distance based on local school and district attendance boundaries. Attendance boundaries change based on various factors and proximity does not guarantee enrollment eligibility. Please consult your real estate agent and/or the school district to confirm the schools this property is zoned to attend. Information is deemed reliable but not guaranteed.
SchoolDigger ® Rating
The SchoolDigger rating system is a 1-5 scale with 5 as the highest rating. SchoolDigger ranks schools based on test scores supplied by each state's Department of Education. They calculate an average standard score by normalizing and averaging each school's test scores across all tests and grades.
Coming soon properties will soon be on the market, but are not yet available for showings.