$449,000
6550 SE 143rd Court Morriston, FL 32668
For Sale MLS# OM713409
2 beds 2 baths 1,092 sq ft Single Family
Details for 6550 SE 143rd Court
MLS# OM713409
Description for 6550 SE 143rd Court, Morriston, FL, 32668
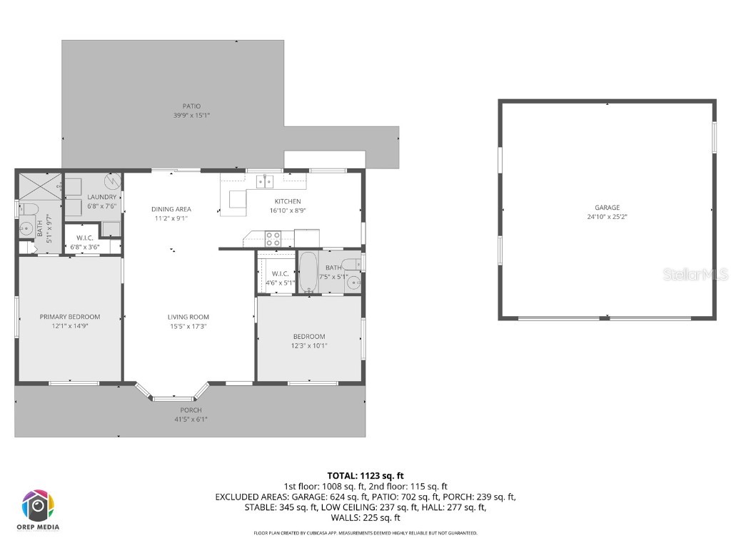
Charming and move in ready 2BR/2BA home on 5 beautiful high-and-dry acres. Adorned with scattered oaks the house and barn sit up on a hill with expansive views of the neighboring farms. Enjoy sunrises from the covered front porch and beautiful sunsets from the large covered back porch, which both feature tongue-and-groove wood ceilings. Equestrian ready with a 5 stall center aisle barn featuring a concrete aisle, feed/tack room and four fenced paddocks, three with run-in sheds. A well constructed pole barn behind the house offers multiple uses for additional stalls, walk outs or for whatever you envision. The two car metal garage with concrete floor provides great storage or workshop space. Home, barn and outbuildings are well positioned for excellent use of the property. This farm is the perfect blend of comfort, charm and functionality. With perimeter no climb fencing, you will have peace of mind for your dogs as well as horses. Everything is ready for you, your pets, horses, hobbies and peaceful country living. All this on 5 acres for under $450,000!
Listing Information
Property Type: Residential, Farm
Status: Active
Bedrooms: 2
Bathrooms: 2
Lot Size: 5 Acres
Square Feet: 1,092 sq ft
Year Built: 2003
Garage: Yes
Stories: 1 Story
Construction: Block,Stucco
Construction Display: New Construction
Subdivision: Triple Crown Farms 03
Foundation: Slab
County: Levy
Construction Status: New Construction
School Information
Elementary: Joyce M. Bullock Elementary School-Lv
Middle: Williston Middle High School-Lv
High: Williston Middle High School-Lv
Room Information
Main Floor
Bathroom 1: 9.11x11.11
Primary Bedroom: 14.8x12
Living Room: 17.09x15.06
Dinette: 11.09x8.9
Kitchen: 16.04x8.9
Bathrooms
Full Baths: 2
Additonal Room Information
Laundry: Inside, Laundry Room
Interior Features
Appliances: Electric Water Heater, Microwave, Dishwasher, Dryer, Range, Refrigerator, Washer
Flooring: Carpet,Laminate,Luxury Vinyl
Additional Interior Features: Split Bedrooms, Living/Dining Room, Cathedral Ceiling(s), Main Level Primary, Eat-In Kitchen
Utilities
Water: Well
Sewer: Septic Tank
Other Utilities: Electricity Connected
Cooling: Central Air
Heating: Heat Pump, Central
Exterior / Lot Features
Garage Spaces: 2
Parking Description: driveway
Roof: Shingle
Fencing: fenced, Cross Fenced, Wire, Wood
Additional Exterior/Lot Features: Other, Covered, Front Porch, Rear Porch, Cleared, Pasture, Farm, Outside City Limits
Out Buildings: Corral(s), Barn(s), Storage
Driving Directions
From Hwy 41 & Hwy 326 go south on Hwy 41 to Rt on 464 to LF on SE 143rd Ct to property on the RT
Financial Considerations
Terms: Cash,Conventional,FHA,USDA Loan,VA Loan
Tax/Property ID: 19572-000-00
Tax Amount: 2824
Tax Year: 2024
A broker reciprocity listing courtesy: SHOWCASE PROPERTIES OF CENTRAL
Based on information provided by Stellar MLS as distributed by the MLS GRID. Information from the Internet Data Exchange is provided exclusively for consumers’ personal, non-commercial use, and such information may not be used for any purpose other than to identify prospective properties consumers may be interested in purchasing. This data is deemed reliable but is not guaranteed to be accurate by Edina Realty, Inc., or by the MLS. Edina Realty, Inc., is not a multiple listing service (MLS), nor does it offer MLS access.
Copyright 2025 Stellar MLS as distributed by the MLS GRID. All Rights Reserved.
Payment Calculator
Interest rate and annual percentage rate (APR) are based on current market conditions, are for informational purposes only, are subject to change without notice and may be subject to pricing add-ons related to property type, loan amount, loan-to-value, credit score and other variables. Estimated closing costs used in the APR calculation are assumed to be paid by the borrower at closing. If the closing costs are financed, the loan, APR and payment amounts will be higher. If the down payment is less than 20%, mortgage insurance may be required and could increase the monthly payment and APR. Contact us for details. Additional loan programs may be available. Accuracy is not guaranteed, and all products may not be available in all borrower's geographical areas and are based on their individual situation. This is not a credit decision or a commitment to lend.
Sales History & Tax Summary for 6550 SE 143rd Court
Sales History
| Date | Price | Change |
|---|---|---|
| Currently not available. | ||
Tax Summary
| Tax Year | Estimated Market Value | Total Tax |
|---|---|---|
| Currently not available. | ||
Data powered by ATTOM Data Solutions. Copyright© 2025. Information deemed reliable but not guaranteed.
Schools
Schools nearby 6550 SE 143rd Court
| Schools in attendance boundaries | Grades | Distance | Rating |
|---|---|---|---|
| Loading... | |||
| Schools nearby | Grades | Distance | Rating |
|---|---|---|---|
| Loading... | |||
Data powered by ATTOM Data Solutions. Copyright© 2025. Information deemed reliable but not guaranteed.
The schools shown represent both the assigned schools and schools by distance based on local school and district attendance boundaries. Attendance boundaries change based on various factors and proximity does not guarantee enrollment eligibility. Please consult your real estate agent and/or the school district to confirm the schools this property is zoned to attend. Information is deemed reliable but not guaranteed.
SchoolDigger ® Rating
The SchoolDigger rating system is a 1-5 scale with 5 as the highest rating. SchoolDigger ranks schools based on test scores supplied by each state's Department of Education. They calculate an average standard score by normalizing and averaging each school's test scores across all tests and grades.
Coming soon properties will soon be on the market, but are not yet available for showings.