66 Banks Blvd Silver Bay, MN 55614
For Sale MLS# 6122231
2 beds 1 baths 768 sq ft Single Family
Details for 66 Banks Blvd
MLS# 6122231
Description for 66 Banks Blvd, Silver Bay, MN, 55614
Are you looking for one level, efficient living? This 2 bedroom home in Silver Bay is all set up for your convenience with newer appliances and laundry all set up in the kitchen, room for a small dining table and chairs, spacious living room with real pine paneling, wainscoat and plenty of natural lighting pouring in the front picture window as well as views of Lake Superior to enjoy! Large back yard ... Newer laminate flooring throughout and a new furnace too! Just move right in and enjoy!
Listing Information
Property Type: Residential, SF/Detached
Status: Active
Bedrooms: 2
Bathrooms: 1
Lot Size: 0.15 Acres
Square Feet: 768 sq ft
Year Built: 1953
Garage: Yes
Stories: 1 Story
Construction: Frame/Wood
County: Lake
School Information
District: Lake Superior #381
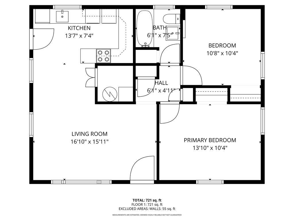
Room Information
Main Floor
Kitchen: 13.7x11
Living Room: 16.11x10.6
Bedroom: 14.3x10.5
Bedroom: 11x10.5
Bathroom: 7.4x6.4
Utility Room:
Bathrooms
Full Baths: 1
Additonal Room Information
Dining: Combine with Kitchen,Combine with Living Room
Bath Description: Full Main Floor
Interior Features
Square Footage above: 768 sq ft
Appliances: Washer, Dishwasher, Dryer, Range/Stove, Refrigerator
Additional Interior Features: Mechanicals - Water Heater-Gas
Utilities
Water: City
Sewer: City
Heating: Forced Air, Natural Gas
Exterior / Lot Features
Garage Spaces: 1
Parking Description: Garage Description - Detached
Exterior: Engineered Wood, Composition
Roof: Asphalt Shingles
Lot View: Lake Superior,City Lights,Typical
Lot Dimensions: 68 x 109 x 74 x 98
Additional Exterior/Lot Features: Tree Coverage - Light, Road Frontage - Street Lights, Sidewalk, Paved, City, Curb/Gutters
Driving Directions
From Outer Dr to right on Adams Blvd to left on banks Blvd to property.
Financial Considerations
Terms: Cash,Conventional
Tax/Property ID: 22-7450-07290
Tax Amount: 560
Tax Year: 2025
A broker reciprocity listing courtesy: Legacy Real Estate Group LLC - Gigi Maxwell
The data relating to real estate for sale on this web site comes in part from the Broker Reciprocity℠ Program of the Duluth Area Association of REALTORS® MLS. Real estate listings held by brokerage firms other than Edina Realty, Inc. are marked with the Broker Reciprocity℠ logo or the Broker Reciprocity℠ thumbnail and detailed information about them includes the name of the listing brokers. Edina Realty, Inc. is not a Multiple Listing Service (MLS), nor does it offer MLS access. This website is a service of Edina Realty, Inc., a broker Participant of the Duluth Area Association of REALTORS® MLS. IDX information is provided exclusively for consumers personal, non-commercial use and may not be used for any purpose other than to identify prospective properties consumers may be interested in purchasing. Open House information is subject to change without notice. Information deemed reliable but not guaranteed.
Copyright 2025 Duluth Area Association of REALTORS® MLS. All Rights Reserved.
Payment Calculator
Interest rate and annual percentage rate (APR) are based on current market conditions, are for informational purposes only, are subject to change without notice and may be subject to pricing add-ons related to property type, loan amount, loan-to-value, credit score and other variables. Estimated closing costs used in the APR calculation are assumed to be paid by the borrower at closing. If the closing costs are financed, the loan, APR and payment amounts will be higher. If the down payment is less than 20%, mortgage insurance may be required and could increase the monthly payment and APR. Contact us for details. Additional loan programs may be available. Accuracy is not guaranteed, and all products may not be available in all borrower's geographical areas and are based on their individual situation. This is not a credit decision or a commitment to lend.
Sales History & Tax Summary for 66 Banks Blvd
Sales History
| Date | Price | Change |
|---|---|---|
| Currently not available. | ||
Tax Summary
| Tax Year | Estimated Market Value | Total Tax |
|---|---|---|
| Currently not available. | ||
Data powered by ATTOM Data Solutions. Copyright© 2025. Information deemed reliable but not guaranteed.
Schools
Schools nearby 66 Banks Blvd
| Schools in attendance boundaries | Grades | Distance | Rating |
|---|---|---|---|
| Loading... | |||
| Schools nearby | Grades | Distance | Rating |
|---|---|---|---|
| Loading... | |||
Data powered by ATTOM Data Solutions. Copyright© 2025. Information deemed reliable but not guaranteed.
The schools shown represent both the assigned schools and schools by distance based on local school and district attendance boundaries. Attendance boundaries change based on various factors and proximity does not guarantee enrollment eligibility. Please consult your real estate agent and/or the school district to confirm the schools this property is zoned to attend. Information is deemed reliable but not guaranteed.
SchoolDigger ® Rating
The SchoolDigger rating system is a 1-5 scale with 5 as the highest rating. SchoolDigger ranks schools based on test scores supplied by each state's Department of Education. They calculate an average standard score by normalizing and averaging each school's test scores across all tests and grades.
Coming soon properties will soon be on the market, but are not yet available for showings.