661 Drop Shot Drive Davenport, FL 33896
For Sale MLS# S5128828
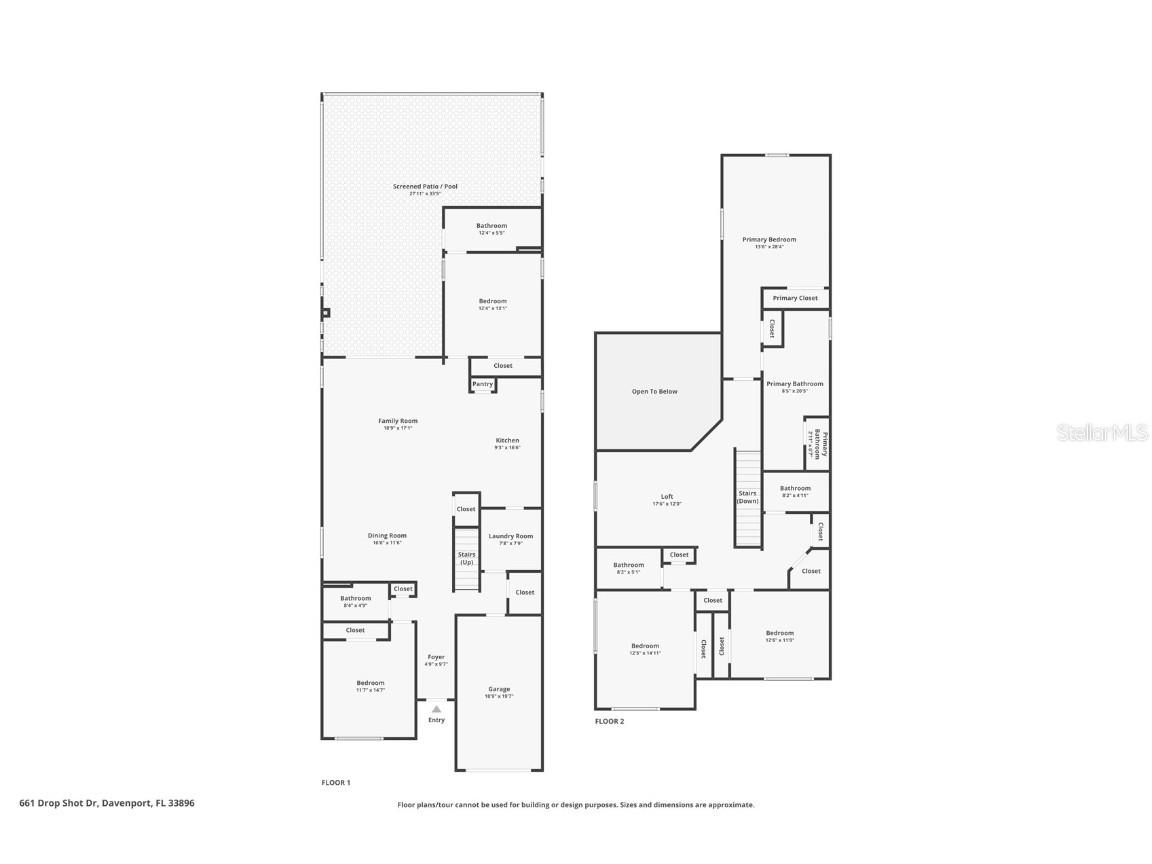
5 beds 5 baths 3,081 sq ft Single Family
Details for 661 Drop Shot Drive
MLS# S5128828
Description for 661 Drop Shot Drive, Davenport, FL, 33896
Step into resort-style living at 661 Drop Shot Drive, a beautifully furnished 5-bedroom, 5-bathroom home located in the exclusive Retreat at ChampionsGate. Designed for comfort and convenience, this spacious property features a modern open floor plan and a private screened-in pool and spa with peaceful pond views—ideal for creating lasting vacation memories. Enjoy access to premium community amenities including a resort-style pool, lazy river, fitness center, golf, on-site dining, and more. Just minutes from Orlando’s world-famous theme parks, shopping, and restaurants, this home is perfectly situated for both personal use and short-term rental success. Whether you're seeking a luxurious family getaway or a smart investment opportunity, 661 Drop Shot Drive delivers on every front.
Listing Information
Property Type: Residential, Single Family Residence
Status: Active
Bedrooms: 5
Bathrooms: 5
Lot Size: 0.11 Acres
Square Feet: 3,081 sq ft
Year Built: 2020
Garage: Yes
Stories: 2 Story
Construction: Block,Concrete,Stucco
Subdivision: Championsgate, Stoneybrook
Foundation: Slab
County: Osceola
Room Information
Main Floor
Bedroom 5: 13x12
Bedroom 4: 14x11
Dining Room: 11x17
Living Room: 16x18
Kitchen: 18x9
Upper Floor
Bedroom 3: 15x12
Bedroom 2: 11x12
Primary Bedroom: 28x13
Bathrooms
Full Baths: 5
Additonal Room Information
Laundry: Laundry Room
Interior Features
Appliances: Range, Refrigerator, Dishwasher, Dryer, Microwave, Washer
Flooring: Carpet,Tile
Additional Interior Features: Upper Level Primary
Utilities
Water: Public
Sewer: Public Sewer
Other Utilities: Cable Available,Electricity Available,High Speed Internet Available,Municipal Utilities,Phone Available,Water Available
Cooling: Central Air
Heating: Central, Electric
Exterior / Lot Features
Attached Garage: Attached Garage
Garage Spaces: 1
Roof: Shingle
Pool: In Ground, Community, Screen Enclosure, Other
Lot View: Pond,Water
Community Features
Community Features: Sidewalks, Pool, Tennis Court(s), Playground, Clubhouse, Golf, Gated
Security Features: Gated Community, Gated with Guard
HOA Dues Include: Trash, Recreation Facilities, Cable TV, Other
Homeowners Association: Yes
HOA Dues: $316 / Monthly
Driving Directions
Follow I-4 W to Champions Gate Blvd in Four Corners. Take exit 58 from I-4 W. Follow S Goodman Rd, Bella Citta Blvd/Tri County Rd and Westside Blvd to Drop Shot Dr
Financial Considerations
Terms: Cash,Conventional,FHA,VA Loan
Tax/Property ID: 30-25-27-5120-0001-0400
Tax Amount: 9695.96
Tax Year: 2024
A broker reciprocity listing courtesy: TEAM DONOVAN
Based on information provided by Stellar MLS as distributed by the MLS GRID. Information from the Internet Data Exchange is provided exclusively for consumers’ personal, non-commercial use, and such information may not be used for any purpose other than to identify prospective properties consumers may be interested in purchasing. This data is deemed reliable but is not guaranteed to be accurate by Edina Realty, Inc., or by the MLS. Edina Realty, Inc., is not a multiple listing service (MLS), nor does it offer MLS access.
Copyright 2025 Stellar MLS as distributed by the MLS GRID. All Rights Reserved.
Payment Calculator
Interest rate and annual percentage rate (APR) are based on current market conditions, are for informational purposes only, are subject to change without notice and may be subject to pricing add-ons related to property type, loan amount, loan-to-value, credit score and other variables. Estimated closing costs used in the APR calculation are assumed to be paid by the borrower at closing. If the closing costs are financed, the loan, APR and payment amounts will be higher. If the down payment is less than 20%, mortgage insurance may be required and could increase the monthly payment and APR. Contact us for details. Additional loan programs may be available. Accuracy is not guaranteed, and all products may not be available in all borrower's geographical areas and are based on their individual situation. This is not a credit decision or a commitment to lend.
Sales History & Tax Summary for 661 Drop Shot Drive
Sales History
| Date | Price | Change |
|---|---|---|
| Currently not available. | ||
Tax Summary
| Tax Year | Estimated Market Value | Total Tax |
|---|---|---|
| Currently not available. | ||
Data powered by ATTOM Data Solutions. Copyright© 2025. Information deemed reliable but not guaranteed.
Schools
Schools nearby 661 Drop Shot Drive
| Schools in attendance boundaries | Grades | Distance | Rating |
|---|---|---|---|
| Loading... | |||
| Schools nearby | Grades | Distance | Rating |
|---|---|---|---|
| Loading... | |||
Data powered by ATTOM Data Solutions. Copyright© 2025. Information deemed reliable but not guaranteed.
The schools shown represent both the assigned schools and schools by distance based on local school and district attendance boundaries. Attendance boundaries change based on various factors and proximity does not guarantee enrollment eligibility. Please consult your real estate agent and/or the school district to confirm the schools this property is zoned to attend. Information is deemed reliable but not guaranteed.
SchoolDigger ® Rating
The SchoolDigger rating system is a 1-5 scale with 5 as the highest rating. SchoolDigger ranks schools based on test scores supplied by each state's Department of Education. They calculate an average standard score by normalizing and averaging each school's test scores across all tests and grades.
Coming soon properties will soon be on the market, but are not yet available for showings.