$420,000
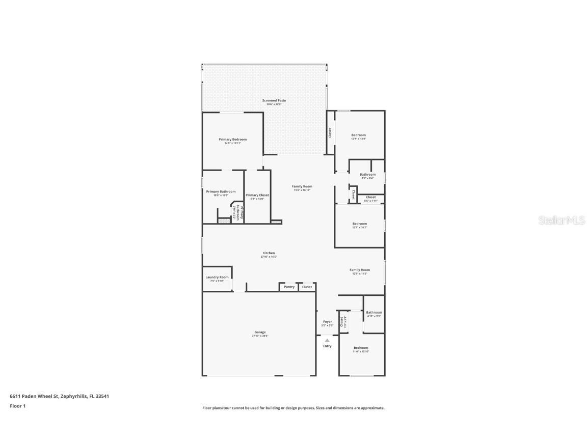
6611 Paden Wheel Street Zephyrhills, FL 33541
For Sale MLS# TB8451179
4 beds 3 baths 2,272 sq ft Single Family
Details for 6611 Paden Wheel Street
MLS# TB8451179
Description for 6611 Paden Wheel Street, Zephyrhills, FL, 33541
This well maintained 4 bedroom, 3 full bathroom home in Zephyrhills, with multiple upgrades and a 3 car garage is ready to be yours! There's plenty of space to entertain or enjoy your own space and quiet time. The living room has additional lighting for game nights and a blackout shade for movie nights. Additional lighting and upgraded light fixtures were put in throughout the home. The three panel sliding glass door, leading into the fully screened extended lanai, gives you a great view to the pond in the back. The lanai is another great space to entertain or create your own oasis to get away from the hustle and bustle of life! You can also access the lanai from the primary bedroom, through French doors. Overnight guests will enjoy the front bedroom with it's own private bathroom, which is separate from the rest of the bedrooms. The 12 camera security system, with multiple screens, is hardwired and conveys with the home. The upgrades don't stop there! The 3 car garage has a work area, insulated garage door and pull down stairs going into the attic. Call today to schedule your personal showing!
Listing Information
Property Type: Residential, Single Family Residence
Status: Active
Bedrooms: 4
Bathrooms: 3
Lot Size: 0.18 Acres
Square Feet: 2,272 sq ft
Year Built: 2017
Garage: Yes
Stories: 1 Story
Construction: Block,Stucco
Subdivision: Silverado Ranch Sub
Foundation: Slab
County: Pasco
School Information
Elementary: West Zephyrhills Elemen-Po
Middle: Raymond B Stewart Middle-Po
High: Zephryhills High School-Po
Room Information
Main Floor
Porch: 30x22
Bedroom 4: 16x11
Bedroom 3: 12x10
Bedroom 2: 14x12
Primary Bedroom: 14x11
Kitchen: 28x16
Dining Room: 12x11
Living Room: 17x15
Bathrooms
Full Baths: 3
Additonal Room Information
Laundry: Inside, Laundry Room
Interior Features
Appliances: Electric Water Heater, Water Softener, Refrigerator, Dishwasher, Microwave
Flooring: Carpet,Tile
Doors/Windows: Window Treatments, Blinds
Additional Interior Features: Walk-In Closet(s), Window Treatments, Ceiling Fan(s), Eat-In Kitchen, Open Floorplan, Main Level Primary
Utilities
Water: Public
Sewer: Public Sewer
Other Utilities: Cable Available,Electricity Connected,High Speed Internet Available,Municipal Utilities,Sewer Connected,Underground Utilities,Water Connected
Cooling: Ceiling Fan(s), Central Air
Heating: Central
Exterior / Lot Features
Attached Garage: Attached Garage
Garage Spaces: 3
Roof: Shingle
Lot View: Pond,Water
Additional Exterior/Lot Features: French Patio Doors, Sprinkler/Irrigation, Rain Gutters
Waterfront Details
Water Front Features: Pond
Community Features
Community Features: Sidewalks
Homeowners Association: Yes
HOA Dues: $60 / Monthly
Driving Directions
Heading West on Eiland Blvd, turn Right onto Silverado Ranch Blvd. Turn Left onto Paden Wheel St. Property will be on your Left
Financial Considerations
Terms: Cash,Conventional,FHA,VA Loan
Tax/Property ID: 21-26-05-007.0-004.00-013.0
Tax Amount: 7759
Tax Year: 2024
A broker reciprocity listing courtesy: SUNLIGHT REALTY LLC
Based on information provided by Stellar MLS as distributed by the MLS GRID. Information from the Internet Data Exchange is provided exclusively for consumers’ personal, non-commercial use, and such information may not be used for any purpose other than to identify prospective properties consumers may be interested in purchasing. This data is deemed reliable but is not guaranteed to be accurate by Edina Realty, Inc., or by the MLS. Edina Realty, Inc., is not a multiple listing service (MLS), nor does it offer MLS access.
Copyright 2026 Stellar MLS as distributed by the MLS GRID. All Rights Reserved.
Payment Calculator
Interest rate and annual percentage rate (APR) are based on current market conditions, are for informational purposes only, are subject to change without notice and may be subject to pricing add-ons related to property type, loan amount, loan-to-value, credit score and other variables. Estimated closing costs used in the APR calculation are assumed to be paid by the borrower at closing. If the closing costs are financed, the loan, APR and payment amounts will be higher. If the down payment is less than 20%, mortgage insurance may be required and could increase the monthly payment and APR. Contact us for details. Additional loan programs may be available. Accuracy is not guaranteed, and all products may not be available in all borrower's geographical areas and are based on their individual situation. This is not a credit decision or a commitment to lend.
Sales History & Tax Summary for 6611 Paden Wheel Street
Sales History
| Date | Price | Change |
|---|---|---|
| Currently not available. | ||
Tax Summary
| Tax Year | Estimated Market Value | Total Tax |
|---|---|---|
| Currently not available. | ||
Data powered by ATTOM Data Solutions. Copyright© 2026. Information deemed reliable but not guaranteed.
Schools
Schools nearby 6611 Paden Wheel Street
| Schools in attendance boundaries | Grades | Distance | Rating |
|---|---|---|---|
| Loading... | |||
| Schools nearby | Grades | Distance | Rating |
|---|---|---|---|
| Loading... | |||
Data powered by ATTOM Data Solutions. Copyright© 2026. Information deemed reliable but not guaranteed.
The schools shown represent both the assigned schools and schools by distance based on local school and district attendance boundaries. Attendance boundaries change based on various factors and proximity does not guarantee enrollment eligibility. Please consult your real estate agent and/or the school district to confirm the schools this property is zoned to attend. Information is deemed reliable but not guaranteed.
SchoolDigger ® Rating
The SchoolDigger rating system is a 1-5 scale with 5 as the highest rating. SchoolDigger ranks schools based on test scores supplied by each state's Department of Education. They calculate an average standard score by normalizing and averaging each school's test scores across all tests and grades.
Coming soon properties will soon be on the market, but are not yet available for showings.