6767 Sunset Way #206 Saint Pete Beach, FL 33706
For Sale MLS# TB8461605
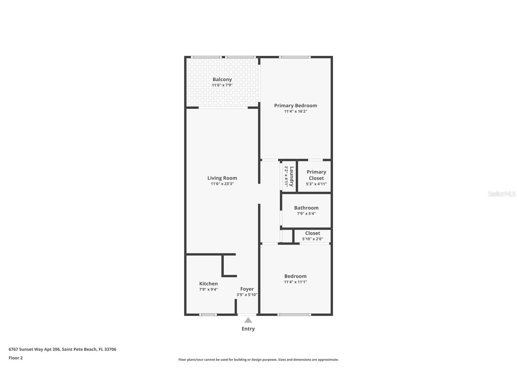
2 beds 1 baths 850 sq ft Condo
Details for 6767 Sunset Way #206
MLS# TB8461605
Description for 6767 Sunset Way #206, Saint Pete Beach, FL, 33706
Welcome to Gulf Claridge Condominiums, ideally located just a short stroll from the sugar-sand beaches of St. Pete Beach. This charming furnished 2-bedroom, 1-bath condominium offers 850 square feet of comfortable coastal living in a well-maintained, mid-rise community with elevator access. The residence features a functional split-bedroom layout, a bright living and dining room combination, luxury vinyl flooring throughout, ceiling fans, thermostat control, and ample closet space. The spacious primary bedroom includes a walk-in closet for added storage. The kitchen is equipped with a range, refrigerator, microwave, dishwasher, and electric water heater. An enclosed patio with hurricane shutters provides a secure and versatile space for relaxing or additional storage. Assigned parking and convenient on-site laundry enhance everyday living. Gulf Claridge offers landscaped common areas and an exceptional location near Corey Avenue shops, restaurants, public transportation, and local entertainment. Ideal as a primary residence, second home, or investment opportunity in one of Pinellas County’s most desirable beach communities. Schedule your private showing today.
Listing Information
Property Type: Residential, Condominium
Status: Active
Bedrooms: 2
Bathrooms: 1
Lot Size: 0.71 Acres
Square Feet: 850 sq ft
Year Built: 1972
Stories: 1 Story
Construction: Block
Subdivision: Gulf Claridge Condo
Foundation: Slab
County: Pinellas
School Information
Elementary: Azalea Elementary-Pn
Middle: Azalea Middle-Pn
High: Boca Ciega High-Pn
Room Information
Main Floor
Primary Bathroom:
Bedroom 1: 10x11
Primary Bedroom: 11x12
Porch: 9x11
Kitchen: 6x6
Great Room: 11x14
Bathrooms
Full Baths: 1
Additonal Room Information
Laundry: Laundry Room
Interior Features
Appliances: Electric Water Heater, Dishwasher, Microwave, Range, Refrigerator
Flooring: Luxury Vinyl
Doors/Windows: Blinds, Window Treatments
Additional Interior Features: Ceiling Fan(s), Living/Dining Room
Utilities
Water: Public
Sewer: Public Sewer
Other Utilities: High Speed Internet Available
Cooling: Ceiling Fan(s), Central Air
Heating: Central
Exterior / Lot Features
Parking Description: Assigned
Roof: Built-Up
Additional Exterior/Lot Features: Outdoor Grill, Courtyard, Storm/Security Shutters, Lighting, City Lot, Buyer Approval Required, Flood Zone
Community Features
Community Features: Recreation Area, Sidewalks
HOA Dues Include: Trash, Water, Taxes, Sewer, Association Management, Insurance, Maintenance Grounds, Maintenance Structure, Common Areas, Pest Control, Reserve Fund
Homeowners Association: Yes
HOA Dues: $695 / Monthly
Driving Directions
St Pete Beach Gulf Blvd. West on 68th Ave. Building is on the left. Use owners spot #206
Financial Considerations
Terms: Cash,Conventional
Tax/Property ID: 36-31-15-34083-001-2060
Tax Amount: 4206
Tax Year: 2024
A broker reciprocity listing courtesy: RE/MAX ACTION FIRST OF FLORIDA
Based on information provided by Stellar MLS as distributed by the MLS GRID. Information from the Internet Data Exchange is provided exclusively for consumers’ personal, non-commercial use, and such information may not be used for any purpose other than to identify prospective properties consumers may be interested in purchasing. This data is deemed reliable but is not guaranteed to be accurate by Edina Realty, Inc., or by the MLS. Edina Realty, Inc., is not a multiple listing service (MLS), nor does it offer MLS access.
Copyright 2026 Stellar MLS as distributed by the MLS GRID. All Rights Reserved.
Payment Calculator
Interest rate and annual percentage rate (APR) are based on current market conditions, are for informational purposes only, are subject to change without notice and may be subject to pricing add-ons related to property type, loan amount, loan-to-value, credit score and other variables. Estimated closing costs used in the APR calculation are assumed to be paid by the borrower at closing. If the closing costs are financed, the loan, APR and payment amounts will be higher. If the down payment is less than 20%, mortgage insurance may be required and could increase the monthly payment and APR. Contact us for details. Additional loan programs may be available. Accuracy is not guaranteed, and all products may not be available in all borrower's geographical areas and are based on their individual situation. This is not a credit decision or a commitment to lend.
Sales History & Tax Summary for 6767 Sunset Way #206
Sales History
| Date | Price | |
|---|---|---|
| Currently not available. | ||
Tax Summary
| Tax Year | Estimated Market Value | Total Tax |
|---|---|---|
| Currently not available. | ||
Data powered by ATTOM Data Solutions. Copyright© 2026. Information deemed reliable but not guaranteed.
Schools
Schools nearby 6767 Sunset Way #206
| Schools in attendance boundaries | Grades | Distance | Rating |
|---|---|---|---|
| Loading... | |||
| Schools nearby | Grades | Distance | Rating |
|---|---|---|---|
| Loading... | |||
Data powered by ATTOM Data Solutions. Copyright© 2026. Information deemed reliable but not guaranteed.
The schools shown represent both the assigned schools and schools by distance based on local school and district attendance boundaries. Attendance boundaries change based on various factors and proximity does not guarantee enrollment eligibility. Please consult your real estate agent and/or the school district to confirm the schools this property is zoned to attend. Information is deemed reliable but not guaranteed.
SchoolDigger ® Rating
The SchoolDigger rating system is a 1-5 scale with 5 as the highest rating. SchoolDigger ranks schools based on test scores supplied by each state's Department of Education. They calculate an average standard score by normalizing and averaging each school's test scores across all tests and grades.
Coming soon properties will soon be on the market, but are not yet available for showings.