6796 Gasparilla Pines Boulevard #50 Englewood, FL 34224
For Sale MLS# D6143465
2 beds 2 baths 1,037 sq ft Condo
Details for 6796 Gasparilla Pines Boulevard #50
MLS# D6143465
Description for 6796 Gasparilla Pines Boulevard #50, Englewood, FL, 34224
Welcome to peaceful Wildflower Village! This beautifully maintained condo radiates pride of ownership with its neat, clean, and comfortable feel. The well-appointed layout offers both functionality and charm, making it an inviting space to call home. A few added features include a pull down attic access and rerouted plumbing piping above ceiling. This unit also is partially furnished and provides a shed and a carport for extra added convienience. Nestled in a quiet community yet conveniently close to Gulf beaches, premier fishing spots, world-class golf courses, shopping, dining, and entertainment, this property blends relaxation with everyday convenience. Whether you’re seeking a full-time residence, a vacation retreat, or a smart investment, this gem checks all the boxes. Welcome to Paradise!
Listing Information
Property Type: Residential, Condominium
Status: Active
Bedrooms: 2
Bathrooms: 2
Lot Size: 0.03 Acres
Square Feet: 1,037 sq ft
Year Built: 1990
Stories: 1 Story
Construction: Stucco,Wood Frame
Construction Display: New Construction
Subdivision: Village At Wildflower Cc Ph 04 B
Foundation: Slab
County: Charlotte
Construction Status: New Construction
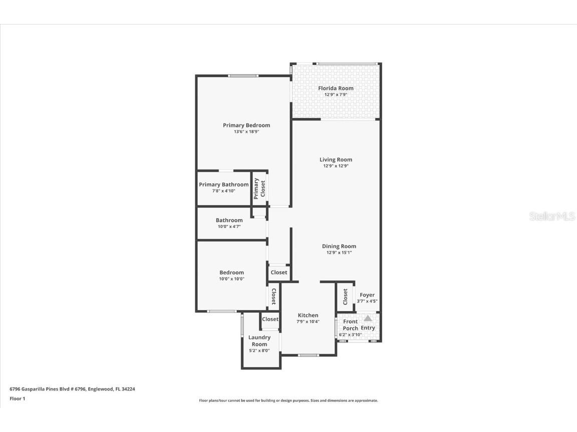
Room Information
Main Floor
Laundry: 8x5
Bathroom 2: 5x10
Bedroom 2: 10x10
Primary Bathroom: 5x7
Primary Bedroom: 17x13
Florida Room: 8x13
Dining Room: 15x13
Living Room: 13x13
Kitchen: 10x8
Bathrooms
Full Baths: 2
Additonal Room Information
Laundry: Inside, Laundry Room
Interior Features
Appliances: Dishwasher, Dryer, Microwave, Range, Refrigerator, Washer
Flooring: Carpet,Engineered Hardwood,Tile
Additional Interior Features: Ceiling Fan(s)
Utilities
Water: Public
Sewer: Public Sewer
Other Utilities: Electricity Connected,Sewer Connected,Water Connected
Cooling: Ceiling Fan(s), Central Air
Heating: Electric
Exterior / Lot Features
Parking Description: Covered, Assigned, Guest
Roof: Shingle
Pool: Association, Community
Additional Exterior/Lot Features: Lighting, Landscaped, Buyer Approval Required
Community Features
Community Features: Community Mailbox, Pool
Association Amenities: Pool
HOA Dues Include: Taxes, Maintenance Structure, Pool(s), Reserve Fund, Insurance, Maintenance Grounds, Common Areas
Homeowners Association: Yes
HOA Dues: $510 / Monthly
Driving Directions
from FL 776, turn right onto Placida Rd, turn left onto Gasparilla Pines Blvd, turn right into Wildflower at sign, #50 will be middle unit on the left.
Financial Considerations
Terms: Cash,Conventional,FHA,VA Loan
Tax/Property ID: 412027551094
Tax Amount: 1564.15
Tax Year: 2024
A broker reciprocity listing courtesy: PARADISE EXCLUSIVE INC
Based on information provided by Stellar MLS as distributed by the MLS GRID. Information from the Internet Data Exchange is provided exclusively for consumers’ personal, non-commercial use, and such information may not be used for any purpose other than to identify prospective properties consumers may be interested in purchasing. This data is deemed reliable but is not guaranteed to be accurate by Edina Realty, Inc., or by the MLS. Edina Realty, Inc., is not a multiple listing service (MLS), nor does it offer MLS access.
Copyright 2026 Stellar MLS as distributed by the MLS GRID. All Rights Reserved.
Payment Calculator
Interest rate and annual percentage rate (APR) are based on current market conditions, are for informational purposes only, are subject to change without notice and may be subject to pricing add-ons related to property type, loan amount, loan-to-value, credit score and other variables. Estimated closing costs used in the APR calculation are assumed to be paid by the borrower at closing. If the closing costs are financed, the loan, APR and payment amounts will be higher. If the down payment is less than 20%, mortgage insurance may be required and could increase the monthly payment and APR. Contact us for details. Additional loan programs may be available. Accuracy is not guaranteed, and all products may not be available in all borrower's geographical areas and are based on their individual situation. This is not a credit decision or a commitment to lend.
Sales History & Tax Summary for 6796 Gasparilla Pines Boulevard #50
Sales History
| Date | Price | |
|---|---|---|
| Currently not available. | ||
Tax Summary
| Tax Year | Estimated Market Value | Total Tax |
|---|---|---|
| Currently not available. | ||
Data powered by ATTOM Data Solutions. Copyright© 2026. Information deemed reliable but not guaranteed.
Schools
Schools nearby 6796 Gasparilla Pines Boulevard #50
| Schools in attendance boundaries | Grades | Distance | Rating |
|---|---|---|---|
| Loading... | |||
| Schools nearby | Grades | Distance | Rating |
|---|---|---|---|
| Loading... | |||
Data powered by ATTOM Data Solutions. Copyright© 2026. Information deemed reliable but not guaranteed.
The schools shown represent both the assigned schools and schools by distance based on local school and district attendance boundaries. Attendance boundaries change based on various factors and proximity does not guarantee enrollment eligibility. Please consult your real estate agent and/or the school district to confirm the schools this property is zoned to attend. Information is deemed reliable but not guaranteed.
SchoolDigger ® Rating
The SchoolDigger rating system is a 1-5 scale with 5 as the highest rating. SchoolDigger ranks schools based on test scores supplied by each state's Department of Education. They calculate an average standard score by normalizing and averaging each school's test scores across all tests and grades.
Coming soon properties will soon be on the market, but are not yet available for showings.