6907 W Creek Drive Tampa, FL 33615
For Sale MLS# TB8457045
4 beds 3 baths 1,768 sq ft Single Family
Details for 6907 W Creek Drive
MLS# TB8457045
Description for 6907 W Creek Drive, Tampa, FL, 33615
Be the first to experience this Certified Pre-Owned Inspected, extensively rebuilt 4 bedroom, 3 bathroom luxury single family residence on an oversized half acre R6 zoned lot at 6907 W Creek Dr in Tampa Florida, located in the Town and Country Tampa real estate market. This move in ready, NO HOA Tampa home includes approved plans for an additional 900 square foot dwelling with blueprints available, offering flexibility for multigenerational living, guest accommodations, or income producing potential. This is not a cosmetic renovation. The home has been structurally modernized from the inside out, delivering land, zoning, and long term reliability rarely found in Tampa. Upon entry, the quality of craftsmanship is immediately evident. The residence features rectified Italian porcelain tile throughout, including the outdoor kitchen and bar area, paired with solid wood interior doors with smoked glass and an open concept floor plan designed for entertaining and daily living. The kitchen serves as a focal point with custom dovetail bonded cabinetry, gold tone hardware, granite waterfall countertops, a Kohler farmhouse sink, and a full KitchenAid appliance package with wine chiller, flowing seamlessly into the main living area. The primary bedroom on the main floor offers a private retreat with a custom built walk in closet and a spa inspired ensuite bathroom featuring a double vanity, Kohler rain shower, and Vita Bella polished porcelain finishes. One of the bedrooms is configured as a private mother in law suite with a separate entrance and kitchenette, providing ideal flexibility for extended family, guests, or rental income. Bathrooms have been fully renovated with high end porcelain tile and Kohler fixtures. Behind the finishes, the home has undergone comprehensive system upgrades including PVC plumbing replacement, CPVC water lines connected to city water, a new septic system with tank, lift station, and drain field, new copper wiring, a new panel with 200 amp electrical service, and a voltage guard system. Additional upgrades include impact windows and doors, a new roof replaced in 2020, new AC ductwork, a commercial grade water heater, and fresh stucco with Sherwin Williams premium paint inside and out. Outdoor living is thoughtfully designed with a covered aluminum terrace, pavers, an outdoor kitchen, fire pit, and multiple seating areas. The expansive lot offers privacy and space, enhanced by fruit trees including mango, banana, papaya, guava, sugar apple, star fruit, lychee, pear, and peach. The property includes RV parking with a 50 amp hookup, space for boats or trailers, and a Tuff Shed installed in 2023. With R6 zoning, ADU allowance, and approved additional dwelling plans, this home offers strong future build opportunity and long term rental potential, all with no HOA restrictions. Situated in Town and Country Tampa, the home provides convenient access to Veterans Expressway, Hillsborough Avenue, and Courtney Campbell Causeway, with Tampa International Airport minutes away. Enjoy proximity to International Plaza, the Westshore District, Downtown Tampa, Clearwater Beach, St. Pete Beach, Raymond James Stadium, Amalie Arena, Busch Gardens, and the Tampa Riverwalk. Opportunities offering this level of land, R6 zoning, infrastructure upgrades, and expansion potential are extremely rare in Tampa. Schedule your private showing and secure this home today!
Listing Information
Property Type: Residential, Single Family Residence
Status: Active
Bedrooms: 4
Bathrooms: 3
Lot Size: 0.58 Acres
Square Feet: 1,768 sq ft
Year Built: 1965
Stories: 1 Story
Construction: Block,Concrete
Construction Display: New Construction
Subdivision: Byars Heights Resub
Foundation: Slab
County: Hillsborough
Construction Status: New Construction
School Information
Elementary: Bay Crest-Hb
Middle: Davidsen-Hb
High: Alonso-Hb
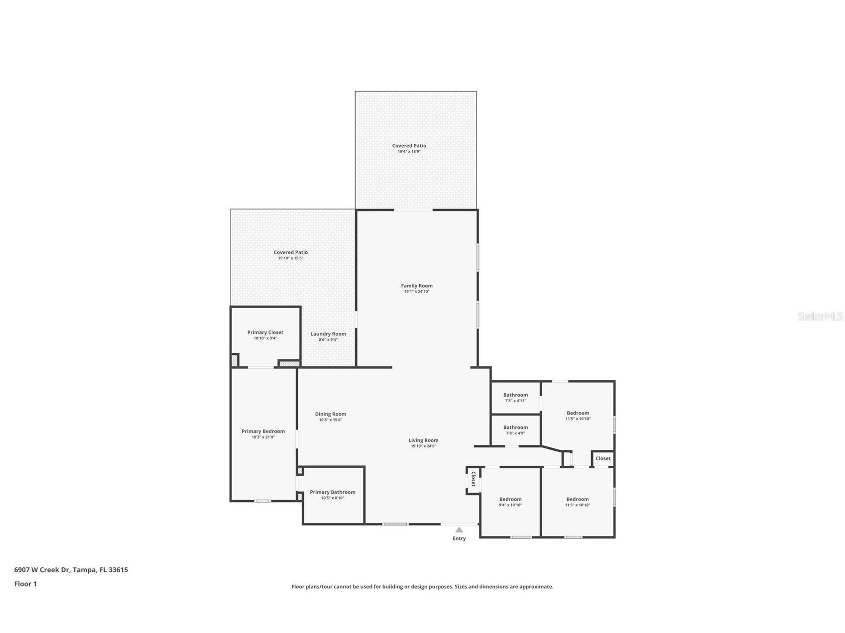
Room Information
Main Floor
Primary Bathroom:
Bedroom 2: 10.1x9.4
Primary Bedroom: 21x10.3
Family Room: 24.1x19.1
Dining Room: 15.6x10.5
Living Room: 24.9x19.1
Kitchen:
Porch: 18.9x19.4
Porch: 15.5x19.1
Laundry: 9.4x8.6
Bathroom 3: 4.9x7.8
Bathroom 2: 4.11x7.8
Bedroom 4: 10.1x11.5
Bedroom 3: 10.1x11.5
Bathrooms
Full Baths: 3
Additonal Room Information
Laundry: Outside
Interior Features
Appliances: Range Hood, Electric Water Heater, Disposal, Range, Refrigerator, Microwave, Wine Refrigerator, Built-In Oven, Ice Maker, Bar Fridge
Flooring: Porcelain Tile,Tile
Doors/Windows: Window Treatments, Storm Window(s), Double Pane Windows
Additional Interior Features: Split Bedrooms, Walk-In Closet(s), Window Treatments, Ceiling Fan(s), Other, Wet Bar, Eat-In Kitchen, Main Level Primary, Solid Surface Counters, Stone Counters, Wood Cabinets, Built-in Features, Dry Bar, Kitchen/Family Room Combo, Open Floorplan, Living/Dining Room, High Ceilings
Utilities
Water: Public
Sewer: Septic Needed
Other Utilities: Electricity Available,Sewer Connected,Water Connected
Cooling: Ceiling Fan(s), Central Air, Ductless
Heating: Central
Exterior / Lot Features
Parking Description: RV Access/Parking, driveway
Roof: Shingle
Lot View: Garden,Trees/Woods
Fencing: Vinyl
Additional Exterior/Lot Features: Storage, Other, Lighting, Patio, Porch, Covered, Rear Porch, Flat, Level, Landscaped, Oversized Lot
Out Buildings: Shed(s)
Community Features
Security Features: Smoke Detector(s), Security System
Driving Directions
get onto the Veterans Expwy heading towards FL-589 Toll S/Tampa Int'l Airport/Clearwater, Take exit 6A toward W Waters Ave, Use the right lane to take the ramp to Town N Country/Keiser Univ, Turn right onto W Waters Ave, Use the 2nd from the left lane to turn left onto Sheldon Rd, Turn right onto W Hamilton Ave, Turn left onto W Creek Dr, Destination will be on the left.
Financial Considerations
Terms: Cash,Conventional,FHA,VA Loan
Tax/Property ID: U-27-28-17-0AW-000005-00024.1
Tax Amount: 5647
Tax Year: 2024
A broker reciprocity listing courtesy: LPT REALTY, LLC
Based on information provided by Stellar MLS as distributed by the MLS GRID. Information from the Internet Data Exchange is provided exclusively for consumers’ personal, non-commercial use, and such information may not be used for any purpose other than to identify prospective properties consumers may be interested in purchasing. This data is deemed reliable but is not guaranteed to be accurate by Edina Realty, Inc., or by the MLS. Edina Realty, Inc., is not a multiple listing service (MLS), nor does it offer MLS access.
Copyright 2026 Stellar MLS as distributed by the MLS GRID. All Rights Reserved.
Payment Calculator
Interest rate and annual percentage rate (APR) are based on current market conditions, are for informational purposes only, are subject to change without notice and may be subject to pricing add-ons related to property type, loan amount, loan-to-value, credit score and other variables. Estimated closing costs used in the APR calculation are assumed to be paid by the borrower at closing. If the closing costs are financed, the loan, APR and payment amounts will be higher. If the down payment is less than 20%, mortgage insurance may be required and could increase the monthly payment and APR. Contact us for details. Additional loan programs may be available. Accuracy is not guaranteed, and all products may not be available in all borrower's geographical areas and are based on their individual situation. This is not a credit decision or a commitment to lend.
Sales History & Tax Summary for 6907 W Creek Drive
Sales History
| Date | Price | |
|---|---|---|
| Currently not available. | ||
Tax Summary
| Tax Year | Estimated Market Value | Total Tax |
|---|---|---|
| Currently not available. | ||
Data powered by ATTOM Data Solutions. Copyright© 2026. Information deemed reliable but not guaranteed.
Schools
Schools nearby 6907 W Creek Drive
| Schools in attendance boundaries | Grades | Distance | Rating |
|---|---|---|---|
| Loading... | |||
| Schools nearby | Grades | Distance | Rating |
|---|---|---|---|
| Loading... | |||
Data powered by ATTOM Data Solutions. Copyright© 2026. Information deemed reliable but not guaranteed.
The schools shown represent both the assigned schools and schools by distance based on local school and district attendance boundaries. Attendance boundaries change based on various factors and proximity does not guarantee enrollment eligibility. Please consult your real estate agent and/or the school district to confirm the schools this property is zoned to attend. Information is deemed reliable but not guaranteed.
SchoolDigger ® Rating
The SchoolDigger rating system is a 1-5 scale with 5 as the highest rating. SchoolDigger ranks schools based on test scores supplied by each state's Department of Education. They calculate an average standard score by normalizing and averaging each school's test scores across all tests and grades.
Coming soon properties will soon be on the market, but are not yet available for showings.