6918 Hanover Court Lakewood Ranch, FL 34202
For Sale MLS# A4668217
2 beds 2 baths 1,405 sq ft Single Family
Details for 6918 Hanover Court
MLS# A4668217
Description for 6918 Hanover Court, Lakewood Ranch, FL, 34202
WHY WAIT TO BUILD? GORGEOUS, WATER VIEW POOL HOME IS READY NOW AND WITH A NEW PRICE! Welcome to Del Webb Lakewood Ranch and this adorable, highly upgraded Contour model featuring a superb water view and a gorgeous 2 year new saltwater pool surrounded by custom travertine pavers and an oversized lanai with remote-control storm shutters all the way around. The custom landscaping with decorative curbing and accent lighting enhances the expansive curb appeal, which offers exceptional privacy and a perfect setting to enjoy sunset views over the pond while relaxing in your no-see-um screened lanai. Step inside this meticulously maintained home, where porcelain tile floors and custom crown molding set an elegant tone throughout. The chef’s kitchen is a showstopper, featuring KitchenAid appliances, granite countertops, a custom tile backsplash with under-cabinet lighting, pull-out shelving in all lower cabinets, and an oversized island that seats three—ideal for cooking, entertaining, or casual dining. The master bedroom suite offers a tranquil retreat with water views, porcelain tile flooring, ceiling fan, and a spa-like bath complete with dual sink vanity with drawers, a tiled step-in shower with upgraded glass door, private water closet, linen closet, and a large walk-in closet. The guest bedroom is spacious and bright, featuring a walk-in closet, recessed lighting, and easy access to the guest bath. The cozy den provides flexible space for a home office, craft room, or additional guest area. Additional highlights include a whole-house generator, remote-control hurricane blinds, hurricane panels, epoxy garage floor, designer lighting and hardware, upgraded trim package, and a new water heater (2024). Del Webb Lakewood Ranch offers a vibrant, amenity-rich 55+ lifestyle with tennis, pickleball, bocce, fitness center, resort and lap pools, on-site restaurant and bar ($500 annual food & bev fee) & a full-time Lifestyle Director curating endless activities—all within a golf cart-friendly gated community. Ideally located near Sarasota, Bradenton, Tampa, and award-winning Gulf Coast beaches, this move-in ready home is your perfect opportunity to embrace Florida living at its best—schedule your showing today!
Listing Information
Property Type: Residential, Single Family Residence
Status: Active
Bedrooms: 2
Bathrooms: 2
Lot Size: 0.21 Acres
Square Feet: 1,405 sq ft
Year Built: 2020
Garage: Yes
Stories: 1 Story
Construction: Block,Stucco
Subdivision: Del Webb Ph Iii Subph 3a, 3b & 3c
Builder: Pulte
Foundation: Slab
County: Manatee
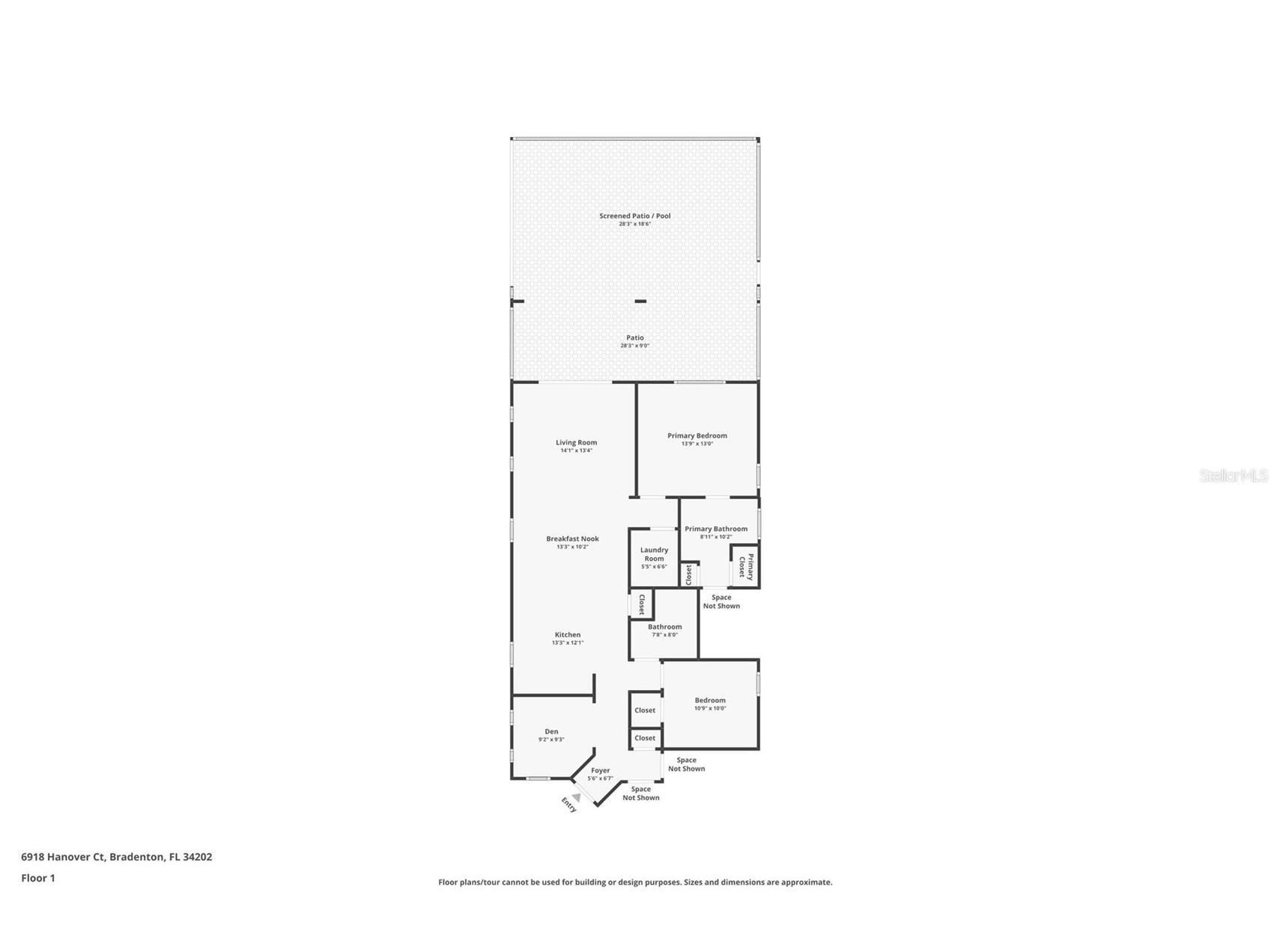
Room Information
Main Floor
Den: 9.1x9
Bedroom 2: 10x11
Primary Bedroom: 13x14
Kitchen: 10x14
Dinette: 8.4x13.1
Living Room: 13x14
Bathrooms
Full Baths: 2
Additonal Room Information
Laundry: Laundry Room
Interior Features
Appliances: Microwave, Dishwasher, Disposal, Dryer, Range, Refrigerator, Gas Water Heater, Washer, Range Hood
Flooring: Porcelain Tile
Doors/Windows: Blinds, Window Treatments
Additional Interior Features: Walk-In Closet(s), Window Treatments, Living/Dining Room, Crown Molding, Open Floorplan, Stone Counters
Utilities
Water: Public
Sewer: Public Sewer
Other Utilities: Cable Available,Electricity Connected,Natural Gas Connected,High Speed Internet Available,Sewer Connected,Water Connected
Cooling: Central Air
Heating: Natural Gas, Central
Exterior / Lot Features
Attached Garage: Attached Garage
Garage Spaces: 2
Parking Description: Garage, Garage Door Opener
Roof: Tile
Pool: Community, Heated, Gunite, Salt Water
Lot View: Pond,Water
Additional Exterior/Lot Features: Storm/Security Shutters, In-Wall Pest Control System, Sprinkler/Irrigation, Lighting, Oversized Lot, Buyer Approval Required
Waterfront Details
Water Front Features: Pond
Community Features
Community Features: Restaurant, Fitness, Golf Carts OK, Recreation Area, Sidewalks, Pool, Tennis Court(s), Clubhouse, Dog Park, Gated
Security Features: Gated Community, Gated with Guard
HOA Dues Include: Association Management, Recreation Facilities, Pest Control, Maintenance Grounds, Reserve Fund, Pool(s)
Homeowners Association: Yes
HOA Dues: $1,549 / Quarterly
Driving Directions
From State Rt 70, just east of Uhlein Rd is entrance to Del Webb LWR on right. Proceed through after stopping at guard. GO straight in and turn left at Roxbury Loop to Eastbrook Terrace, left of Eastbrook to Hanover Ct, left to home on left almost to end of cul de sac. Home on left. Ok to park in driveway.
Financial Considerations
Terms: Cash,Conventional,VA Loan
Tax/Property ID: 586148009
Tax Amount: 5568.97
Tax Year: 2024
A broker reciprocity listing courtesy: EXP REALTY LLC
Based on information provided by Stellar MLS as distributed by the MLS GRID. Information from the Internet Data Exchange is provided exclusively for consumers’ personal, non-commercial use, and such information may not be used for any purpose other than to identify prospective properties consumers may be interested in purchasing. This data is deemed reliable but is not guaranteed to be accurate by Edina Realty, Inc., or by the MLS. Edina Realty, Inc., is not a multiple listing service (MLS), nor does it offer MLS access.
Copyright 2026 Stellar MLS as distributed by the MLS GRID. All Rights Reserved.
Payment Calculator
Interest rate and annual percentage rate (APR) are based on current market conditions, are for informational purposes only, are subject to change without notice and may be subject to pricing add-ons related to property type, loan amount, loan-to-value, credit score and other variables. Estimated closing costs used in the APR calculation are assumed to be paid by the borrower at closing. If the closing costs are financed, the loan, APR and payment amounts will be higher. If the down payment is less than 20%, mortgage insurance may be required and could increase the monthly payment and APR. Contact us for details. Additional loan programs may be available. Accuracy is not guaranteed, and all products may not be available in all borrower's geographical areas and are based on their individual situation. This is not a credit decision or a commitment to lend.
Sales History & Tax Summary for 6918 Hanover Court
Sales History
| Date | Price | |
|---|---|---|
| Currently not available. | ||
Tax Summary
| Tax Year | Estimated Market Value | Total Tax |
|---|---|---|
| Currently not available. | ||
Data powered by ATTOM Data Solutions. Copyright© 2026. Information deemed reliable but not guaranteed.
Schools
Schools nearby 6918 Hanover Court
| Schools in attendance boundaries | Grades | Distance | Rating |
|---|---|---|---|
| Loading... | |||
| Schools nearby | Grades | Distance | Rating |
|---|---|---|---|
| Loading... | |||
Data powered by ATTOM Data Solutions. Copyright© 2026. Information deemed reliable but not guaranteed.
The schools shown represent both the assigned schools and schools by distance based on local school and district attendance boundaries. Attendance boundaries change based on various factors and proximity does not guarantee enrollment eligibility. Please consult your real estate agent and/or the school district to confirm the schools this property is zoned to attend. Information is deemed reliable but not guaranteed.
SchoolDigger ® Rating
The SchoolDigger rating system is a 1-5 scale with 5 as the highest rating. SchoolDigger ranks schools based on test scores supplied by each state's Department of Education. They calculate an average standard score by normalizing and averaging each school's test scores across all tests and grades.
Coming soon properties will soon be on the market, but are not yet available for showings.