6941 Tallow Tree Road Sanford, FL 32771
For Sale MLS# O6365918
4 beds 3 baths 2,507 sq ft Single Family
Details for 6941 Tallow Tree Road
MLS# O6365918
Description for 6941 Tallow Tree Road, Sanford, FL, 32771
Welcome to this fully renovated 4-bedroom, 2.5-bath custom home offering over 2,500 sq. ft. of modern living space, a 2-car garage, and a rare 1-acre homesite in Sanford. Thoughtfully updated from top to bottom, this home delivers style, comfort, and functionality in every detail. Step inside to a bright, open layout designed for everyday living and entertaining. The new gourmet kitchen features sleek finishes and flows into the spacious living and dining areas, anchored by a wood-burning fireplace. New tile flooring spans the entire first floor, and the primary suite offers a custom tiled walk-in shower and a generous walk-in closet. Upstairs, you’ll find three large bedrooms, a loft area with new laminate flooring, and an updated secondary bathroom. Major upgrades include a brand-new roof, cement siding, new fence, new driveway, and a whole-house GENERAC generator, providing peace of mind and long-term value. The expansive backyard is fully fenced with a large stone-paved patio—ideal for future additions such as a pool, garden, or outdoor entertaining area. Located in a quiet, no-HOA community just minutes from major highways, shopping, dining, and Sanford’s historic district, this move-in ready home offers the perfect blend of privacy and convenience. Schedule your showing today—homes like this are rare. Some images have been virtually staged.
Listing Information
Property Type: Residential, Single Family Residence
Status: Active
Bedrooms: 4
Bathrooms: 3
Lot Size: 1 Acres
Square Feet: 2,507 sq ft
Year Built: 1984
Garage: Yes
Stories: 2 Story
Construction: Cement Siding,Wood Frame
Subdivision: Sylva Glade
Foundation: Slab
County: Seminole
School Information
Elementary: Wilson Elementary School
Middle: Markham Woods Middle
High: Seminole High
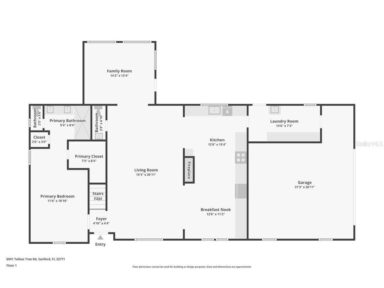
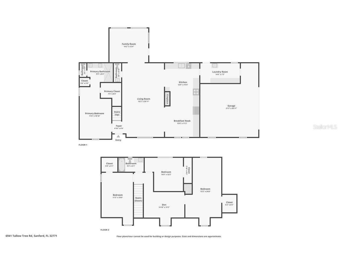
Room Information
Main Floor
Family Room: 12.5x14.5
Primary Bedroom: 18x11
Kitchen: 12x15
Living Room: 27x15
Upper Floor
Bedroom 4: 13x25
Bedroom 3: 12x14
Bedroom 2: 19x11
Bathrooms
Full Baths: 2
1/2 Baths: 1
Additonal Room Information
Laundry: Laundry Room
Interior Features
Appliances: Electric Water Heater, Range, Refrigerator, Dishwasher, Disposal, Microwave
Flooring: Ceramic Tile,Laminate
Fireplaces: Living Room, Wood Burning
Additional Interior Features: Ceiling Fan(s), Walk-In Closet(s), Built-in Features, Main Level Primary, Solid Surface Counters
Utilities
Water: Well, Private
Sewer: Septic Tank
Other Utilities: Cable Available,Electricity Connected,High Speed Internet Available
Cooling: Ceiling Fan(s), Central Air
Heating: Central, Electric
Exterior / Lot Features
Attached Garage: Attached Garage
Garage Spaces: 2
Parking Description: Garage Door Opener, Garage, Oversized, driveway
Roof: Shingle
Fencing: Wood, fenced
Additional Exterior/Lot Features: Rain Gutters, Landscaped
Driving Directions
Heading east on 46, turn right on Glade Ave. House will be straight in front of you.
Financial Considerations
Terms: Cash,Conventional,FHA,VA Loan
Tax/Property ID: 26-19-29-506-0000-0150
Tax Amount: 2567.18
Tax Year: 2024
A broker reciprocity listing courtesy: KELLER WILLIAMS WINTER PARK
Based on information provided by Stellar MLS as distributed by the MLS GRID. Information from the Internet Data Exchange is provided exclusively for consumers’ personal, non-commercial use, and such information may not be used for any purpose other than to identify prospective properties consumers may be interested in purchasing. This data is deemed reliable but is not guaranteed to be accurate by Edina Realty, Inc., or by the MLS. Edina Realty, Inc., is not a multiple listing service (MLS), nor does it offer MLS access.
Copyright 2026 Stellar MLS as distributed by the MLS GRID. All Rights Reserved.
Payment Calculator
Interest rate and annual percentage rate (APR) are based on current market conditions, are for informational purposes only, are subject to change without notice and may be subject to pricing add-ons related to property type, loan amount, loan-to-value, credit score and other variables. Estimated closing costs used in the APR calculation are assumed to be paid by the borrower at closing. If the closing costs are financed, the loan, APR and payment amounts will be higher. If the down payment is less than 20%, mortgage insurance may be required and could increase the monthly payment and APR. Contact us for details. Additional loan programs may be available. Accuracy is not guaranteed, and all products may not be available in all borrower's geographical areas and are based on their individual situation. This is not a credit decision or a commitment to lend.
Sales History & Tax Summary for 6941 Tallow Tree Road
Sales History
| Date | Price | |
|---|---|---|
| Currently not available. | ||
Tax Summary
| Tax Year | Estimated Market Value | Total Tax |
|---|---|---|
| Currently not available. | ||
Data powered by ATTOM Data Solutions. Copyright© 2026. Information deemed reliable but not guaranteed.
Schools
Schools nearby 6941 Tallow Tree Road
| Schools in attendance boundaries | Grades | Distance | Rating |
|---|---|---|---|
| Loading... | |||
| Schools nearby | Grades | Distance | Rating |
|---|---|---|---|
| Loading... | |||
Data powered by ATTOM Data Solutions. Copyright© 2026. Information deemed reliable but not guaranteed.
The schools shown represent both the assigned schools and schools by distance based on local school and district attendance boundaries. Attendance boundaries change based on various factors and proximity does not guarantee enrollment eligibility. Please consult your real estate agent and/or the school district to confirm the schools this property is zoned to attend. Information is deemed reliable but not guaranteed.
SchoolDigger ® Rating
The SchoolDigger rating system is a 1-5 scale with 5 as the highest rating. SchoolDigger ranks schools based on test scores supplied by each state's Department of Education. They calculate an average standard score by normalizing and averaging each school's test scores across all tests and grades.
Coming soon properties will soon be on the market, but are not yet available for showings.