699 S Dixie Drive Howey In The Hills, FL 34737 - HARRIS CHAIN OF LAKES
For Sale MLS# G5099458
3 beds 2 baths 1,651 sq ft Single Family
Details for 699 S Dixie Drive
MLS# G5099458
Description for 699 S Dixie Drive, Howey In The Hills, FL, 34737 - HARRIS CHAIN OF LAKES
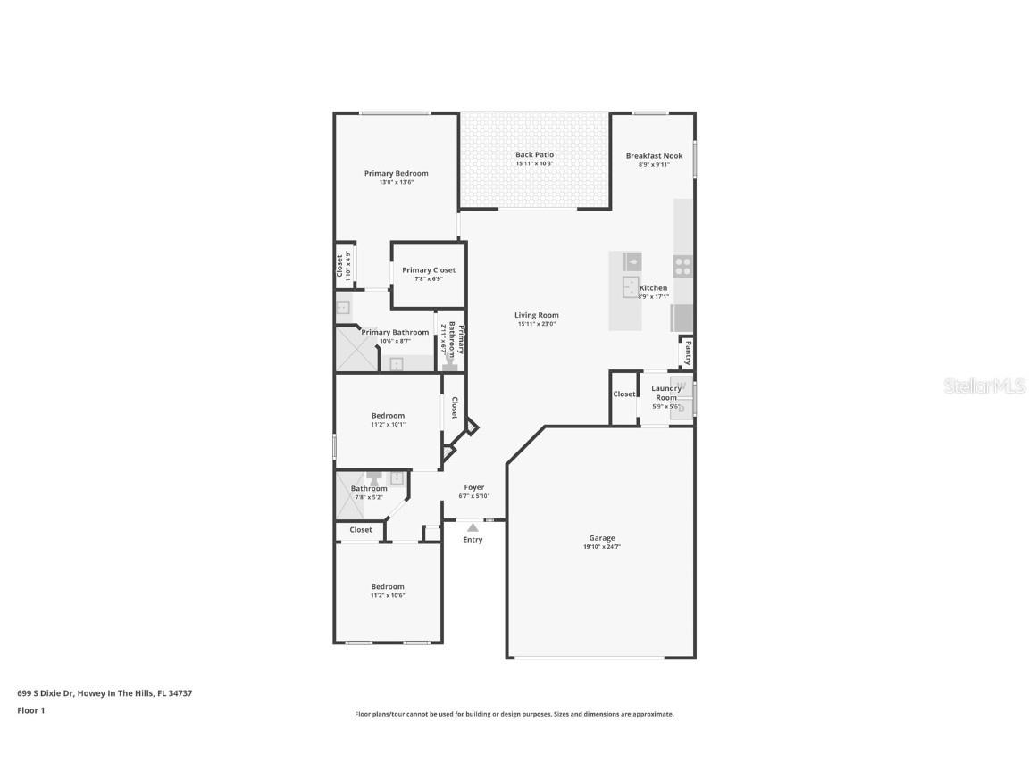
This move in ready and nearly new, one-owner home that offers peaceful living in the heart of Howey in the Hills. Built in 2019 and meticulously maintained, this 3-bedroom, 2-bath home features a bright, open floor plan with vaulted ceilings in the main living area that create a spacious and airy feel. The kitchen, living, and dining areas flow seamlessly—perfect for both everyday living and entertaining. The oversized garage has been extended 4 feet to comfortably fit larger vehicles or a small boat—an added bonus with the community boat ramp just a few blocks away. Sitting on a fully fenced corner lot over a quarter acre in size, there’s plenty of room to enjoy outdoor living, garden, park your boat or RV, add a shed, or let the pets run free in the yard. Located in a quiet, established neighborhood with no HOA (you park your boat, trailer, or RV on your property!) this home is ideal for anyone looking to enjoy a slower pace without sacrificing convenience. You’re just minutes from the Florida Turnpike and a short drive to the community boat ramp with access to the Harris Chain of Lakes. This home combines comfort, functionality, and a great location—all within easy reach of everything Central Florida has to offer. Whether you're downsizing, relocating, or searching for your first home, this one checks all the boxes.
Listing Information
Property Type: Residential, Single Family Residence
Status: Active
Bedrooms: 3
Bathrooms: 2
Lot Size: 0.28 Acres
Square Feet: 1,651 sq ft
Year Built: 2019
Garage: Yes
Stories: 1 Story
Construction: Block,Stucco
Subdivision: Howey Palm Gardens
Foundation: Slab
County: Lake
Room Information
Main Floor
Dining Room: 16.2x10
Kitchen: 17.5x10
Bedroom 3: 10x11
Bedroom 2: 11x11
Living Room: 23x15
Primary Bedroom: 13x13
Bathrooms
Full Baths: 2
Additonal Room Information
Laundry: Inside
Interior Features
Appliances: Electric Water Heater, Dishwasher, Microwave, Refrigerator
Flooring: Carpet,Ceramic Tile
Additional Interior Features: Living/Dining Room, Ceiling Fan(s), Eat-In Kitchen, Open Floorplan
Utilities
Water: Public
Sewer: Septic Tank
Other Utilities: Cable Available,Electricity Connected,High Speed Internet Available,Water Connected
Cooling: Ceiling Fan(s), Central Air
Heating: Electric, Central
Exterior / Lot Features
Attached Garage: Attached Garage
Garage Spaces: 2
Roof: Shingle
Lot Dimensions: 82.5x150
Fencing: Chain Link
Additional Exterior/Lot Features: Sprinkler/Irrigation, Rear Porch, Corner Lot
Waterfront Details
Standard Water Body: HARRIS CHAIN OF LAKES
Water Front Features: Lake Privileges
Driving Directions
Heading south on HWY 27 and travel north on SR 19. Turn left on South Dixie Drive and left on West. Oleander Avenue. The home is on your right.
Financial Considerations
Terms: Cash,Conventional,FHA,VA Loan
Tax/Property ID: 26-20-25-0400-D13-00100
Tax Amount: 2909.85
Tax Year: 2024
A broker reciprocity listing courtesy: COLDWELL BANKER VANGUARD EDGE
Based on information provided by Stellar MLS as distributed by the MLS GRID. Information from the Internet Data Exchange is provided exclusively for consumers’ personal, non-commercial use, and such information may not be used for any purpose other than to identify prospective properties consumers may be interested in purchasing. This data is deemed reliable but is not guaranteed to be accurate by Edina Realty, Inc., or by the MLS. Edina Realty, Inc., is not a multiple listing service (MLS), nor does it offer MLS access.
Copyright 2025 Stellar MLS as distributed by the MLS GRID. All Rights Reserved.
Payment Calculator
Interest rate and annual percentage rate (APR) are based on current market conditions, are for informational purposes only, are subject to change without notice and may be subject to pricing add-ons related to property type, loan amount, loan-to-value, credit score and other variables. Estimated closing costs used in the APR calculation are assumed to be paid by the borrower at closing. If the closing costs are financed, the loan, APR and payment amounts will be higher. If the down payment is less than 20%, mortgage insurance may be required and could increase the monthly payment and APR. Contact us for details. Additional loan programs may be available. Accuracy is not guaranteed, and all products may not be available in all borrower's geographical areas and are based on their individual situation. This is not a credit decision or a commitment to lend.
Sales History & Tax Summary for 699 S Dixie Drive
Sales History
| Date | Price | Change |
|---|---|---|
| Currently not available. | ||
Tax Summary
| Tax Year | Estimated Market Value | Total Tax |
|---|---|---|
| Currently not available. | ||
Data powered by ATTOM Data Solutions. Copyright© 2025. Information deemed reliable but not guaranteed.
Schools
Schools nearby 699 S Dixie Drive
| Schools in attendance boundaries | Grades | Distance | Rating |
|---|---|---|---|
| Loading... | |||
| Schools nearby | Grades | Distance | Rating |
|---|---|---|---|
| Loading... | |||
Data powered by ATTOM Data Solutions. Copyright© 2025. Information deemed reliable but not guaranteed.
The schools shown represent both the assigned schools and schools by distance based on local school and district attendance boundaries. Attendance boundaries change based on various factors and proximity does not guarantee enrollment eligibility. Please consult your real estate agent and/or the school district to confirm the schools this property is zoned to attend. Information is deemed reliable but not guaranteed.
SchoolDigger ® Rating
The SchoolDigger rating system is a 1-5 scale with 5 as the highest rating. SchoolDigger ranks schools based on test scores supplied by each state's Department of Education. They calculate an average standard score by normalizing and averaging each school's test scores across all tests and grades.
Coming soon properties will soon be on the market, but are not yet available for showings.