7 55th Street Yankeetown, FL 34498
For Sale MLS# GC535080
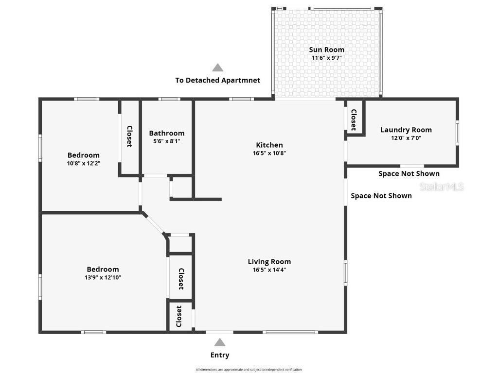
2 beds 1 baths 884 sq ft Single Family
Details for 7 55th Street
MLS# GC535080
Description for 7 55th Street, Yankeetown, FL, 34498
Move-In Ready Homestead with Guest House and Elevation Perk This flood-resistant concrete block home on 2/3-acre in historic Yankeetown has a very special feature: It’s one of the few Florida homes accepted into the new Elevate Florida program. This transferable program helps owners raise homes in coastal regions above flood zones. It pays up to $220,000, while the owner pays one-fourth or less of the total elevating costs. The owners have completed all of the paperwork through stage 2 of this process, including inspections. More info here: https://fdem-resmit.my.site.com/servlet/servlet.FileDownload?file=015cr000002gIIk. Main Home Features: • Completely Updated Interior: Custom waterproof wall panels, elevated GFCI outlets and stucco-protected walls. • Updated Kitchen & Bath: New cabinets, stainless appliances, and updated bathroom with new shower, toilet, and vanity. • Energy-Efficient Systems: Three 12,000 BTU hybrid solar-assisted mini-split systems cool and heat the property, with an average summer electric bill of just $150. • Water Systems: City water with a softener, reverse osmosis filtration, and a 2-year-old septic system (inspected October 2024). • Metal Roof: Durable Galvalume roof with prior wind mitigation and 4-point inspections. Detached Guest House: • 13x30 concrete block structure with metal roof, full kitchen, murphy bed, and updated bath. • Includes laundry hookup, a home theater, private deck and water feature. Additional Features: • Workshop Shed: New 10x16 solar-powered shed with flood vents and concrete anchorage. • Solar Energy: Independent solar panel arrays total 3,700 watts, none attached to the home’s roof, preserving insurance rates. • Outdoor Amenities: 20x20 galvanized carport, fully fenced yard, buried irrigation, above-ground pool with solar filtration, and low-maintenance rock garden. Edible Landscaping: The property boasts mature fruit trees (orange, grapefruit, olive, and mulberry), and pecan trees, plus elderberry, grapes, and figs. Prime Location: A few blocks from the Withlacoochee River boat launch, post office, library, and women’s club. Yankeetown’s quaint charm includes annual events, a local elementary school, and proximity to world-class kayaking and fishing. *•*•* Current flood insurance is assumable, providing peace of mind and affordability for new owners *•*•* Historic Yankeetown: A peaceful village with vibrant community life and rich history, including its Elvis Presley connection during the filming of Follow That Dream. This unique property blends Old Florida charm with modern upgrades. Schedule your showing today!
Listing Information
Property Type: Residential, Single Family Residence
Status: Active
Bedrooms: 2
Bathrooms: 1
Lot Size: 0.68 Acres
Square Feet: 884 sq ft
Year Built: 1972
Stories: 1 Story
Construction: Block,Stucco
Construction Display: New Construction
Subdivision: A F Knotts Land Companys 01
Foundation: Slab
County: Levy
Construction Status: New Construction
School Information
Elementary: Yankeetown School-Lv
Middle: Cedar Key High School-Lv
High: Cedar Key High School-Lv
Room Information
Main Floor
Kitchen:
Primary Bedroom:
Living Room:
Bathrooms
Full Baths: 1
Additonal Room Information
Laundry: Inside, Electric Dryer Hookup, Washer Hookup, Laundry Room
Interior Features
Appliances: Electric Water Heater, Water Softener, Range, Refrigerator
Flooring: Ceramic Tile
Doors/Windows: Blinds, Double Pane Windows
Additional Interior Features: Living/Dining Room, Ceiling Fan(s), Open Floorplan, Main Level Primary
Utilities
Water: Public
Sewer: Public Sewer
Other Utilities: Electricity Connected,High Speed Internet Available,Water Connected
Cooling: Ceiling Fan(s), Ductless, Attic Fan
Heating: Heat Pump, Heat Recovery System, Solar
Exterior / Lot Features
Roof: Metal
Pool: Above Ground, Pool Cover
Fencing: Wire, Wood, fenced
Additional Exterior/Lot Features: Rain Gutters, Storage, Lighting, Enclosed, Screened, Deck, Rear Porch, Front Porch, Flat, Level, Landscaped, City Lot, Dead End, Oversized Lot
Out Buildings: Other, Guest House, Storage, Workshop, Shed(s)
Community Features
Security Features: Fire Alarm, Security Lights, Security Gate, Smoke Detector(s)
Driving Directions
From HWY 40 W, Turn left onto 55th St. Property is approx. 0.1 mile on the right.
Financial Considerations
Terms: Cash,Conventional,FHA,VA Loan
Tax/Property ID: 08030-000-00
Tax Amount: 2152.1
Tax Year: 2023
A broker reciprocity listing courtesy: PROPERTUNITY REAL ESTATE PROS
Based on information provided by Stellar MLS as distributed by the MLS GRID. Information from the Internet Data Exchange is provided exclusively for consumers’ personal, non-commercial use, and such information may not be used for any purpose other than to identify prospective properties consumers may be interested in purchasing. This data is deemed reliable but is not guaranteed to be accurate by Edina Realty, Inc., or by the MLS. Edina Realty, Inc., is not a multiple listing service (MLS), nor does it offer MLS access.
Copyright 2025 Stellar MLS as distributed by the MLS GRID. All Rights Reserved.
Payment Calculator
Interest rate and annual percentage rate (APR) are based on current market conditions, are for informational purposes only, are subject to change without notice and may be subject to pricing add-ons related to property type, loan amount, loan-to-value, credit score and other variables. Estimated closing costs used in the APR calculation are assumed to be paid by the borrower at closing. If the closing costs are financed, the loan, APR and payment amounts will be higher. If the down payment is less than 20%, mortgage insurance may be required and could increase the monthly payment and APR. Contact us for details. Additional loan programs may be available. Accuracy is not guaranteed, and all products may not be available in all borrower's geographical areas and are based on their individual situation. This is not a credit decision or a commitment to lend.
Sales History & Tax Summary for 7 55th Street
Sales History
| Date | Price | Change |
|---|---|---|
| Currently not available. | ||
Tax Summary
| Tax Year | Estimated Market Value | Total Tax |
|---|---|---|
| Currently not available. | ||
Data powered by ATTOM Data Solutions. Copyright© 2025. Information deemed reliable but not guaranteed.
Schools
Schools nearby 7 55th Street
| Schools in attendance boundaries | Grades | Distance | Rating |
|---|---|---|---|
| Loading... | |||
| Schools nearby | Grades | Distance | Rating |
|---|---|---|---|
| Loading... | |||
Data powered by ATTOM Data Solutions. Copyright© 2025. Information deemed reliable but not guaranteed.
The schools shown represent both the assigned schools and schools by distance based on local school and district attendance boundaries. Attendance boundaries change based on various factors and proximity does not guarantee enrollment eligibility. Please consult your real estate agent and/or the school district to confirm the schools this property is zoned to attend. Information is deemed reliable but not guaranteed.
SchoolDigger ® Rating
The SchoolDigger rating system is a 1-5 scale with 5 as the highest rating. SchoolDigger ranks schools based on test scores supplied by each state's Department of Education. They calculate an average standard score by normalizing and averaging each school's test scores across all tests and grades.
Coming soon properties will soon be on the market, but are not yet available for showings.