7 River Oaks Way Palm Coast, FL 32137
For Sale MLS# FC310799
3 beds 3 baths 2,065 sq ft Single Family
Details for 7 River Oaks Way
MLS# FC310799
Description for 7 River Oaks Way, Palm Coast, FL, 32137
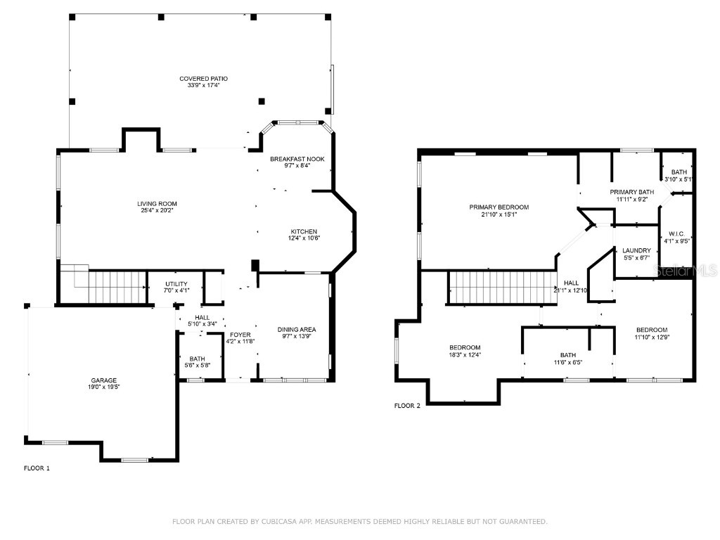
Nestled between the shimmering waters of the Intracoastal Waterway and the Atlantic Ocean, 7 River Oaks Way offers the perfect blend of coastal charm, quality construction, and serene privacy. Its location is truly unbeatable—tucked within the highly desirable and best-kept secret: the Hammock of Palm Coast. Located just off scenic A1A in the intimate community of River Oaks, this beautifully maintained 3-bedroom, 2.5-bath concrete block home spans over 2,000 square feet of well-designed living space. From the moment you arrive, you're greeted by a manicured lawn, stone-accented exterior, and a side-entry garage that enhances the home’s curb appeal. Step inside to find tile flooring throughout the main level, elegant double tray ceilings, arched doorways, and tasteful architectural details like accent columns and crown molding. The spacious dining room flows into a granite-clad kitchen with a breakfast nook, while French doors lead out to a paver-lined patio complete with a fire pit—an ideal setting to enjoy breezy afternoons beneath a canopy of mature trees. The downstairs also features a large, light-filled living area and a convenient guest half bathroom. Upstairs, the oversized primary suite impresses with soaring tray ceilings, French door entry, a luxurious jetted tub, walk-in tiled shower, double vanities, and a large walk-in closet. Two additional bedrooms share a convenient Jack-and-Jill bath, each with its own walk-in closet, while the upstairs laundry room adds ease to everyday living. This home is thoughtfully designed and truly move-in ready. Just a short stroll from your front door, the private community dock extends out over the Intracoastal Waterway—perfect for boat watching, spotting dolphins and manatees, or enjoying peaceful views of Florida’s abundant coastal wildlife. With HOA dues of only $50/month, this rare coastal gem is a lifestyle opportunity not to be missed.
Listing Information
Property Type: Residential, Single Family Residence
Status: Active
Bedrooms: 3
Bathrooms: 3
Lot Size: 0.30 Acres
Square Feet: 2,065 sq ft
Year Built: 2006
Garage: Yes
Stories: 2 Story
Construction: Block,Concrete,Stucco
Construction Display: New Construction
Subdivision: River Oaks Hammock
Foundation: Slab
County: Flagler
Construction Status: New Construction
School Information
Elementary: Imagine Schools Town Center (K-8)
Middle: Indian Trails Middle-Fc
High: Matanzas High
Room Information
Main Floor
Bathroom 3:
Living Room:
Kitchen:
Upper Floor
Bathroom 2:
Primary Bathroom:
Bedroom 3:
Bedroom 2:
Primary Bedroom:
Bathrooms
Full Baths: 2
1/2 Baths: 1
Additonal Room Information
Laundry: Laundry Room, Inside
Interior Features
Appliances: Dishwasher, Range, Refrigerator, Washer, Dryer, Microwave
Flooring: Tile,Vinyl,Wood
Doors/Windows: Blinds
Additional Interior Features: Ceiling Fan(s), Walk-In Closet(s), Tray Ceiling(s), Built-in Features, Upper Level Primary, Wood Cabinets, Solid Surface Counters
Utilities
Water: Public
Sewer: Septic Tank
Other Utilities: Cable Available,Electricity Available,Electricity Connected,Municipal Utilities,Water Available,Water Connected
Cooling: Ceiling Fan(s), Central Air
Heating: Heat Pump
Exterior / Lot Features
Attached Garage: Attached Garage
Garage Spaces: 2
Parking Description: driveway, Garage Door Opener, Garage
Roof: Shingle
Lot View: Trees/Woods
Additional Exterior/Lot Features: French Patio Doors, Rain Gutters, Sprinkler/Irrigation, Lighting, Covered, Patio
Community Features
Community Features: Dock, Waterfront, Gated, Golf Carts OK, Water Access
Security Features: Gated Community
Association Amenities: Gated
HOA Dues Include: Maintenance Grounds, Road Maintenance
Homeowners Association: Yes
HOA Dues: $50 / Monthly
Driving Directions
A1A to River Oaks Way
Financial Considerations
Terms: Cash,Conventional,FHA,VA Loan
Tax/Property ID: 40-10-31-5320-00000-0020
Tax Amount: 2995.09
Tax Year: 2024
A broker reciprocity listing courtesy: COASTAL GATEWAY REAL ESTATE GR
Based on information provided by Stellar MLS as distributed by the MLS GRID. Information from the Internet Data Exchange is provided exclusively for consumers’ personal, non-commercial use, and such information may not be used for any purpose other than to identify prospective properties consumers may be interested in purchasing. This data is deemed reliable but is not guaranteed to be accurate by Edina Realty, Inc., or by the MLS. Edina Realty, Inc., is not a multiple listing service (MLS), nor does it offer MLS access.
Copyright 2025 Stellar MLS as distributed by the MLS GRID. All Rights Reserved.
Payment Calculator
Interest rate and annual percentage rate (APR) are based on current market conditions, are for informational purposes only, are subject to change without notice and may be subject to pricing add-ons related to property type, loan amount, loan-to-value, credit score and other variables. Estimated closing costs used in the APR calculation are assumed to be paid by the borrower at closing. If the closing costs are financed, the loan, APR and payment amounts will be higher. If the down payment is less than 20%, mortgage insurance may be required and could increase the monthly payment and APR. Contact us for details. Additional loan programs may be available. Accuracy is not guaranteed, and all products may not be available in all borrower's geographical areas and are based on their individual situation. This is not a credit decision or a commitment to lend.
Sales History & Tax Summary for 7 River Oaks Way
Sales History
| Date | Price | Change |
|---|---|---|
| Currently not available. | ||
Tax Summary
| Tax Year | Estimated Market Value | Total Tax |
|---|---|---|
| Currently not available. | ||
Data powered by ATTOM Data Solutions. Copyright© 2025. Information deemed reliable but not guaranteed.
Schools
Schools nearby 7 River Oaks Way
| Schools in attendance boundaries | Grades | Distance | Rating |
|---|---|---|---|
| Loading... | |||
| Schools nearby | Grades | Distance | Rating |
|---|---|---|---|
| Loading... | |||
Data powered by ATTOM Data Solutions. Copyright© 2025. Information deemed reliable but not guaranteed.
The schools shown represent both the assigned schools and schools by distance based on local school and district attendance boundaries. Attendance boundaries change based on various factors and proximity does not guarantee enrollment eligibility. Please consult your real estate agent and/or the school district to confirm the schools this property is zoned to attend. Information is deemed reliable but not guaranteed.
SchoolDigger ® Rating
The SchoolDigger rating system is a 1-5 scale with 5 as the highest rating. SchoolDigger ranks schools based on test scores supplied by each state's Department of Education. They calculate an average standard score by normalizing and averaging each school's test scores across all tests and grades.
Coming soon properties will soon be on the market, but are not yet available for showings.