700 Starkey Road #1111 Largo, FL 33771
For Sale MLS# TB8357036
3 beds 2 baths 1,570 sq ft Condo
Details for 700 Starkey Road #1111
MLS# TB8357036
Description for 700 Starkey Road #1111, Largo, FL, 33771
One or more photo(s) has been virtually staged. PRICE IMPROVEMENT! Value is all around you in this first-floor split floorplan condominium offering the perfect combination of privacy and comfort, with no shared walls and easy access to covered parking. This spacious 3-bedroom, 2-bath corner unit in the highly desirable Forestbrook Condominium Community with direct access to East Bay Golf Club has so much to offer for a great price! Step inside to find new Marcona Hickory laminate flooring throughout and a welcoming, open layout. The bright eat-in kitchen is ideal for casual dining, and the entire unit has been freshly painted, ready for your personal touch. The generously sized primary bedroom is a standout feature, complete with two walk-in closets and dual vanities in the ensuite bathroom. Enjoy the peaceful ambiance of your fully screened lanai, accessible via sliding glass doors — the perfect spot for a morning coffee or evening relaxation. Convenience is key, with Maytag washer and dryer in the laundry room and all kitchen appliances included. Ceiling fans help keep the home comfortable, and the AC unit, replaced in 2019, ensures you stay cool year-round. Don't miss the chance to see this charming unit and envision yourself living in this lovely community. Schedule your showing today and make this home your own!
Listing Information
Property Type: Residential, Condominium
Status: Active
Bedrooms: 3
Bathrooms: 2
Square Feet: 1,570 sq ft
Year Built: 1980
Stories: 1 Story
Construction: Block,Stucco
Subdivision: Forestbrook Iv Condo
Foundation: Slab
County: Pinellas
School Information
Elementary: Southern Oak Elementary-Pn
Middle: Largo Middle-Pn
High: Largo High-Pn
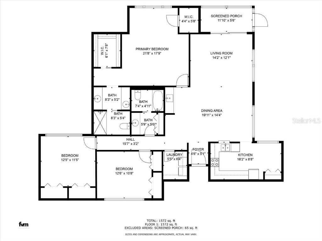
Room Information
Main Floor
Laundry: 5.4x6.4
Kitchen: 8.6x16.3
Porch: 5.9x12.5
Bedroom 3: 11.8x12.5
Bathroom 2: 7.4x10.4
Bedroom 2: 12.7x10.8
Primary Bathroom: 8.2x10.6
Primary Bedroom: 18x15.4
Living Room: 14.2x16
Dining Room: 14.2x8
Bathrooms
Full Baths: 2
Additonal Room Information
Laundry: Inside, Laundry Room, Common On Floor
Interior Features
Appliances: Washer, Microwave, Range, Refrigerator, Dishwasher, Disposal, Dryer
Flooring: Ceramic Tile,Laminate
Additional Interior Features: Living/Dining Room, Ceiling Fan(s), Eat-In Kitchen
Utilities
Water: Public
Sewer: Public Sewer
Other Utilities: Cable Connected,Electricity Connected,High Speed Internet Available,Municipal Utilities,Phone Available,Sewer Connected,Underground Utilities,Water Connected
Cooling: Ceiling Fan(s), Central Air, Humidity Control
Heating: Central, Electric
Exterior / Lot Features
Roof: Shingle
Pool: Community
Community Features
Community Features: Sidewalks, Pool, Street Lights, Community Mailbox
Association Amenities: Elevator(s)
HOA Dues Include: Cable TV, Trash, Water, Maintenance Structure, Pool(s), Reserve Fund, Association Management, Maintenance Grounds, Pest Control, Insurance, Sewer, Internet
Driving Directions
Head north on Starkey Rd past Ulmerton, turn west at Forestbrook Condos. Follow road around to the 1100 building on the right.
Financial Considerations
Terms: Cash,Conventional
Tax/Property ID: 35-29-15-28884-000-1111
Tax Amount: 669.86
Tax Year: 2024
A broker reciprocity listing courtesy: KELLER WILLIAMS REALTY PORTFOLIO COLLECTION
Based on information provided by Stellar MLS as distributed by the MLS GRID. Information from the Internet Data Exchange is provided exclusively for consumers’ personal, non-commercial use, and such information may not be used for any purpose other than to identify prospective properties consumers may be interested in purchasing. This data is deemed reliable but is not guaranteed to be accurate by Edina Realty, Inc., or by the MLS. Edina Realty, Inc., is not a multiple listing service (MLS), nor does it offer MLS access.
Copyright 2026 Stellar MLS as distributed by the MLS GRID. All Rights Reserved.
Payment Calculator
Interest rate and annual percentage rate (APR) are based on current market conditions, are for informational purposes only, are subject to change without notice and may be subject to pricing add-ons related to property type, loan amount, loan-to-value, credit score and other variables. Estimated closing costs used in the APR calculation are assumed to be paid by the borrower at closing. If the closing costs are financed, the loan, APR and payment amounts will be higher. If the down payment is less than 20%, mortgage insurance may be required and could increase the monthly payment and APR. Contact us for details. Additional loan programs may be available. Accuracy is not guaranteed, and all products may not be available in all borrower's geographical areas and are based on their individual situation. This is not a credit decision or a commitment to lend.
Sales History & Tax Summary for 700 Starkey Road #1111
Sales History
| Date | Price | |
|---|---|---|
| Currently not available. | ||
Tax Summary
| Tax Year | Estimated Market Value | Total Tax |
|---|---|---|
| Currently not available. | ||
Data powered by ATTOM Data Solutions. Copyright© 2026. Information deemed reliable but not guaranteed.
Schools
Schools nearby 700 Starkey Road #1111
| Schools in attendance boundaries | Grades | Distance | Rating |
|---|---|---|---|
| Loading... | |||
| Schools nearby | Grades | Distance | Rating |
|---|---|---|---|
| Loading... | |||
Data powered by ATTOM Data Solutions. Copyright© 2026. Information deemed reliable but not guaranteed.
The schools shown represent both the assigned schools and schools by distance based on local school and district attendance boundaries. Attendance boundaries change based on various factors and proximity does not guarantee enrollment eligibility. Please consult your real estate agent and/or the school district to confirm the schools this property is zoned to attend. Information is deemed reliable but not guaranteed.
SchoolDigger ® Rating
The SchoolDigger rating system is a 1-5 scale with 5 as the highest rating. SchoolDigger ranks schools based on test scores supplied by each state's Department of Education. They calculate an average standard score by normalizing and averaging each school's test scores across all tests and grades.
Coming soon properties will soon be on the market, but are not yet available for showings.