7001 Interbay Boulevard #242 Tampa, FL 33616
For Sale MLS# TB8393642
3 beds 3 baths 1,480 sq ft Townhouse/Twinhome
Details for 7001 Interbay Boulevard #242
MLS# TB8393642
Description for 7001 Interbay Boulevard #242, Tampa, FL, 33616
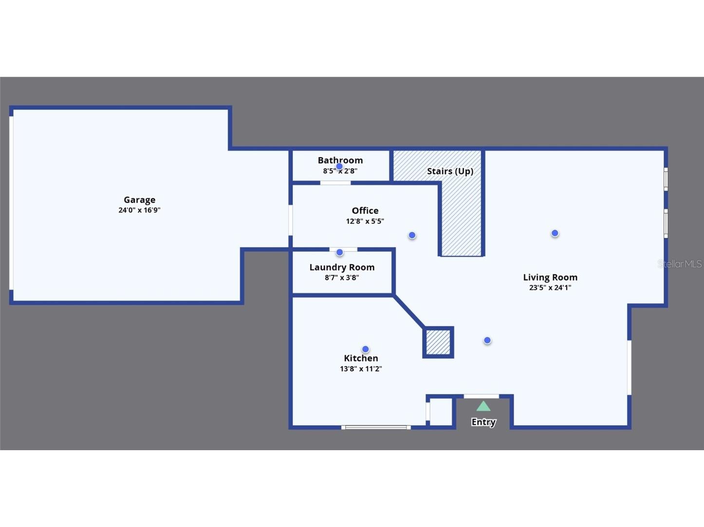
Modern Townhome Just Outside MacDill AFB – Comfort, Convenience & Style Welcome to 7001 Interbay Blvd, Tampa, FL – a well-maintained 3-bedroom, 2.5-bath townhome offering 1,428 square feet of thoughtfully designed living space. Located right near the gate of MacDill Air Force Base, this home is ideal for military personnel or anyone looking to live in one of South Tampa’s most convenient areas that is also in a NON-FLOOD ZONE. This well-laid-out home offers a bright, open feeling with tile flooring throughout the main living areas and an abundance of natural light. The thoughtful floor plan creates a seamless flow between the kitchen, dining, and living spaces, making it both functional and inviting. A spacious two-car garage adds to the home’s practicality, providing secure parking and additional storage. The kitchen features stainless steel appliances, granite countertops, a pantry, electric stove, cooktop, range hood, and dishwasher. The primary suite includes granite finishes and a private full bathroom. Step outside to your own screened-in patio—perfect for enjoying Florida’s weather in comfort and privacy, whether you're sipping coffee in the morning or winding down in the evening. Additional features include a laundry room with washer and dryer, private storage space, assigned parking, and guest parking. The gated community offers access to a pool, hot tub, clubhouse, fitness center, billiards room, and a shared courtyard and patio area. With close proximity to Bayshore Boulevard, downtown Tampa, shopping, dining, and more, this property offers both comfort and a highly desirable location. Schedule your showing today and see everything this home has to offer.
Listing Information
Property Type: Residential, Townhouse
Status: Active
Bedrooms: 3
Bathrooms: 3
Lot Size: 0.01 Acres
Square Feet: 1,480 sq ft
Year Built: 2015
Garage: Yes
Stories: 2 Story
Construction: Block
Subdivision: Schooner Cove A Condo Ph 48
Foundation: Slab
County: Hillsborough
Room Information
Main Floor
Kitchen:
Living Room:
Upper Floor
Primary Bedroom:
Bathrooms
Full Baths: 2
1/2 Baths: 1
Additonal Room Information
Laundry: Inside, Laundry Room
Interior Features
Appliances: Convection Oven, Exhaust Fan, Electric Water Heater, Washer, Dishwasher, Disposal, Dryer, Microwave, Refrigerator, Range Hood
Flooring: Tile
Additional Interior Features: Ceiling Fan(s), High Ceilings, Built-in Features, Upper Level Primary, Solid Surface Counters, Stone Counters, Wood Cabinets
Utilities
Water: Public
Sewer: Public Sewer
Other Utilities: Electricity Connected,Sewer Connected,Water Connected
Cooling: Central Air, Ceiling Fan(s)
Heating: Central
Exterior / Lot Features
Attached Garage: Attached Garage
Garage Spaces: 2
Parking Description: driveway, on street, Guest
Roof: Shingle
Pool: In Ground, Community
Fencing: Vinyl
Additional Exterior/Lot Features: Screened
Community Features
Community Features: Sidewalks, Pool, Clubhouse, Street Lights, Gated, Fitness
Security Features: Gated Community
HOA Dues Include: Maintenance Grounds, Recreation Facilities, Maintenance Structure, Pool(s)
Homeowners Association: Yes
HOA Dues: $626 / Monthly
Driving Directions
South on North Dale Mabry HWY to Interbay Blvd, Turn right into Schooner Cover, Make a left at turnabout and unit is on the left.
Financial Considerations
Terms: Cash,Conventional,FHA,VA Loan
Tax/Property ID: A-16-30-18-A0O-000000-00242.0
Tax Amount: 6456
Tax Year: 2024
A broker reciprocity listing courtesy: COMPASS FLORIDA, LLC
Based on information provided by Stellar MLS as distributed by the MLS GRID. Information from the Internet Data Exchange is provided exclusively for consumers’ personal, non-commercial use, and such information may not be used for any purpose other than to identify prospective properties consumers may be interested in purchasing. This data is deemed reliable but is not guaranteed to be accurate by Edina Realty, Inc., or by the MLS. Edina Realty, Inc., is not a multiple listing service (MLS), nor does it offer MLS access.
Copyright 2025 Stellar MLS as distributed by the MLS GRID. All Rights Reserved.
Payment Calculator
Interest rate and annual percentage rate (APR) are based on current market conditions, are for informational purposes only, are subject to change without notice and may be subject to pricing add-ons related to property type, loan amount, loan-to-value, credit score and other variables. Estimated closing costs used in the APR calculation are assumed to be paid by the borrower at closing. If the closing costs are financed, the loan, APR and payment amounts will be higher. If the down payment is less than 20%, mortgage insurance may be required and could increase the monthly payment and APR. Contact us for details. Additional loan programs may be available. Accuracy is not guaranteed, and all products may not be available in all borrower's geographical areas and are based on their individual situation. This is not a credit decision or a commitment to lend.
Sales History & Tax Summary for 7001 Interbay Boulevard #242
Sales History
| Date | Price | Change |
|---|---|---|
| Currently not available. | ||
Tax Summary
| Tax Year | Estimated Market Value | Total Tax |
|---|---|---|
| Currently not available. | ||
Data powered by ATTOM Data Solutions. Copyright© 2025. Information deemed reliable but not guaranteed.
Schools
Schools nearby 7001 Interbay Boulevard #242
| Schools in attendance boundaries | Grades | Distance | Rating |
|---|---|---|---|
| Loading... | |||
| Schools nearby | Grades | Distance | Rating |
|---|---|---|---|
| Loading... | |||
Data powered by ATTOM Data Solutions. Copyright© 2025. Information deemed reliable but not guaranteed.
The schools shown represent both the assigned schools and schools by distance based on local school and district attendance boundaries. Attendance boundaries change based on various factors and proximity does not guarantee enrollment eligibility. Please consult your real estate agent and/or the school district to confirm the schools this property is zoned to attend. Information is deemed reliable but not guaranteed.
SchoolDigger ® Rating
The SchoolDigger rating system is a 1-5 scale with 5 as the highest rating. SchoolDigger ranks schools based on test scores supplied by each state's Department of Education. They calculate an average standard score by normalizing and averaging each school's test scores across all tests and grades.
Coming soon properties will soon be on the market, but are not yet available for showings.