$450,000
7013 Mount Piney Road NE #724 Saint Petersburg, FL 33702 - TAMPA BAY
For Sale MLS# TB8452130
2 beds 2 baths 1,391 sq ft Single Family
Details for 7013 Mount Piney Road NE #724
MLS# TB8452130
Description for 7013 Mount Piney Road NE #724, Saint Petersburg, FL, 33702 - TAMPA BAY
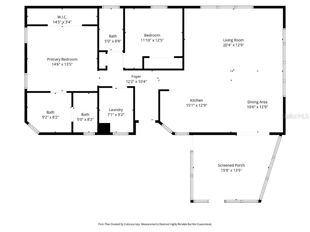
Experience the best of serene coastal living in this beautifully maintained 2-Bedroom, 2-Bath waterfront home, perfectly situated on an exceptionally large 70-ft waterfront lot. From the moment you enter the spacious foyer, you'll be captivated by the sweeping panoramic views showcased through the oversized windows that frame the tranquil canal and the lush, private mangroves just across the water. Built in 2000 (furnishings negotiable) this home feels remarkably open and airy thanks to its cathedral ceilings, which enhance the light-filled 1391 sq ft of living space. Elegant touches such as crown molding and tray ceilings add sophistication throughout. The seamless flow between the living, dining and kitchen areas creates an inviting atmosphere, while windows on multiple sides bathe the home in natural light from sunrise to sunset. Two spacious bedrooms provide privacy for residents and guests. The master bedroom has a large ensuite bath with double sinks, shower, and spacious walk-in closet. The guest bedroom includes a murphy bed and built in desk area, easily transitioning from office space to a comfortable retreat for visitors. The 7 X 9 laundry room adds exceptional convenience, complete with washer, dryer, built-in sink, and abundant cabinetry for extra storage. The expansive lanai overlooks the peaceful canal, a tranquil setting for morning coffee or sunset cocktails. The 40 ft dock with 10,000 lb boat lift (2000) offers direct access to open water and an easy 20-25 minute ride to Tampa Bay with no bridges. The 8 X 11 Shed has a work bench and loft for all your seasonal storage. Roof (2023), New foam vapor barrier (2024). Home is located in Americana Cove, a 55+ community with 24-hr manned gate. Low HOA $380 includes water, sewer, lawn mowing/edging, trash pickup, heated pool, fitness center, clubhouse, shuffleboard, bocce, and 2 boat ramps. Many clubs and activities for active lifestyles. Close to downtown St Petersburg (8 min), 2 airports (20 min) beaches (25 min). Don't miss this opportunity to live a coastal lifestyle in this beautiful home!
Listing Information
Property Type: Residential, Manufactured Home
Status: Active
Bedrooms: 2
Bathrooms: 2
Lot Size: 0.13 Acres
Square Feet: 1,391 sq ft
Year Built: 2000
Stories: 1 Story
Construction: Vinyl Siding
Subdivision: Mobel Americana Mobile Home Park Unrec
Foundation: Crawlspace
County: Pinellas
Room Information
Main Floor
Primary Bathroom: 14x8
Primary Bedroom: 18x15
Kitchen: 13x9
Dining Room: 12x9
Living Room: 19x13
Bathrooms
Full Baths: 2
Additonal Room Information
Laundry: Inside, Laundry Room
Interior Features
Appliances: Range Hood, Electric Water Heater, Washer, Dishwasher, Disposal, Dryer, Microwave, Range, Refrigerator
Flooring: Laminate
Basement: Crawl Space
Doors/Windows: Window Treatments
Accessibility: Wheelchair Access
Additional Interior Features: Eat-In Kitchen, Window Treatments, Ceiling Fan(s), High Ceilings, Living/Dining Room, Tray Ceiling(s), Cathedral Ceiling(s), Main Level Primary, Crown Molding, Kitchen/Family Room Combo, Open Floorplan
Utilities
Water: Public
Sewer: Public Sewer
Other Utilities: Cable Available,Electricity Connected,Natural Gas Available,Sewer Connected,Underground Utilities,Water Connected
Cooling: Ceiling Fan(s), Central Air
Heating: Central
Exterior / Lot Features
Roof: Shingle
Pool: Association, Community
Lot View: Canal,Water
Additional Exterior/Lot Features: Sprinkler/Irrigation, Rain Gutters, Near Public Transit, City Lot, Oversized Lot, Buyer Approval Required, Flood Zone, Near Golf Course
Waterfront Details
Standard Water Body: TAMPA BAY
Water Front Features: Canal Access, Canal Front
Community Features
Community Features: Golf Carts OK, Fishing, Fitness, Marina, Waterfront, Handicap Access, Boat Facilities, Dog Park, Gated, Street Lights, Clubhouse, Dock, Sidewalks, Boat Slip, Pool, Water Access, Community Mailbox
Security Features: Gated Community, Gated with Guard
Association Amenities: Fitness Center, Storage, Clubhouse, Pool, Shuffleboard Court, Laundry, Gated
HOA Dues Include: Maintenance Grounds, Association Management, Reserve Fund, Road Maintenance, Common Areas, Trash, Water, Security, Sewer, Taxes, Pool(s)
Homeowners Association: Yes
HOA Dues: $380 / Monthly
Driving Directions
Driving South on Fourth St North from Gandy, turn left on 72nd Ave NE (by Woody's Car Wash). Americana Cove is at the end of the street after crossing 1st Street .
Financial Considerations
Terms: Cash,Conventional
Tax/Property ID: 29-30-17-58340-000-7240
Tax Amount: 7780.15
Tax Year: 2025
A broker reciprocity listing courtesy: BAREFOOT REALTY GROUP
Based on information provided by Stellar MLS as distributed by the MLS GRID. Information from the Internet Data Exchange is provided exclusively for consumers’ personal, non-commercial use, and such information may not be used for any purpose other than to identify prospective properties consumers may be interested in purchasing. This data is deemed reliable but is not guaranteed to be accurate by Edina Realty, Inc., or by the MLS. Edina Realty, Inc., is not a multiple listing service (MLS), nor does it offer MLS access.
Copyright 2025 Stellar MLS as distributed by the MLS GRID. All Rights Reserved.
Payment Calculator
Interest rate and annual percentage rate (APR) are based on current market conditions, are for informational purposes only, are subject to change without notice and may be subject to pricing add-ons related to property type, loan amount, loan-to-value, credit score and other variables. Estimated closing costs used in the APR calculation are assumed to be paid by the borrower at closing. If the closing costs are financed, the loan, APR and payment amounts will be higher. If the down payment is less than 20%, mortgage insurance may be required and could increase the monthly payment and APR. Contact us for details. Additional loan programs may be available. Accuracy is not guaranteed, and all products may not be available in all borrower's geographical areas and are based on their individual situation. This is not a credit decision or a commitment to lend.
Sales History & Tax Summary for 7013 Mount Piney Road NE #724
Sales History
| Date | Price | Change |
|---|---|---|
| Currently not available. | ||
Tax Summary
| Tax Year | Estimated Market Value | Total Tax |
|---|---|---|
| Currently not available. | ||
Data powered by ATTOM Data Solutions. Copyright© 2025. Information deemed reliable but not guaranteed.
Schools
Schools nearby 7013 Mount Piney Road NE #724
| Schools in attendance boundaries | Grades | Distance | Rating |
|---|---|---|---|
| Loading... | |||
| Schools nearby | Grades | Distance | Rating |
|---|---|---|---|
| Loading... | |||
Data powered by ATTOM Data Solutions. Copyright© 2025. Information deemed reliable but not guaranteed.
The schools shown represent both the assigned schools and schools by distance based on local school and district attendance boundaries. Attendance boundaries change based on various factors and proximity does not guarantee enrollment eligibility. Please consult your real estate agent and/or the school district to confirm the schools this property is zoned to attend. Information is deemed reliable but not guaranteed.
SchoolDigger ® Rating
The SchoolDigger rating system is a 1-5 scale with 5 as the highest rating. SchoolDigger ranks schools based on test scores supplied by each state's Department of Education. They calculate an average standard score by normalizing and averaging each school's test scores across all tests and grades.
Coming soon properties will soon be on the market, but are not yet available for showings.