7015 Spears Road Plant City, FL 33567
For Sale MLS# TB8426633
3 beds 2 baths 2,644 sq ft Single Family
Details for 7015 Spears Road
MLS# TB8426633
Description for 7015 Spears Road, Plant City, FL, 33567
Massive Price Improvement. Opportunity Knocks in Plant City!Ask about preferred lender incentives that may help reduce buyer closing costs. Properties like this simply don’t come around often. Tucked away on 1.03 private acres at the end of a quiet dead-end street in Plant City, this one-of-a-kind property delivers the space, freedom, and infrastructure buyers are searching for, but rarely find. With an incredible 11+ garage spaces, a detached 6-bay workshop, attached 4-car garage, front 1-car garage, and RV carport, this is a dream setup for car collectors, small business owners, hobbyists, or anyone who needs serious storage and workspace. Inside, you’ll find 2,644 sq ft of living space featuring a spacious family room with fireplace and a flowing layout ready to be personalized. The kitchen and baths are ready for the perfect opportunity to renovate to your taste while benefiting from solid construction, generous room sizes, and major system updates, including two brand-new AC units, solar panels, metal roof, and septic system. Whether you're envisioning a home-based business, a hobby compound, or a private retreat with room to grow, this property delivers unmatched versatility at a newly improved price. Lender credit available when buyer elects to use preferred lender. Credit appears as lender credit on Closing Disclosure.Additional information available. Schedule your private showing today—opportunities like this don’t wait.
Listing Information
Property Type: Residential, Single Family Residence
Status: Active
Bedrooms: 3
Bathrooms: 2
Lot Size: 1.03 Acres
Square Feet: 2,644 sq ft
Year Built: 1974
Garage: Yes
Stories: 1 Story
Construction: Brick
Subdivision: Unplatted
Foundation: Slab
County: Hillsborough
School Information
Elementary: Robinson Elementary School-Hb
Middle: Turkey Creek-Hb
High: Durant-Hb
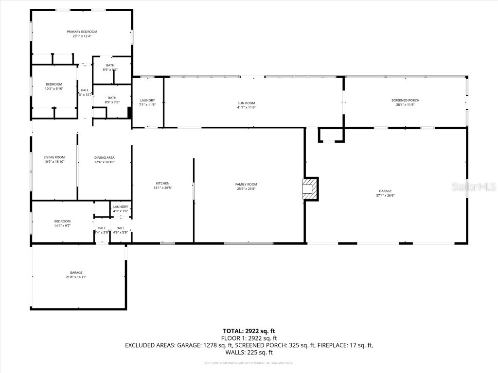
Room Information
Main Floor
Porch: 11.6x28.4
Family Room: 26.8x25.6
Laundry: 3.6x4.9
Florida Room: 11.6x41.7
Dining Room: 18.1x12.4
Living Room: 18.1x10.9
Kitchen: 26.8x14.1
Bedroom 3: 9.7x14.4
Bedroom 2: 9.1x10.5
Primary Bedroom: 12.4x23.1
Bathrooms
Full Baths: 2
Additonal Room Information
Laundry: Laundry Room
Interior Features
Appliances: Dishwasher, Disposal, Dryer, Microwave, Refrigerator, Washer, Solar Hot Water, Electric Water Heater
Flooring: Carpet,Laminate,Tile,Vinyl
Fireplaces: Family Room, Wood Burning
Additional Interior Features: Eat-In Kitchen, Walk-In Closet(s), Ceiling Fan(s)
Utilities
Water: Well
Sewer: Septic Tank
Other Utilities: Cable Available,Electricity Available,Electricity Connected,High Speed Internet Available,Water Available,Water Connected
Cooling: Ceiling Fan(s), Central Air
Heating: Central, Electric
Exterior / Lot Features
Attached Garage: Attached Garage
Garage Spaces: 10
Parking Description: driveway, Boat, RV Carport, Garage Faces Side, Workshop in Garage
Roof: Metal
Lot View: Trees/Woods
Lot Dimensions: 140x320
Fencing: Chain Link
Additional Exterior/Lot Features: Sprinkler/Irrigation, In-Wall Pest Control System, Side Porch, Front Porch, Screened, Flat, Level, Landscaped, Cleared, Pasture, Dead End, Oversized Lot
Out Buildings: Other, Workshop, Gazebo, RV/Boat Storage
Driving Directions
Hwy 60 to Turkey Creek Rd, L on Durant Rd , L on Spears Rd. Last home at the end of Spears Rd on L
Financial Considerations
Terms: Cash,Conventional
Tax/Property ID: U-01-30-21-ZZZ-000004-20900.0
Tax Amount: 3546.12
Tax Year: 2024
A broker reciprocity listing courtesy: KELLER WILLIAMS SUBURBAN TAMPA
Based on information provided by Stellar MLS as distributed by the MLS GRID. Information from the Internet Data Exchange is provided exclusively for consumers’ personal, non-commercial use, and such information may not be used for any purpose other than to identify prospective properties consumers may be interested in purchasing. This data is deemed reliable but is not guaranteed to be accurate by Edina Realty, Inc., or by the MLS. Edina Realty, Inc., is not a multiple listing service (MLS), nor does it offer MLS access.
Copyright 2026 Stellar MLS as distributed by the MLS GRID. All Rights Reserved.
Payment Calculator
Interest rate and annual percentage rate (APR) are based on current market conditions, are for informational purposes only, are subject to change without notice and may be subject to pricing add-ons related to property type, loan amount, loan-to-value, credit score and other variables. Estimated closing costs used in the APR calculation are assumed to be paid by the borrower at closing. If the closing costs are financed, the loan, APR and payment amounts will be higher. If the down payment is less than 20%, mortgage insurance may be required and could increase the monthly payment and APR. Contact us for details. Additional loan programs may be available. Accuracy is not guaranteed, and all products may not be available in all borrower's geographical areas and are based on their individual situation. This is not a credit decision or a commitment to lend.
Sales History & Tax Summary for 7015 Spears Road
Sales History
| Date | Price | |
|---|---|---|
| Currently not available. | ||
Tax Summary
| Tax Year | Estimated Market Value | Total Tax |
|---|---|---|
| Currently not available. | ||
Data powered by ATTOM Data Solutions. Copyright© 2026. Information deemed reliable but not guaranteed.
Schools
Schools nearby 7015 Spears Road
| Schools in attendance boundaries | Grades | Distance | Rating |
|---|---|---|---|
| Loading... | |||
| Schools nearby | Grades | Distance | Rating |
|---|---|---|---|
| Loading... | |||
Data powered by ATTOM Data Solutions. Copyright© 2026. Information deemed reliable but not guaranteed.
The schools shown represent both the assigned schools and schools by distance based on local school and district attendance boundaries. Attendance boundaries change based on various factors and proximity does not guarantee enrollment eligibility. Please consult your real estate agent and/or the school district to confirm the schools this property is zoned to attend. Information is deemed reliable but not guaranteed.
SchoolDigger ® Rating
The SchoolDigger rating system is a 1-5 scale with 5 as the highest rating. SchoolDigger ranks schools based on test scores supplied by each state's Department of Education. They calculate an average standard score by normalizing and averaging each school's test scores across all tests and grades.
Coming soon properties will soon be on the market, but are not yet available for showings.