702 S Solandra Drive Orlando, FL 32807
For Sale MLS# O6370125
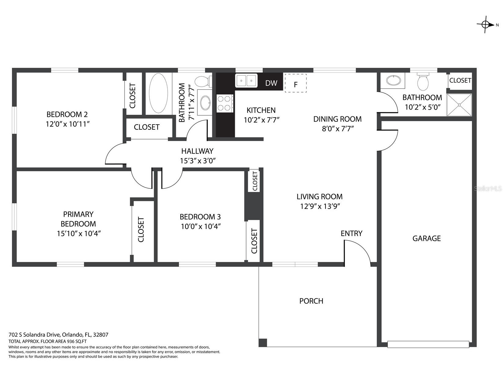
3 beds 2 baths 946 sq ft Single Family
Details for 702 S Solandra Drive
MLS# O6370125
Description for 702 S Solandra Drive, Orlando, FL, 32807
One or more photo(s) has been virtually staged. Welcome to this charming 3-bedroom, 2-bathroom single-family home in the heart of Orlando. Offering 946 square feet of well-designed living space, the home features an open floor plan that seamlessly connects the living room, dining area, and kitchen, creating a bright and inviting atmosphere. Vinyl flooring throughout adds a clean, modern touch. Recent updates include a new HVAC system (2024), a new roof (2023), brand-new exterior electrical wiring, and a new electrical box, ensuring comfort and peace of mind for years to come. The spacious backyard provides ample room for relaxing, gardening, or entertaining outdoors. Perfectly located just minutes from downtown Orlando, this home offers easy access to major highways, shopping, dining, Orlando International Airport, and world-class attractions like Disney. With its central location, thoughtful updates, and functional layout, this home is an excellent opportunity to enjoy the best of Orlando living. Mortgage savings may be available for buyers of this listing.
Listing Information
Property Type: Residential, Single Family Residence
Status: Active
Bedrooms: 3
Bathrooms: 2
Lot Size: 0.19 Acres
Square Feet: 946 sq ft
Year Built: 1958
Garage: Yes
Stories: 1 Story
Construction: Block,Concrete
Subdivision: Pine Grove Estates
Foundation: Slab
County: Orange
School Information
Elementary: Dover Shores Elem
Middle: Roberto Clemente Middle
High: Boone High
Room Information
Main Floor
Kitchen:
Living Room:
Primary Bedroom:
Bathrooms
Full Baths: 2
Additonal Room Information
Laundry: In Garage
Interior Features
Appliances: Dishwasher, Dryer, Range, Refrigerator, Washer
Flooring: Vinyl
Additional Interior Features: Eat-In Kitchen, Ceiling Fan(s), Open Floorplan, Main Level Primary
Utilities
Water: Public
Sewer: Septic Tank
Other Utilities: Cable Available,Electricity Connected,Water Connected
Cooling: Ceiling Fan(s), Central Air
Heating: Central, Electric
Exterior / Lot Features
Attached Garage: Attached Garage
Garage Spaces: 1
Parking Description: Garage, Garage Door Opener, driveway
Roof: Shingle
Fencing: fenced
Additional Exterior/Lot Features: Lighting, Corner Lot
Driving Directions
From 436 for W Andora to S on S. Solandra. House on right, corner lot
Financial Considerations
Terms: Cash,Conventional,FHA,VA Loan
Tax/Property ID: 33-22-30-6932-02-010
Tax Amount: 3564
Tax Year: 2025
A broker reciprocity listing courtesy: REDFIN CORPORATION
Based on information provided by Stellar MLS as distributed by the MLS GRID. Information from the Internet Data Exchange is provided exclusively for consumers’ personal, non-commercial use, and such information may not be used for any purpose other than to identify prospective properties consumers may be interested in purchasing. This data is deemed reliable but is not guaranteed to be accurate by Edina Realty, Inc., or by the MLS. Edina Realty, Inc., is not a multiple listing service (MLS), nor does it offer MLS access.
Copyright 2026 Stellar MLS as distributed by the MLS GRID. All Rights Reserved.
Payment Calculator
Interest rate and annual percentage rate (APR) are based on current market conditions, are for informational purposes only, are subject to change without notice and may be subject to pricing add-ons related to property type, loan amount, loan-to-value, credit score and other variables. Estimated closing costs used in the APR calculation are assumed to be paid by the borrower at closing. If the closing costs are financed, the loan, APR and payment amounts will be higher. If the down payment is less than 20%, mortgage insurance may be required and could increase the monthly payment and APR. Contact us for details. Additional loan programs may be available. Accuracy is not guaranteed, and all products may not be available in all borrower's geographical areas and are based on their individual situation. This is not a credit decision or a commitment to lend.
Sales History & Tax Summary for 702 S Solandra Drive
Sales History
| Date | Price | |
|---|---|---|
| Currently not available. | ||
Tax Summary
| Tax Year | Estimated Market Value | Total Tax |
|---|---|---|
| Currently not available. | ||
Data powered by ATTOM Data Solutions. Copyright© 2026. Information deemed reliable but not guaranteed.
Schools
Schools nearby 702 S Solandra Drive
| Schools in attendance boundaries | Grades | Distance | Rating |
|---|---|---|---|
| Loading... | |||
| Schools nearby | Grades | Distance | Rating |
|---|---|---|---|
| Loading... | |||
Data powered by ATTOM Data Solutions. Copyright© 2026. Information deemed reliable but not guaranteed.
The schools shown represent both the assigned schools and schools by distance based on local school and district attendance boundaries. Attendance boundaries change based on various factors and proximity does not guarantee enrollment eligibility. Please consult your real estate agent and/or the school district to confirm the schools this property is zoned to attend. Information is deemed reliable but not guaranteed.
SchoolDigger ® Rating
The SchoolDigger rating system is a 1-5 scale with 5 as the highest rating. SchoolDigger ranks schools based on test scores supplied by each state's Department of Education. They calculate an average standard score by normalizing and averaging each school's test scores across all tests and grades.
Coming soon properties will soon be on the market, but are not yet available for showings.