705 E Pine Street Orlando, FL 32801
For Sale MLS# O6336068
3 beds 3 baths 2,103 sq ft Single Family
Details for 705 E Pine Street
MLS# O6336068
Description for 705 E Pine Street, Orlando, FL, 32801
Classic Craftsman charm meets modern comfort in this beautifully updated 3-bedroom, 3-bath home in the heart of Thornton Park, just steps from all downtown Orlando has to offer. A welcoming front porch with a bold red door and views of majestic oak trees set the tone for the warm, inviting interiors. Inside, light-filled living spaces feature rich hardwood floors, crown molding, built-in storage, and a striking updated fireplace. The stylish kitchen blends timeless character with modern convenience, offering a farmhouse sink, granite counters, stainless steel appliances, and a brand-new tankless water heater. The spacious primary suite includes a spa shower, huge walk-in closet, and gorgeous downtown views. Additional highlights include cedar shelving, Kohler fixtures, abundant built-in storage, and a premium home warranty covering electrical, plumbing, and all major appliances. Recent upgrades include attic insulation, a 5-year termite bond, and a 12-foot security gate. French doors open to an inviting outdoor living space with a deck, pavers, yard, and a two-car garage complete with 220 fast-charging for electric vehicles. All this in a walkable, tree-lined neighborhood close to parks, restaurants, Lake Eola, and the vibrant Thornton Park lifestyle.
Listing Information
Property Type: Residential, Single Family Residence
Status: Active
Bedrooms: 3
Bathrooms: 3
Lot Size: 0.11 Acres
Square Feet: 2,103 sq ft
Year Built: 1925
Garage: Yes
Stories: 2 Story
Construction: Brick,Wood Frame
Subdivision: Wilmott J W Rev
Foundation: Brick/Mortar,Crawlspace
County: Orange
School Information
Elementary: Lake Como Elem
Middle: Lake Como School K-8
High: Edgewater High
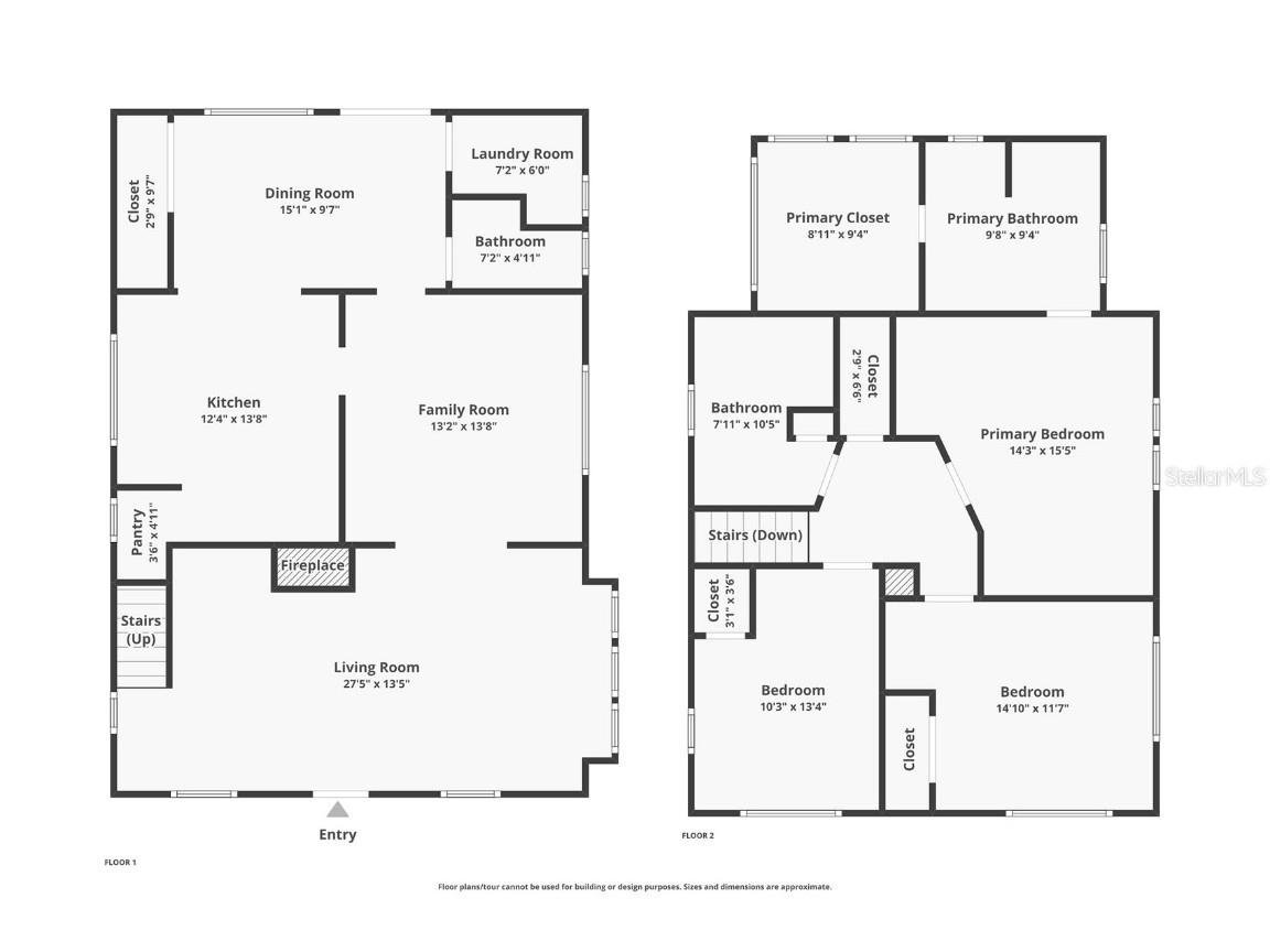
Room Information
Main Floor
Living Room:
Dining Room:
Kitchen:
Upper Floor
Bedroom 3: 9x10
Bedroom 2: 12x11
Primary Bedroom: 13x14
Bathrooms
Full Baths: 2
1/2 Baths: 1
Additonal Room Information
Laundry: Inside
Interior Features
Appliances: Built-In Oven, Ice Maker, Tankless Water Heater, Gas Water Heater, Range Hood, Washer, Freezer, Microwave, Range, Refrigerator, Cooktop, Dishwasher, Disposal, Dryer, Convection Oven, Exhaust Fan
Flooring: Tile,Wood
Basement: Crawl Space
Doors/Windows: Window Treatments
Fireplaces: Wood Burning
Additional Interior Features: Ceiling Fan(s), Window Treatments, Built-in Features, High Ceilings, Upper Level Primary, Stone Counters, Wood Cabinets, Crown Molding
Utilities
Water: Public
Sewer: Public Sewer
Other Utilities: Cable Connected,Electricity Connected,Natural Gas Connected,High Speed Internet Available,Municipal Utilities,Sewer Connected,Water Connected
Cooling: Zoned, Ceiling Fan(s), Central Air
Heating: Electric, Central
Exterior / Lot Features
Garage Spaces: 2
Roof: Shingle
Additional Exterior/Lot Features: Sprinkler/Irrigation, Lighting
Community Features
Community Features: Sidewalks, Street Lights
Driving Directions
From Central and Summerlin, head south on Summerlin to left on Pine Street. Home is on the left.
Financial Considerations
Terms: Cash,Conventional,VA Loan
Tax/Property ID: 25-22-29-9312-03-120
Tax Amount: 8785.5
Tax Year: 2024
A broker reciprocity listing courtesy: ANNE ROGERS REALTY GROUP INC
Based on information provided by Stellar MLS as distributed by the MLS GRID. Information from the Internet Data Exchange is provided exclusively for consumers’ personal, non-commercial use, and such information may not be used for any purpose other than to identify prospective properties consumers may be interested in purchasing. This data is deemed reliable but is not guaranteed to be accurate by Edina Realty, Inc., or by the MLS. Edina Realty, Inc., is not a multiple listing service (MLS), nor does it offer MLS access.
Copyright 2025 Stellar MLS as distributed by the MLS GRID. All Rights Reserved.
Payment Calculator
Interest rate and annual percentage rate (APR) are based on current market conditions, are for informational purposes only, are subject to change without notice and may be subject to pricing add-ons related to property type, loan amount, loan-to-value, credit score and other variables. Estimated closing costs used in the APR calculation are assumed to be paid by the borrower at closing. If the closing costs are financed, the loan, APR and payment amounts will be higher. If the down payment is less than 20%, mortgage insurance may be required and could increase the monthly payment and APR. Contact us for details. Additional loan programs may be available. Accuracy is not guaranteed, and all products may not be available in all borrower's geographical areas and are based on their individual situation. This is not a credit decision or a commitment to lend.
Sales History & Tax Summary for 705 E Pine Street
Sales History
| Date | Price | Change |
|---|---|---|
| Currently not available. | ||
Tax Summary
| Tax Year | Estimated Market Value | Total Tax |
|---|---|---|
| Currently not available. | ||
Data powered by ATTOM Data Solutions. Copyright© 2025. Information deemed reliable but not guaranteed.
Schools
Schools nearby 705 E Pine Street
| Schools in attendance boundaries | Grades | Distance | Rating |
|---|---|---|---|
| Loading... | |||
| Schools nearby | Grades | Distance | Rating |
|---|---|---|---|
| Loading... | |||
Data powered by ATTOM Data Solutions. Copyright© 2025. Information deemed reliable but not guaranteed.
The schools shown represent both the assigned schools and schools by distance based on local school and district attendance boundaries. Attendance boundaries change based on various factors and proximity does not guarantee enrollment eligibility. Please consult your real estate agent and/or the school district to confirm the schools this property is zoned to attend. Information is deemed reliable but not guaranteed.
SchoolDigger ® Rating
The SchoolDigger rating system is a 1-5 scale with 5 as the highest rating. SchoolDigger ranks schools based on test scores supplied by each state's Department of Education. They calculate an average standard score by normalizing and averaging each school's test scores across all tests and grades.
Coming soon properties will soon be on the market, but are not yet available for showings.