$589,000
Off-Market Date: 02/22/2026706 Fringe Tree Court Deland, FL 32724
Pending MLS# O6378940
4 beds 4 baths 3,953 sq ft Single Family
Details for 706 Fringe Tree Court
MLS# O6378940
Description for 706 Fringe Tree Court, Deland, FL, 32724
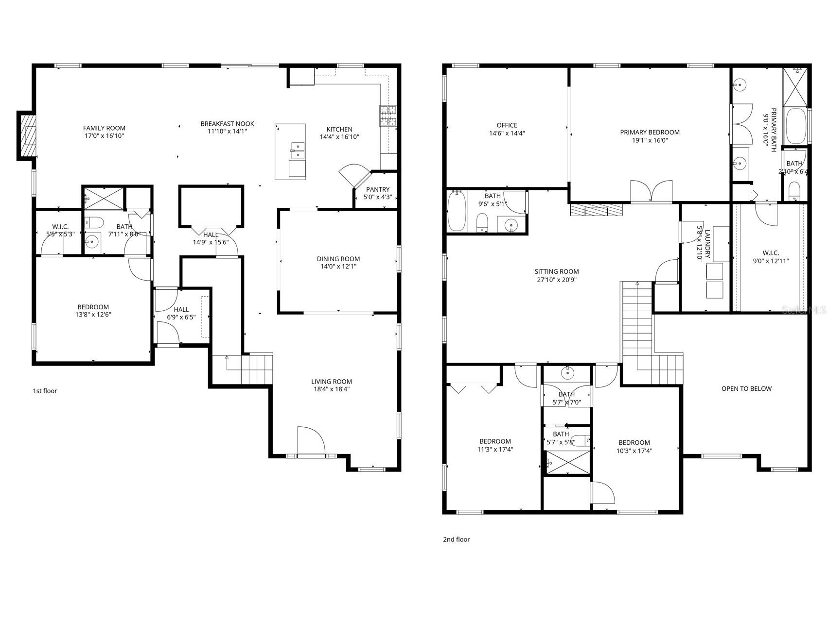
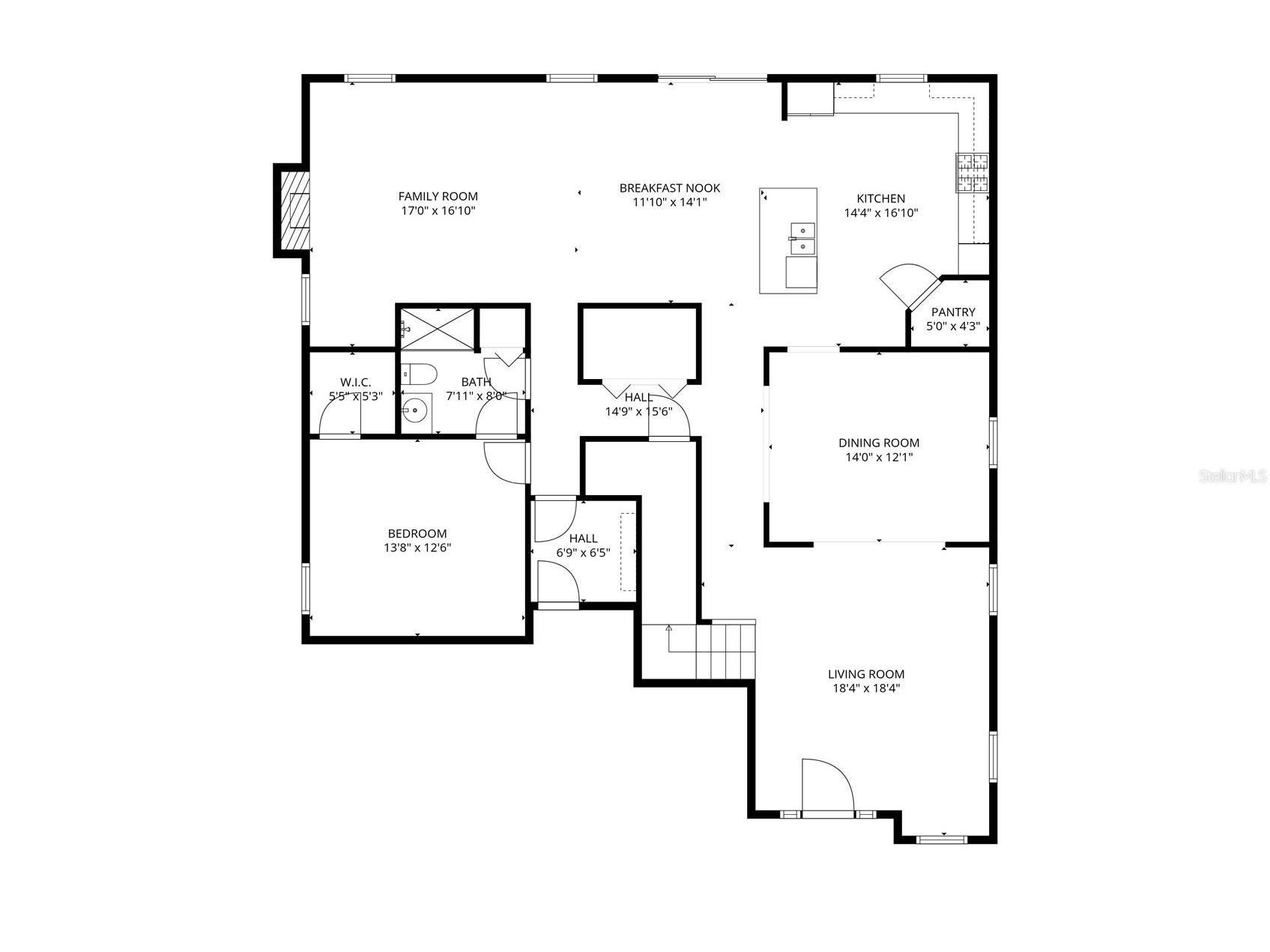
Under contract-accepting backup offers. Located on a quiet cul-de-sac and situated on a quarter-acre lot, this two-story home offers an open, functional layout with high ceilings that create a bright and spacious feel upon entry. The main level features multiple living areas and a kitchen with eat-in dining that connects easily to the rest of the home, making it ideal for everyday living and entertaining. A separate formal dining room provides additional space for gatherings and holidays. A first-floor bedroom with its own en-suite bathroom makes this home a strong option for multi-generational living, guests, or a private home office. Upstairs includes a bonus / theater room, perfect for a media space or secondary family room. The primary bedroom is generously sized and includes a bonus flex area that can be used as a home office, nursery, or home gym. Out back, the home offers a private retreat featuring an 8-foot-deep screened-in pool, along with multiple areas for entertaining, including a fire pit. Conveniently located 10 minutes from Historic Downtown DeLand, 5 minutes from I-4, and approximately 35 minutes to Downtown Orlando.
Listing Information
Property Type: Residential, Single Family Residence
Status: Pending
Bedrooms: 4
Bathrooms: 4
Lot Size: 0.25 Acres
Square Feet: 3,953 sq ft
Year Built: 2014
Garage: Yes
Stories: 2 Story
Construction: Block,Stucco
Subdivision: Wellington Woods
Foundation: Slab
County: Volusia
Room Information
Main Floor
Living Room:
Kitchen:
Upper Floor
Primary Bedroom:
Bathrooms
Full Baths: 4
Additonal Room Information
Laundry: Inside, Laundry Room
Interior Features
Appliances: Range Hood, Range, Refrigerator, Cooktop, Dishwasher, Microwave
Flooring: Carpet,Laminate,Tile
Fireplaces: Other, Family Room, Living Room
Additional Interior Features: Ceiling Fan(s), Eat-In Kitchen, Walk-In Closet(s), High Ceilings, Living/Dining Room, Separate/Formal Dining Room, Crown Molding, Kitchen/Family Room Combo
Utilities
Water: Public
Sewer: Public Sewer
Other Utilities: Municipal Utilities
Cooling: Central Air, Ceiling Fan(s)
Heating: Central
Exterior / Lot Features
Attached Garage: Attached Garage
Garage Spaces: 2
Roof: Shingle
Pool: In Ground, Screen Enclosure
Lot Dimensions: 92x117
Additional Exterior/Lot Features: Outdoor Grill, Screened, Rear Porch
Community Features
Community Features: Sidewalks
Homeowners Association: Yes
HOA Dues: $65 / Monthly
Driving Directions
From FL-429 N, use the right 2 lanes to take exit 30 for FL-414 E. Use any lane to take the FL-414 ramp. Slight left onto the I-4 E ramp to Daytona Beach. Take exit 116 toward Deland/Lake Helen/Historic Dist. Turn right onto Orange Camp Rd (signs for DeLane/Cassadaga). At the traffic circle, take the 2nd exit and stay on Orange Camp Rd. Exit the traffic circle onto Orange Camp Rd. Turn left onto Wellington Woods Ave. At the traffice circle, take the 1st exit onto Holly Oak Blvd. Turn right onto Meadow Sage Dr. Turnr ight onto Fringe Tree Ct/Tree Farm Ln.
Financial Considerations
Terms: Cash,Conventional,FHA,USDA Loan,VA Loan
Tax/Property ID: 7033-10-00-1070
Tax Amount: 5522.35
Tax Year: 2025
A broker reciprocity listing courtesy: REAL BROKER, LLC
Based on information provided by Stellar MLS as distributed by the MLS GRID. Information from the Internet Data Exchange is provided exclusively for consumers’ personal, non-commercial use, and such information may not be used for any purpose other than to identify prospective properties consumers may be interested in purchasing. This data is deemed reliable but is not guaranteed to be accurate by Edina Realty, Inc., or by the MLS. Edina Realty, Inc., is not a multiple listing service (MLS), nor does it offer MLS access.
Copyright 2026 Stellar MLS as distributed by the MLS GRID. All Rights Reserved.
Sales History & Tax Summary for 706 Fringe Tree Court
Sales History
| Date | Price | |
|---|---|---|
| Currently not available. | ||
Tax Summary
| Tax Year | Estimated Market Value | Total Tax |
|---|---|---|
| Currently not available. | ||
Data powered by ATTOM Data Solutions. Copyright© 2026. Information deemed reliable but not guaranteed.
Schools
Schools nearby 706 Fringe Tree Court
| Schools in attendance boundaries | Grades | Distance | Rating |
|---|---|---|---|
| Loading... | |||
| Schools nearby | Grades | Distance | Rating |
|---|---|---|---|
| Loading... | |||
Data powered by ATTOM Data Solutions. Copyright© 2026. Information deemed reliable but not guaranteed.
The schools shown represent both the assigned schools and schools by distance based on local school and district attendance boundaries. Attendance boundaries change based on various factors and proximity does not guarantee enrollment eligibility. Please consult your real estate agent and/or the school district to confirm the schools this property is zoned to attend. Information is deemed reliable but not guaranteed.
SchoolDigger ® Rating
The SchoolDigger rating system is a 1-5 scale with 5 as the highest rating. SchoolDigger ranks schools based on test scores supplied by each state's Department of Education. They calculate an average standard score by normalizing and averaging each school's test scores across all tests and grades.
Coming soon properties will soon be on the market, but are not yet available for showings.