$295,000
7082 Ripple Pond Loop Zephyrhills, FL 33541
For Sale MLS# TB8434217
3 beds 3 baths 1,787 sq ft Townhouse/Twinhome
Details for 7082 Ripple Pond Loop
MLS# TB8434217
Description for 7082 Ripple Pond Loop, Zephyrhills, FL, 33541
Welcome to Abbott Square in Zephyrhills, where this 3-bedroom, 2-bath townhome sits in the only gated section of the community. To start, the sellers are offering a $5,000 credit to the buyer with a full asking price offer! Positioned on a rare corner lot, this end unit stands out with direct access to the community trail right beyond the backyard, giving you an easy path for walks, runs, or simply enjoying the outdoors. Inside, the home features accent walls and a custom-built electric fireplace that adds a focal point to the living area. The kitchen is finished with granite countertops and white shaker cabinets, a look that carries into the bathrooms with matching granite counters. All appliances are included with the sale, making this home truly move-in ready. Every detail reflects how well this property has been cared for and maintained. A one-car garage adds everyday function, while right in front of the home you’ll find a large open park space that expands the feel of the property and gives guests plenty of room to enjoy. Additional street parking makes it simple to host without worry. Beyond the front door, Abbott Square offers a full range of community amenities including a resort-style pool, clubhouse, fitness center, playgrounds, and parks that tie the neighborhood together. The HOA also covers all exterior maintenance, including the roof, lawn care, and landscaping, and provides 1.56Gb internet along with basic cable TV—making life here as easy as it is enjoyable. On the gated side of Abbott Square, opportunities like this corner-lot end unit don’t come around often. The setting, the finishes, and the access all line up to make this townhome one of the most compelling homes in the community.
Listing Information
Property Type: Residential, Townhouse
Status: Active
Bedrooms: 3
Bathrooms: 3
Lot Size: 0.10 Acres
Square Feet: 1,787 sq ft
Year Built: 2023
Garage: Yes
Stories: 2 Story
Construction: Block,Stucco,Wood Frame
Subdivision: Abbott Square Ph 1a
Foundation: Block,Slab
County: Pasco
School Information
Elementary: West Zephyrhills Elemen-Po
Middle: Raymond B Stewart Middle-Po
High: Zephryhills High School-Po
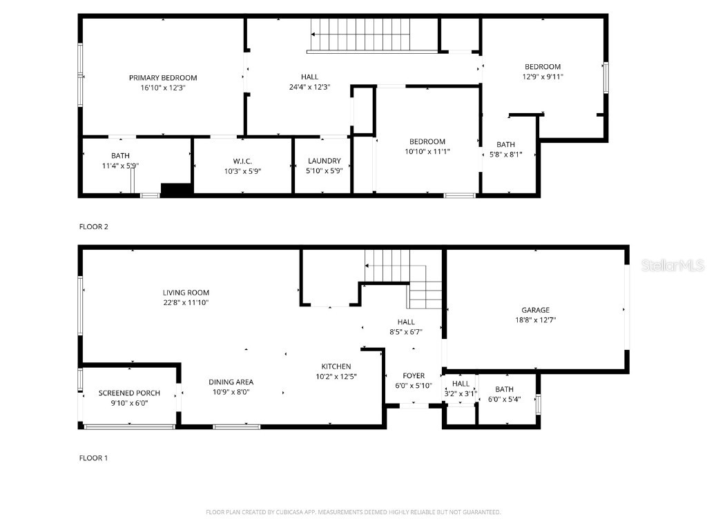
Room Information
Main Floor
Dining Room: 8x11
Kitchen: 12x10
Living Room: 12x22
Upper Floor
Bedroom 2: 11x11
Bedroom 1: 10x13
Primary Bedroom: 12x17
Bathrooms
Full Baths: 2
1/2 Baths: 1
Additonal Room Information
Laundry: Upper Level, Laundry Room
Interior Features
Appliances: Washer, Range, Refrigerator, Disposal, Dryer, Microwave
Flooring: Carpet,Tile
Doors/Windows: Window Treatments
Fireplaces: Living Room, Electric
Additional Interior Features: Built-in Features, Walk-In Closet(s), Window Treatments, Vaulted Ceiling(s), Stone Counters, Upper Level Primary
Utilities
Water: Private
Sewer: Private Sewer
Other Utilities: Other
Cooling: Central Air
Heating: Central
Exterior / Lot Features
Attached Garage: Attached Garage
Garage Spaces: 1
Roof: Shingle
Pool: Association, Community
Additional Exterior/Lot Features: Other, Lighting
Community Features
Community Features: Sidewalks, Pool, Playground, Gated, Park
Security Features: Gated Community
Association Amenities: Clubhouse, Fitness Center, Playground, Trail(s), Pool, Maintenance Grounds, Gated
HOA Dues Include: Maintenance Grounds, Maintenance Structure, Pool(s), Pest Control, Road Maintenance, Internet, Cable TV, Recreation Facilities, Security
Homeowners Association: Yes
HOA Dues: $288 / Monthly
Driving Directions
Use Google Maps for best navigation. From I-75 North, take Exit 279 toward Wesley Chapel and head east on FL-54/County Road 54. Turn left onto Coats Road/Dean Dairy Road, then turn right onto Weiland Boulevard. Continue to Bar S Trail and turn left, then turn right onto Ripple Pond Loop. Enter the gate using the access code, and the property is located on the corner at the end of the street on the left-hand side.
Financial Considerations
Terms: Assumable,Cash,Conventional,FHA,VA Loan
Tax/Property ID: 21-26-04-014.0-001.00-076.0
Tax Amount: 6396
Tax Year: 2024
A broker reciprocity listing courtesy: LIFESTYLE INTERNATIONAL REALTY
Based on information provided by Stellar MLS as distributed by the MLS GRID. Information from the Internet Data Exchange is provided exclusively for consumers’ personal, non-commercial use, and such information may not be used for any purpose other than to identify prospective properties consumers may be interested in purchasing. This data is deemed reliable but is not guaranteed to be accurate by Edina Realty, Inc., or by the MLS. Edina Realty, Inc., is not a multiple listing service (MLS), nor does it offer MLS access.
Copyright 2026 Stellar MLS as distributed by the MLS GRID. All Rights Reserved.
Payment Calculator
Interest rate and annual percentage rate (APR) are based on current market conditions, are for informational purposes only, are subject to change without notice and may be subject to pricing add-ons related to property type, loan amount, loan-to-value, credit score and other variables. Estimated closing costs used in the APR calculation are assumed to be paid by the borrower at closing. If the closing costs are financed, the loan, APR and payment amounts will be higher. If the down payment is less than 20%, mortgage insurance may be required and could increase the monthly payment and APR. Contact us for details. Additional loan programs may be available. Accuracy is not guaranteed, and all products may not be available in all borrower's geographical areas and are based on their individual situation. This is not a credit decision or a commitment to lend.
Sales History & Tax Summary for 7082 Ripple Pond Loop
Sales History
| Date | Price | |
|---|---|---|
| Currently not available. | ||
Tax Summary
| Tax Year | Estimated Market Value | Total Tax |
|---|---|---|
| Currently not available. | ||
Data powered by ATTOM Data Solutions. Copyright© 2026. Information deemed reliable but not guaranteed.
Schools
Schools nearby 7082 Ripple Pond Loop
| Schools in attendance boundaries | Grades | Distance | Rating |
|---|---|---|---|
| Loading... | |||
| Schools nearby | Grades | Distance | Rating |
|---|---|---|---|
| Loading... | |||
Data powered by ATTOM Data Solutions. Copyright© 2026. Information deemed reliable but not guaranteed.
The schools shown represent both the assigned schools and schools by distance based on local school and district attendance boundaries. Attendance boundaries change based on various factors and proximity does not guarantee enrollment eligibility. Please consult your real estate agent and/or the school district to confirm the schools this property is zoned to attend. Information is deemed reliable but not guaranteed.
SchoolDigger ® Rating
The SchoolDigger rating system is a 1-5 scale with 5 as the highest rating. SchoolDigger ranks schools based on test scores supplied by each state's Department of Education. They calculate an average standard score by normalizing and averaging each school's test scores across all tests and grades.
Coming soon properties will soon be on the market, but are not yet available for showings.