7112 Paradiso Drive Apollo Beach, FL 33572
For Sale MLS# TB8489721
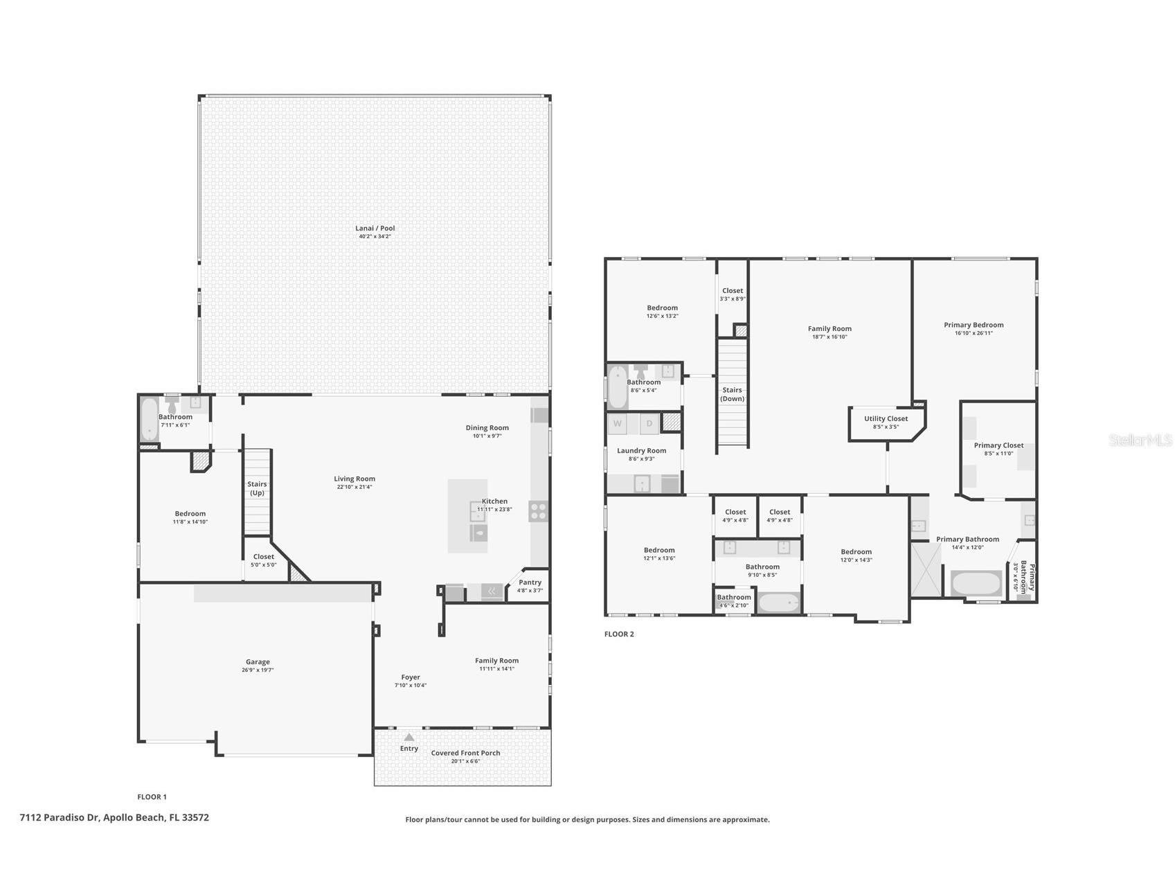
5 beds 4 baths 3,619 sq ft Single Family
Details for 7112 Paradiso Drive
MLS# TB8489721
Description for 7112 Paradiso Drive, Apollo Beach, FL, 33572
Don't miss your opportunity to own this stunning waterfront home in the coveted Waterset community! Celebrated as one of Waterset's most beautiful homes, this classic Verona by WestBay boasts 5 bedrooms, 4 bathrooms, and expansive living areas designed for luxury living and effortless entertaining. Strategically situated near the community's most popular and active amenity, the county's newest outdoor sports and rec center, and in the heart of all Waterset's goings on, your new home is just a short walk away from the splash pad, dog park and community event park. Elegant Living Spaces The main level boasts soaring 12-foot ceilings, while upstairs features 10-foot ceilings, giving the entire home an open and welcoming feel. The recently renovated kitchen is equipped with premium granite countertops, high-end appliances, and pot-filler, making it both stylish and ideal for cooking and entertaining. Thanks to four-panel sliding patio doors, the open floor plan blends indoor living areas seamlessly with a custom-landscaped backyard oasis. The first of five bedrooms is located on the main level—perfect for guests, in-laws, or use as a home office. Upstairs, the “west wing” offers a large bedroom and an adjoining bathroom. Two more accommodating bedrooms share a convenient jack - and - jill bathroom. The upstairs owner’s suite stands out with its newly updated walk-in luxury closet and a spacious bathroom featuring dual vanities, a stand-alone shower, and a soaking tub. Exceptional Outdoor Features The outdoor living area includes a heated pool, spa, and an expansive lanai—perfect for relaxation or gathering with friends and family. Nature lovers will appreciate the tranquil butterfly garden, while a separate patio offers an effortless setting for entertaining guests. Practical conveniences enhance the home's appeal, such as a shed set on a cement pad for storing yard equipment, which helps free up valuable garage space. Additionally, a dedicated garage-to-yard access door adds to the overall functionality of the property. Meticulous Maintenance and Owner’s Retreat Built in 2015, this home was a showcase model for WestBay’s Verona and has been meticulously and lovingly maintained inside and out by the original owners. Combining sophistication, warmth, and natural beauty, this home represents a rare retreat—schedule a showing and make it your private paradise.
Listing Information
Property Type: Residential, Single Family Residence
Status: Active
Bedrooms: 5
Bathrooms: 4
Lot Size: 0.19 Acres
Square Feet: 3,619 sq ft
Year Built: 2015
Garage: Yes
Stories: 2 Story
Construction: Other,Stucco
Construction Display: New Construction
Subdivision: Waterset Ph 3a-1 & Waterset
Builder: Westbay Homes
Foundation: Slab
County: Hillsborough
Construction Status: New Construction
Room Information
Main Floor
Living Room: 21x22
Bedroom 1: 15x12
Bathroom 1: 6x8
Family Room: 14x12
Kitchen: 24x12
Upper Floor
Bedroom 2: 13x16
Bedroom 4:
Primary Bathroom: 12x14
Primary Bedroom: 27x17
Bathroom 3: 9x10
Bedroom 3: 14x12
Bathroom 2: 12x9
Bathrooms
Full Baths: 4
Additonal Room Information
Laundry: Washer Hookup, Laundry Room, Upper Level, Electric Dryer Hookup, Gas Dryer Hookup
Interior Features
Appliances: Microwave, Cooktop, Dishwasher, Disposal, Washer, Built-In Oven, Gas Water Heater, Water Softener, Range Hood
Flooring: Ceramic Tile,Engineered Hardwood,Laminate
Doors/Windows: Blinds, Double Pane Windows, Insulated Windows, Aluminum Frames, ENERGY STAR Qualified Windows, Shutters
Additional Interior Features: Eat-In Kitchen, Ceiling Fan(s), High Ceilings, Separate/Formal Dining Room, Walk-In Closet(s), Split Bedrooms, Upper Level Primary, Kitchen/Family Room Combo, Open Floorplan, Stone Counters
Utilities
Water: Public
Sewer: Public Sewer
Other Utilities: Cable Available,Electricity Available,Electricity Connected,Fiber Optic Available,Natural Gas Available,Natural Gas Connected,High Speed Internet Available,Municipal Utilities,Sewer Available,Sewer Connected,Underground Utilities,Water Available,Water Connected
Cooling: Humidity Control, Ceiling Fan(s), Central Air
Heating: Gas, Electric, Natural Gas, Central, Exhaust Fan
Exterior / Lot Features
Attached Garage: Attached Garage
Garage Spaces: 3
Parking Description: Garage, Garage Door Opener, driveway, Off Street
Roof: Metal
Pool: Heated, In Ground, Salt Water, Community, Gunite
Lot View: Pond,Water
Lot Dimensions: 8247
Fencing: Other
Additional Exterior/Lot Features: Storm/Security Shutters, Sprinkler/Irrigation, In-Wall Pest Control System, Garden, Storage, Covered, Screened, Front Porch, Irregular Lot, Landscaped, Near Public Transit, Oversized Lot
Waterfront Details
Water Front Features: Pond
Community Features
Community Features: Street Lights, Pool, Sidewalks, Playground
Security Features: Closed Circuit Camera(s), Security Lights, Secured Garage/Parking, Security System Owned, Security System, Fire Alarm, Smoke Detector(s), Fire Hydrant(s)
Association Amenities: Park, Trail(s), Basketball Court, Recreation Facilities, Clubhouse, Fitness Center, Tennis Court(s)
HOA Dues Include: Pool(s), Trash, Recreation Facilities, Maintenance Grounds
Homeowners Association: Yes
HOA Dues: $151 / Annually
Driving Directions
Take exit 246 west, at Big Bend. Turn left onto Waterset Blvd, and left onto Paradiso.
Financial Considerations
Terms: Cash,Conventional,FHA,Lease Option,Lease Purchase,VA Loan
Tax/Property ID: U-23-31-19-9ZP-000064-00013.0
Tax Amount: 3984.1
Tax Year: 2025
A broker reciprocity listing courtesy: DALTON WADE INC
Based on information provided by Stellar MLS as distributed by the MLS GRID. Information from the Internet Data Exchange is provided exclusively for consumers’ personal, non-commercial use, and such information may not be used for any purpose other than to identify prospective properties consumers may be interested in purchasing. This data is deemed reliable but is not guaranteed to be accurate by Edina Realty, Inc., or by the MLS. Edina Realty, Inc., is not a multiple listing service (MLS), nor does it offer MLS access.
Copyright 2026 Stellar MLS as distributed by the MLS GRID. All Rights Reserved.
Payment Calculator
Interest rate and annual percentage rate (APR) are based on current market conditions, are for informational purposes only, are subject to change without notice and may be subject to pricing add-ons related to property type, loan amount, loan-to-value, credit score and other variables. Estimated closing costs used in the APR calculation are assumed to be paid by the borrower at closing. If the closing costs are financed, the loan, APR and payment amounts will be higher. If the down payment is less than 20%, mortgage insurance may be required and could increase the monthly payment and APR. Contact us for details. Additional loan programs may be available. Accuracy is not guaranteed, and all products may not be available in all borrower's geographical areas and are based on their individual situation. This is not a credit decision or a commitment to lend.
Sales History & Tax Summary for 7112 Paradiso Drive
Sales History
| Date | Price | |
|---|---|---|
| Currently not available. | ||
Tax Summary
| Tax Year | Estimated Market Value | Total Tax |
|---|---|---|
| Currently not available. | ||
Data powered by ATTOM Data Solutions. Copyright© 2026. Information deemed reliable but not guaranteed.
Schools
Schools nearby 7112 Paradiso Drive
| Schools in attendance boundaries | Grades | Distance | Rating |
|---|---|---|---|
| Loading... | |||
| Schools nearby | Grades | Distance | Rating |
|---|---|---|---|
| Loading... | |||
Data powered by ATTOM Data Solutions. Copyright© 2026. Information deemed reliable but not guaranteed.
The schools shown represent both the assigned schools and schools by distance based on local school and district attendance boundaries. Attendance boundaries change based on various factors and proximity does not guarantee enrollment eligibility. Please consult your real estate agent and/or the school district to confirm the schools this property is zoned to attend. Information is deemed reliable but not guaranteed.
SchoolDigger ® Rating
The SchoolDigger rating system is a 1-5 scale with 5 as the highest rating. SchoolDigger ranks schools based on test scores supplied by each state's Department of Education. They calculate an average standard score by normalizing and averaging each school's test scores across all tests and grades.
Coming soon properties will soon be on the market, but are not yet available for showings.