7134 Heather Sound Loop Wesley Chapel, FL 33545
Pending MLS# T3546589
4 beds 3 baths 2,769 sq ft Single Family
Details for 7134 Heather Sound Loop
MLS# T3546589
Description for 7134 Heather Sound Loop, Wesley Chapel, FL, 33545
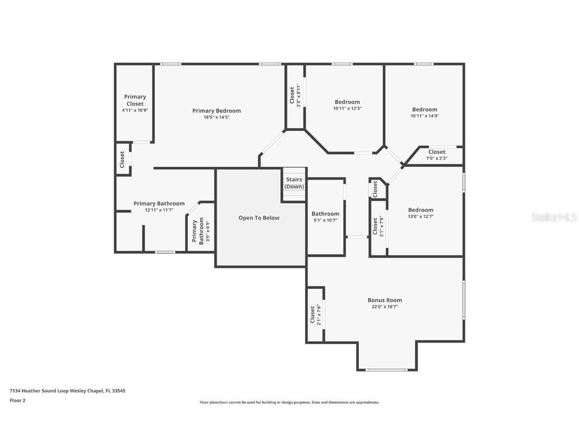
Under contract-accepting backup offers. $37,500 Price Reduction! This house comes with a Buyer Promotion: Choose from REDUCED RATE. This is a seller paid rate-buydown that reduces the buyer’s interest rate and monthly payment. Or $10,000 toward closing costs.Terms apply, see disclosures for more information. Welcome to The Gardens at the Watergrass Community (gated)! The Key West floor plan by Bering Homes, offers so much! This BRAND NEW HOME features 10' ceilings, four bedrooms plus a bonus room with closet, two and a half bathrooms, a living room + separate family room, and a three-car garage with large lanai. All bedrooms are on the second floor, which is great for hosting gatherings. The guests stay downstairs while the private bedrooms are on a second level. The kitchen has granite countertops, white shaker style cabinets and stainless steel appliances, the flooring is Savanah Pearl Ceramic Tile with carpet in the bedrooms. The primary bedroom is huge and located on the second floor. Measuring 18' x 14' and with an additonal large walk-in closet, an en-suite bathroom with separate bathtub and walk-in shower, double sinks and a water closet. The home has a tile roof and paved driveway. This beautiful home is tucked away in the Estate Garden Subdivision within the Watergrass Community. The closest Elementary Schools are Watergrass Elementary (just a few blocks away), Innovation Preparatory Academy, Kirkland K-8 (tuition-free charter schools), Wesley Chapel Elementary School. The closest middle school is Thomas Weighman Middle School, & the nearest high schools are Kirkland Academy of Innovation High School & Wesley Chapel High School. The Watergrass Community is full of amenities. Residents can access multiple pools, including a lap pool, a splash pad, a large, covered lanai area, a clubhouse with office/meeting areas, tennis courts, basketball courts, playgrounds, & a fitness center. The Watergrass Community has a low HOA of just $150/year! This Community is just across the main road from the Epperson Crystal Lagoon, close to Publix at Innovation Springs, shopping and restaurants including KRATE (the outdoor mall), 35 minutes north of Downtown Tampa, 45 minutes from Tampa International Airport, & an hour & a half from Orlando & Walt Disney World. Schedule a private tour today!
Listing Information
Property Type: Residential, Single Family Residence
Status: Pending
Bedrooms: 4
Bathrooms: 3
Lot Size: 0.20 Acres
Square Feet: 2,769 sq ft
Year Built: 2024
Garage: Yes
Stories: 2 Story
Construction: Block,Stucco
Construction Display: New Construction
Subdivision: Watergrass Pcls B-5 & B-6
Builder: BERING HOMES, LLC
Foundation: Slab
County: Pasco
Construction Status: New Construction
School Information
Elementary: Watergrass Elementary-Po
Middle: Thomas E Weightman Middle-Po
High: Wesley Chapel High-Po
Room Information
Main Floor
Kitchen:
Living Room: 11x13
Family Room: 14x16
Upper Floor
Bonus Room: 15x19
Primary Bedroom: 14x18
Bathrooms
Full Baths: 2
1/2 Baths: 1
Additonal Room Information
Laundry: Laundry Room
Interior Features
Appliances: Range, Dishwasher, Disposal, Microwave
Flooring: Tile
Additional Interior Features: Walk-In Closet(s), Open Floorplan, High Ceilings
Utilities
Water: Public
Sewer: Public Sewer
Other Utilities: Municipal Utilities
Cooling: Central Air
Heating: Central
Exterior / Lot Features
Attached Garage: Attached Garage
Garage Spaces: 3
Roof: Shingle
Pool: Community, Association
Additional Exterior/Lot Features: Lighting, Sprinkler/Irrigation
Community Features
Community Features: Sidewalks, Pool, Playground, Clubhouse, Street Lights, Dog Park, Gated, Park, Fitness, Community Mailbox
Security Features: Gated Community
Association Amenities: Pool, Tennis Court(s), Playground, Fitness Center, Gated, Park, Trail(s), Clubhouse, Basketball Court
HOA Dues Include: None, Pool(s)
Homeowners Association: Yes
HOA Dues: $150 / Annually
Driving Directions
I-75 NORTH, EXIT OVERPASS, TURN RIGHT ON WATERGRASS PARKWAY, RIGHT ON HEATHER SOUND LOOP, HOUSE WILL BE ON THE RIGHT.
Financial Considerations
Terms: Cash,Conventional,FHA,VA Loan
Tax/Property ID: 20-25-36-0050-03000-0060
Tax Amount: 4256
Tax Year: 2023
A broker reciprocity listing courtesy: FRANK ALBERT REALTY
Based on information provided by Stellar MLS as distributed by the MLS GRID. Information from the Internet Data Exchange is provided exclusively for consumers’ personal, non-commercial use, and such information may not be used for any purpose other than to identify prospective properties consumers may be interested in purchasing. This data is deemed reliable but is not guaranteed to be accurate by Edina Realty, Inc., or by the MLS. Edina Realty, Inc., is not a multiple listing service (MLS), nor does it offer MLS access.
Copyright 2025 Stellar MLS as distributed by the MLS GRID. All Rights Reserved.
Sales History & Tax Summary for 7134 Heather Sound Loop
Sales History
| Date | Price | Change |
|---|---|---|
| Currently not available. | ||
Tax Summary
| Tax Year | Estimated Market Value | Total Tax |
|---|---|---|
| Currently not available. | ||
Data powered by ATTOM Data Solutions. Copyright© 2025. Information deemed reliable but not guaranteed.
Schools
Schools nearby 7134 Heather Sound Loop
| Schools in attendance boundaries | Grades | Distance | Rating |
|---|---|---|---|
| Loading... | |||
| Schools nearby | Grades | Distance | Rating |
|---|---|---|---|
| Loading... | |||
Data powered by ATTOM Data Solutions. Copyright© 2025. Information deemed reliable but not guaranteed.
The schools shown represent both the assigned schools and schools by distance based on local school and district attendance boundaries. Attendance boundaries change based on various factors and proximity does not guarantee enrollment eligibility. Please consult your real estate agent and/or the school district to confirm the schools this property is zoned to attend. Information is deemed reliable but not guaranteed.
SchoolDigger ® Rating
The SchoolDigger rating system is a 1-5 scale with 5 as the highest rating. SchoolDigger ranks schools based on test scores supplied by each state's Department of Education. They calculate an average standard score by normalizing and averaging each school's test scores across all tests and grades.
Coming soon properties will soon be on the market, but are not yet available for showings.