7177 W Lenox Circle Punta Gorda, FL 33950
For Sale MLS# C7514768
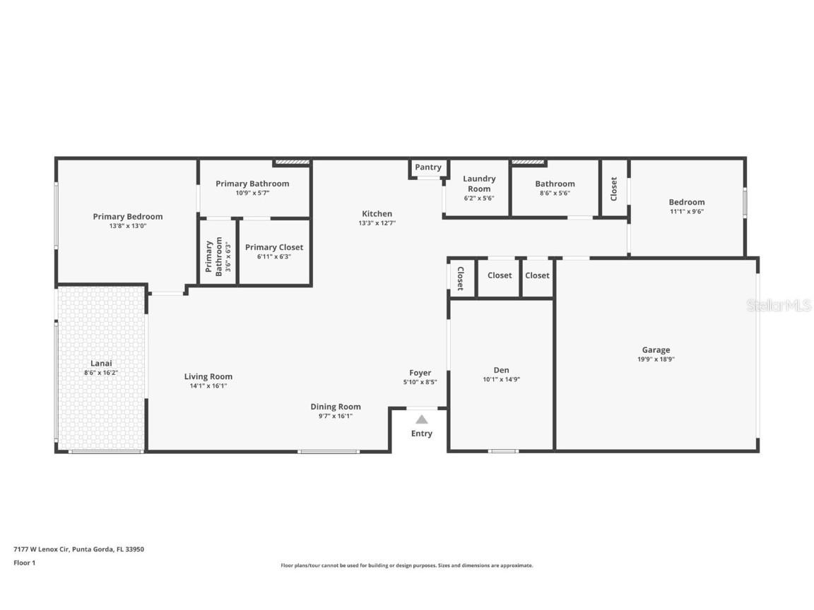
2 beds 2 baths 1,516 sq ft Single Family
Details for 7177 W Lenox Circle
MLS# C7514768
Description for 7177 W Lenox Circle, Punta Gorda, FL, 33950
Welcome to Waterford Estates. Punta Gorda’s premier gated community offering modern comfort for all ages! Waterford amenities include two heated community pools, a clubhouse with fitness room, meeting rooms and billiards, bocce ball, pickleball, walking trails and more! This villa is meticulously maintained and features a thoughtful split-bedroom floor plan with 2 spacious bedrooms plus a den, 2 full bathrooms, and a versatile flex room ideal as a home office or guest space. The open-concept living and dining areas are perfect for entertaining, leading out to a screened lanai for enjoying tranquil mornings or evening breezes. The primary suite boasts a generous walk-in closet and a private en-suite bath, while the modern kitchen is equipped with an updated sink, RO, a pantry and convenient access to the laundry room. Roof New 2024. Additional highlights include an oversized attached garage, abundant storage throughout, and a second bedroom with its own full bath for guests. Nestled in a gated, all-age community with scenic lakes, extensive sidewalks, vibrant clubhouse events, and HOA/CDD in place for low-maintenance, resort-style living, this is the perfect second home to get out of the cold winter months. Sellers seek to lease the home after closing, offering buyers flexibility for future plans or an easy investment with a built-in tenant. Secure this beautiful villa today and benefit from immediate rental income through May 2026! Don’t miss a rare chance to invest now and live in paradise later. Schedule your tour today!
Listing Information
Property Type: Residential, Villa
Status: Active
Bedrooms: 2
Bathrooms: 2
Lot Size: 0.11 Acres
Square Feet: 1,516 sq ft
Year Built: 2021
Garage: Yes
Stories: 1 Story
Construction: Block,Stucco
Construction Display: New Construction
Subdivision: Waterford Estates
Builder: DR Horton
Foundation: Slab
County: Charlotte
Construction Status: New Construction
School Information
Elementary: Sallie Jones Elementary
Middle: Punta Gorda Middle
High: Charlotte High
Room Information
Main Floor
Den: 15x10
Porch: 16x9
Bathroom 2: 8x6
Bedroom 2: 11x9
Primary Bathroom: 11x6
Primary Bedroom: 14x14
Great Room: 15x29
Kitchen: 14x13
Bathrooms
Full Baths: 2
Additonal Room Information
Laundry: Laundry Room
Interior Features
Appliances: Washer, Range, Refrigerator, Dishwasher, Disposal, Dryer, Electric Water Heater
Flooring: Tile
Doors/Windows: Window Treatments
Additional Interior Features: Ceiling Fan(s), Central Vacuum, Walk-In Closet(s), Window Treatments, High Ceilings, Living/Dining Room, Main Level Primary, Open Floorplan
Utilities
Water: Public
Sewer: Public Sewer
Other Utilities: Cable Connected,Electricity Connected,Sewer Connected,Underground Utilities,Water Connected
Cooling: Ceiling Fan(s), Central Air
Heating: Electric
Exterior / Lot Features
Attached Garage: Attached Garage
Garage Spaces: 2
Roof: Shingle
Pool: Community, Association
Lot View: Trees/Woods
Lot Dimensions: 35x140
Additional Exterior/Lot Features: French Patio Doors, Storm/Security Shutters, Rain Gutters, Sprinkler/Irrigation, Covered, Rear Porch, Landscaped, Buyer Approval Required, Outside City Limits
Community Features
Community Features: Clubhouse, Community Mailbox, Pool, Sidewalks, Gated
Security Features: Gated Community
Association Amenities: Clubhouse, Fitness Center, Pool
HOA Dues Include: Maintenance Grounds, Reserve Fund, Association Management, Pool(s)
Homeowners Association: Yes
HOA Dues: $186 / Quarterly
Driving Directions
From Carmalita St. go to entrance to Waterford. Gate Access Code Needed. Once through the gate, turn right onto E Lenox Circle, which turns into W Lenox Circle - villa will be on the right side of the street.
Financial Considerations
Terms: Cash,Conventional,FHA,VA Loan
Tax/Property ID: 412308251013
Tax Amount: 4321.87
Tax Year: 2024
A broker reciprocity listing courtesy: RE/MAX HARBOR REALTY
Based on information provided by Stellar MLS as distributed by the MLS GRID. Information from the Internet Data Exchange is provided exclusively for consumers’ personal, non-commercial use, and such information may not be used for any purpose other than to identify prospective properties consumers may be interested in purchasing. This data is deemed reliable but is not guaranteed to be accurate by Edina Realty, Inc., or by the MLS. Edina Realty, Inc., is not a multiple listing service (MLS), nor does it offer MLS access.
Copyright 2026 Stellar MLS as distributed by the MLS GRID. All Rights Reserved.
Payment Calculator
Interest rate and annual percentage rate (APR) are based on current market conditions, are for informational purposes only, are subject to change without notice and may be subject to pricing add-ons related to property type, loan amount, loan-to-value, credit score and other variables. Estimated closing costs used in the APR calculation are assumed to be paid by the borrower at closing. If the closing costs are financed, the loan, APR and payment amounts will be higher. If the down payment is less than 20%, mortgage insurance may be required and could increase the monthly payment and APR. Contact us for details. Additional loan programs may be available. Accuracy is not guaranteed, and all products may not be available in all borrower's geographical areas and are based on their individual situation. This is not a credit decision or a commitment to lend.
Sales History & Tax Summary for 7177 W Lenox Circle
Sales History
| Date | Price | |
|---|---|---|
| Currently not available. | ||
Tax Summary
| Tax Year | Estimated Market Value | Total Tax |
|---|---|---|
| Currently not available. | ||
Data powered by ATTOM Data Solutions. Copyright© 2026. Information deemed reliable but not guaranteed.
Schools
Schools nearby 7177 W Lenox Circle
| Schools in attendance boundaries | Grades | Distance | Rating |
|---|---|---|---|
| Loading... | |||
| Schools nearby | Grades | Distance | Rating |
|---|---|---|---|
| Loading... | |||
Data powered by ATTOM Data Solutions. Copyright© 2026. Information deemed reliable but not guaranteed.
The schools shown represent both the assigned schools and schools by distance based on local school and district attendance boundaries. Attendance boundaries change based on various factors and proximity does not guarantee enrollment eligibility. Please consult your real estate agent and/or the school district to confirm the schools this property is zoned to attend. Information is deemed reliable but not guaranteed.
SchoolDigger ® Rating
The SchoolDigger rating system is a 1-5 scale with 5 as the highest rating. SchoolDigger ranks schools based on test scores supplied by each state's Department of Education. They calculate an average standard score by normalizing and averaging each school's test scores across all tests and grades.
Coming soon properties will soon be on the market, but are not yet available for showings.