727 54th Avenue N Saint Petersburg, FL 33703
For Sale MLS# TB8436182
2 beds 1 baths 850 sq ft Single Family
Details for 727 54th Avenue N
MLS# TB8436182
Description for 727 54th Avenue N, Saint Petersburg, FL, 33703
Move-in ready solid block 2-bedroom, 1-bath home in the heart of North St. Pete. The home offers an inviting open layout with durable vinyl flooring, a fully renovated bathroom, and a stylish kitchen featuring butcher-block countertops, a custom tile backsplash, and stainless-steel finishes. Outside, enjoy a large fenced-in backyard perfect for gatherings around the firepit, plus alley access, a carport, and two convenient storage sheds. Major system updates provide peace of mind, including electrical (2020), shingle roof (2015), windows and doors (2013), AC (2017), and new plumbing and power lines (2023). A perfect blend of comfort, updates, and???????????????????????????????????????? functionality!
Listing Information
Property Type: Residential, Single Family Residence
Status: Active
Bedrooms: 2
Bathrooms: 1
Lot Size: 0.14 Acres
Square Feet: 850 sq ft
Year Built: 1960
Stories: 1 Story
Construction: Block
Subdivision: North St Petersburg Rep Blk 86
Foundation: Block,Slab
County: Pinellas
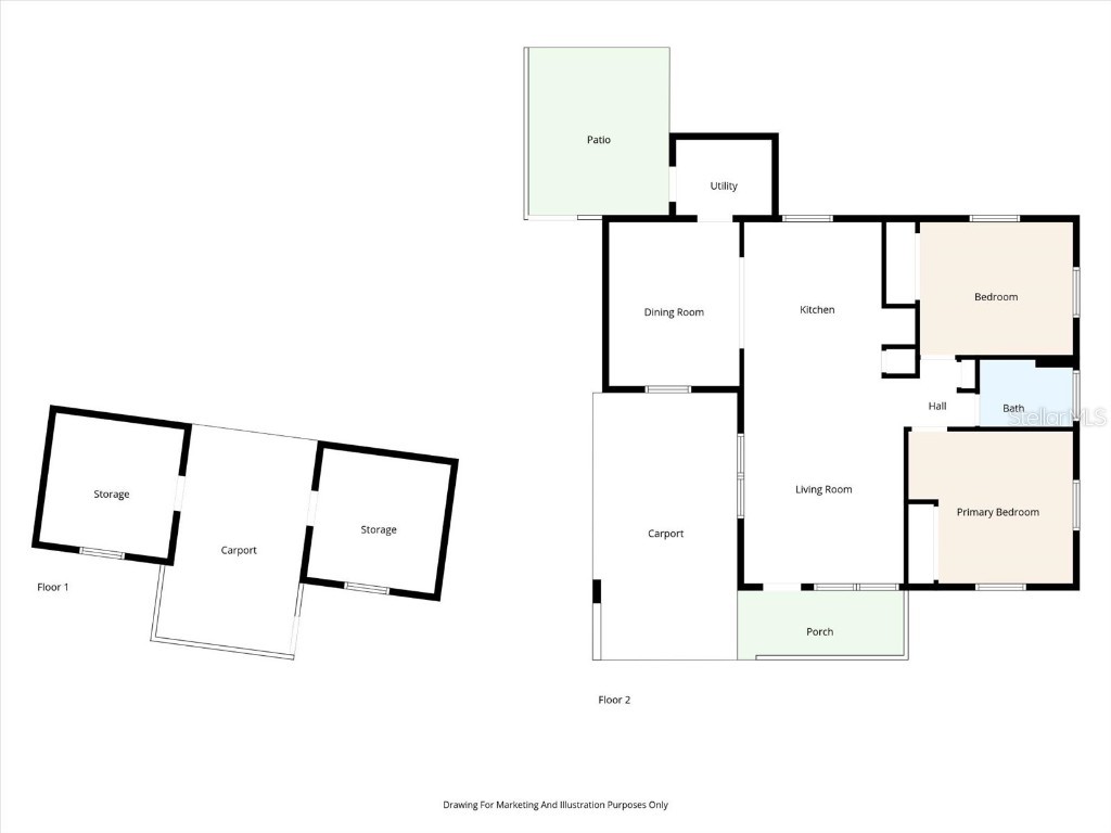
Room Information
Main Floor
Bedroom 2:
Primary Bedroom: 11.5x12.3
Living Room: 11.6x15.9
Kitchen: 8.6x10.2
Bathrooms
Full Baths: 1
Additonal Room Information
Laundry: Inside
Interior Features
Appliances: Electric Water Heater, Washer, Range, Refrigerator, Dishwasher, Disposal, Dryer, Freezer, Microwave
Flooring: Vinyl
Additional Interior Features: Ceiling Fan(s), Other, Kitchen/Family Room Combo, Main Level Primary
Utilities
Sewer: Public Sewer
Other Utilities: Cable Available,Electricity Available,Municipal Utilities,Sewer Available,Water Available,Water Not Available
Cooling: Ceiling Fan(s), Central Air
Heating: Central
Exterior / Lot Features
Parking Description: Alley Access, driveway
Roof: Shingle
Lot Dimensions: 48x130
Fencing: Wood
Additional Exterior/Lot Features: Other, Storage
Community Features
Community Features: Sidewalks
Driving Directions
Starting on 4th Street North, head north until you reach 54th Avenue North. Turn left (west) onto 54th Avenue North, then continue straight for approximately 0.3 miles. The destination, 727 54th Avenue North, will be on your right-hand (north) side of the street, just past 7th Street N.
Financial Considerations
Terms: Cash,Conventional,FHA,VA Loan
Tax/Property ID: 31-30-17-61398-086-0140
Tax Amount: 4266.82
Tax Year: 2024
A broker reciprocity listing courtesy: STOFEL & ASSOCIATES REALTY
Based on information provided by Stellar MLS as distributed by the MLS GRID. Information from the Internet Data Exchange is provided exclusively for consumers’ personal, non-commercial use, and such information may not be used for any purpose other than to identify prospective properties consumers may be interested in purchasing. This data is deemed reliable but is not guaranteed to be accurate by Edina Realty, Inc., or by the MLS. Edina Realty, Inc., is not a multiple listing service (MLS), nor does it offer MLS access.
Copyright 2025 Stellar MLS as distributed by the MLS GRID. All Rights Reserved.
Payment Calculator
Interest rate and annual percentage rate (APR) are based on current market conditions, are for informational purposes only, are subject to change without notice and may be subject to pricing add-ons related to property type, loan amount, loan-to-value, credit score and other variables. Estimated closing costs used in the APR calculation are assumed to be paid by the borrower at closing. If the closing costs are financed, the loan, APR and payment amounts will be higher. If the down payment is less than 20%, mortgage insurance may be required and could increase the monthly payment and APR. Contact us for details. Additional loan programs may be available. Accuracy is not guaranteed, and all products may not be available in all borrower's geographical areas and are based on their individual situation. This is not a credit decision or a commitment to lend.
Sales History & Tax Summary for 727 54th Avenue N
Sales History
| Date | Price | Change |
|---|---|---|
| Currently not available. | ||
Tax Summary
| Tax Year | Estimated Market Value | Total Tax |
|---|---|---|
| Currently not available. | ||
Data powered by ATTOM Data Solutions. Copyright© 2025. Information deemed reliable but not guaranteed.
Schools
Schools nearby 727 54th Avenue N
| Schools in attendance boundaries | Grades | Distance | Rating |
|---|---|---|---|
| Loading... | |||
| Schools nearby | Grades | Distance | Rating |
|---|---|---|---|
| Loading... | |||
Data powered by ATTOM Data Solutions. Copyright© 2025. Information deemed reliable but not guaranteed.
The schools shown represent both the assigned schools and schools by distance based on local school and district attendance boundaries. Attendance boundaries change based on various factors and proximity does not guarantee enrollment eligibility. Please consult your real estate agent and/or the school district to confirm the schools this property is zoned to attend. Information is deemed reliable but not guaranteed.
SchoolDigger ® Rating
The SchoolDigger rating system is a 1-5 scale with 5 as the highest rating. SchoolDigger ranks schools based on test scores supplied by each state's Department of Education. They calculate an average standard score by normalizing and averaging each school's test scores across all tests and grades.
Coming soon properties will soon be on the market, but are not yet available for showings.