$749,860
728 SW 131 Street Newberry, FL 32669
For Sale MLS# GC538552
4 beds 4 baths 2,734 sq ft Single Family
Details for 728 SW 131 Street
MLS# GC538552
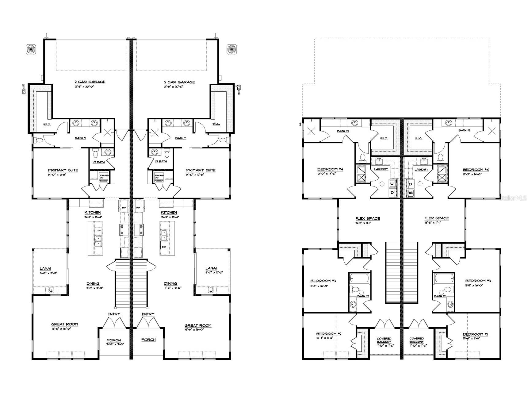
Description for 728 SW 131 Street, Newberry, FL, 32669
Under Construction. Experience the perfect blend of timeless design and modern functionality in this stunning 4-bedroom, 3.5-bath neotraditional attached townhome offering 2,734 square feet of thoughtfully designed living space. Ideal for today’s modern family, this home features a rare double primary suite layout with a spacious owner’s retreat on the main level and a full secondary suite upstairs—perfect for multigenerational living or an elevated guest experience. Designed with flexibility in mind, the home includes a dedicated flex office space and the convenience of two laundry rooms, creating ease for everyday living. Interior finishes shine with wood flooring throughout the main living areas. The exterior showcases a beautiful combination of board-and-batten and wide Hardie lap siding, accented by a welcoming front porch and covered balcony, blending classic charm with contemporary appeal. Built with a staggered stud structural wall system, this duplex offers enhanced sound insulation for maximum privacy. Step into the private courtyard, pre-plumbed for a sink and equipped with a gas connection—ready for your custom outdoor kitchen. Inside, enjoy premium upgrades including Icyene attic and wall insulation, a dual-fuel range with natural gas cooktop and electric oven, and a gas tankless water heater for efficiency and performance. Additional highlights include a thoughtfully designed third bathroom with a built-in makeup vanity, adding both style and functionality. This home offers a unique opportunity for low-maintenance living without compromising space, comfort, or design. Tioga itself is a golf cart-friendly town, providing a unique and enjoyable way to explore the area. The community also offers a range of amenities, including parks, trails, and recreational facilities. Conveniently located near shops, restaurants, and entertainment options, this home combines tranquility with easy access to modern conveniences. Neighborhood amenities – pickleball court, clubhouse, community pool, playground, tennis courts, sand volleyball, basketball courts, walking trails, and adjacent to Tioga Town Center with fine dining, shopping, and Gainesville Health and Fitness. Approximately 4 miles to I-75, 4.5 miles to North Florida Regional, 8 miles to the University of Florida, and 11 miles to Shands.
Listing Information
Property Type: Residential, Single Family Residence
Status: Active
Bedrooms: 4
Bathrooms: 4
Lot Size: 0.07 Acres
Square Feet: 2,734 sq ft
Year Built: 2025
Garage: Yes
Stories: 2 Story
Construction: Cement Siding,Wood Frame
Property Attached: Yes
Construction Display: New Construction
Subdivision: Town Of Tioga
Builder: Dibros Corp
Foundation: Slab,Stem Wall
County: Alachua
Construction Status: Under Construction
School Information
Elementary: Meadowbrook Elementary School-Al
Middle: Kanapaha Middle School-Al
High: F. W. Buchholz High School-Al
Room Information
Main Floor
Kitchen: 15x15
Living Room: 16x16.5
Primary Bedroom: 12.8x14
Upper Floor
Den: 11x15
Bedroom 4: 14x13
Bathroom 3: 16x11
Bedroom 2: 13x11
Bathrooms
Full Baths: 3
1/2 Baths: 1
Additonal Room Information
Laundry: Inside, Laundry Room, Other
Interior Features
Appliances: Range, Refrigerator, Dishwasher, Disposal, Microwave, Range Hood, Tankless Water Heater
Flooring: Carpet,Tile,Wood
Doors/Windows: Low-Emissivity Windows, Double Pane Windows, Insulated Windows
Accessibility: Wheelchair Access
Additional Interior Features: Ceiling Fan(s), Eat-In Kitchen, Main Level Primary, Open Floorplan, Kitchen/Family Room Combo, Solid Surface Counters, Wood Cabinets, Walk-In Closet(s), Built-in Features, Living/Dining Room, High Ceilings
Utilities
Water: Public
Sewer: Public Sewer
Other Utilities: Electricity Available,Electricity Connected,Fiber Optic Available,Natural Gas Available,Natural Gas Connected,High Speed Internet Available,Municipal Utilities,Phone Available,Sewer Available,Sewer Connected,Underground Utilities,Water Available,Water Connected
Cooling: Ceiling Fan(s), Zoned, Central Air
Heating: Zoned, Electric
Exterior / Lot Features
Attached Garage: Attached Garage
Garage Spaces: 2
Parking Description: on street, Alley Access, driveway
Roof: Shingle
Pool: Community, Association
Lot Dimensions: 110 x 30
Fencing: Wood, fenced
Additional Exterior/Lot Features: Sprinkler/Irrigation, Rain Gutters, Other, Lighting, Other, Covered, Side Porch, Front Porch
Community Features
Community Features: Sidewalks, Pool, Tennis Court(s), Playground, Street Lights, Golf Carts OK
Security Features: Fire Hydrant(s), Smoke Detector(s)
Association Amenities: Tennis Court(s), Pool, Clubhouse, Basketball Court, Playground, Maintenance Grounds
HOA Dues Include: Road Maintenance, Maintenance Grounds, Pest Control, Association Management, Maintenance Structure, Pool(s), Recreation Facilities
Homeowners Association: Yes
HOA Dues: $629 / Quarterly
Driving Directions
From I-75: 4 miles West on HWY 26 (Newberry Rd.) turn left onto SW 131st Street 0.5 miles (into Town of Tioga) the home is on the right side before 8th Ave.
Financial Considerations
Terms: Cash,Conventional,FHA,VA Loan
Tax/Property ID: 04333-114-352
Tax Amount: 1351
Tax Year: 2025
A broker reciprocity listing courtesy: TIOGA REALTY LLC
Based on information provided by Stellar MLS as distributed by the MLS GRID. Information from the Internet Data Exchange is provided exclusively for consumers’ personal, non-commercial use, and such information may not be used for any purpose other than to identify prospective properties consumers may be interested in purchasing. This data is deemed reliable but is not guaranteed to be accurate by Edina Realty, Inc., or by the MLS. Edina Realty, Inc., is not a multiple listing service (MLS), nor does it offer MLS access.
Copyright 2026 Stellar MLS as distributed by the MLS GRID. All Rights Reserved.
Payment Calculator
Interest rate and annual percentage rate (APR) are based on current market conditions, are for informational purposes only, are subject to change without notice and may be subject to pricing add-ons related to property type, loan amount, loan-to-value, credit score and other variables. Estimated closing costs used in the APR calculation are assumed to be paid by the borrower at closing. If the closing costs are financed, the loan, APR and payment amounts will be higher. If the down payment is less than 20%, mortgage insurance may be required and could increase the monthly payment and APR. Contact us for details. Additional loan programs may be available. Accuracy is not guaranteed, and all products may not be available in all borrower's geographical areas and are based on their individual situation. This is not a credit decision or a commitment to lend.
Sales History & Tax Summary for 728 SW 131 Street
Sales History
| Date | Price | |
|---|---|---|
| Currently not available. | ||
Tax Summary
| Tax Year | Estimated Market Value | Total Tax |
|---|---|---|
| Currently not available. | ||
Data powered by ATTOM Data Solutions. Copyright© 2026. Information deemed reliable but not guaranteed.
Schools
Schools nearby 728 SW 131 Street
| Schools in attendance boundaries | Grades | Distance | Rating |
|---|---|---|---|
| Loading... | |||
| Schools nearby | Grades | Distance | Rating |
|---|---|---|---|
| Loading... | |||
Data powered by ATTOM Data Solutions. Copyright© 2026. Information deemed reliable but not guaranteed.
The schools shown represent both the assigned schools and schools by distance based on local school and district attendance boundaries. Attendance boundaries change based on various factors and proximity does not guarantee enrollment eligibility. Please consult your real estate agent and/or the school district to confirm the schools this property is zoned to attend. Information is deemed reliable but not guaranteed.
SchoolDigger ® Rating
The SchoolDigger rating system is a 1-5 scale with 5 as the highest rating. SchoolDigger ranks schools based on test scores supplied by each state's Department of Education. They calculate an average standard score by normalizing and averaging each school's test scores across all tests and grades.
Coming soon properties will soon be on the market, but are not yet available for showings.