$699,000
7300 State 6 NE Remer, MN 56672
For Sale MLS# 6807619
Other
Details for 7300 State 6 NE
MLS# 6807619
Description for 7300 State 6 NE, Remer, MN, 56672
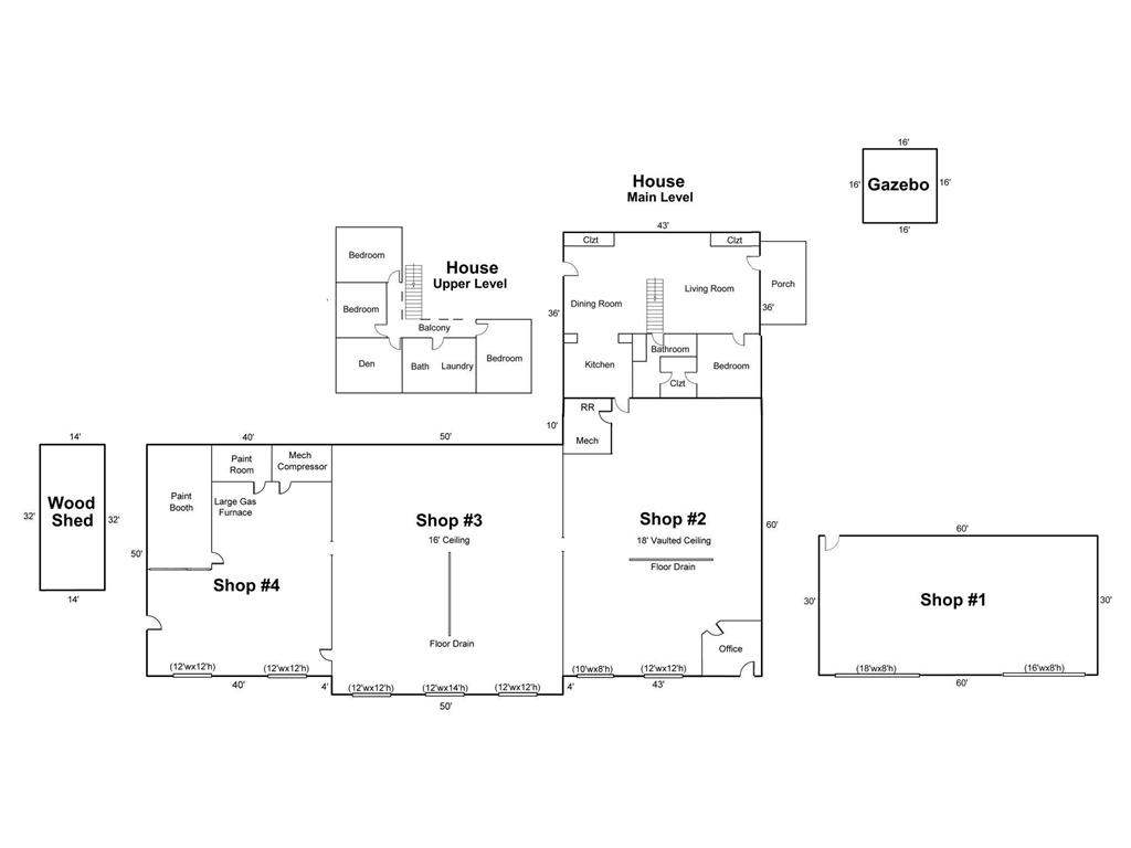
Unique live/work opportunity. Just northeast of downtown Remer, this versatile property offers incredible potential with three large connected shop buildings featuring seven overhead doors—ideal for automotive, body shop, or light industrial use. The property also includes an attached two-story, 4-bedroom, 2-bath home, providing convenient on-site living or rental income possibilities. A large detached storage building with two oversized overhead doors, plus a wood shed and gazebo, add even more functionality and charm. With ample space, multiple buildings, and a prime location near town, this property is perfect for entrepreneurs, hobbyists, or anyone seeking a unique combination of workspace and comfortable living.House/Shop Building contains House & Shops 2-4. House: 2,518 SF (1,548 SF Main & 970 SF Upper); Shop #2: 2,580 SF (Includes 143 SF Office); Shop #3: 2,700 SF; Shop #4: 2,000 SF. Stand Alone Shop #4: 1,800 SF; Wood Shed: 448 SF; Gazebo: 256 SF. 9 Overhead Doors Total.
Listing Information
Property Type: Commercial
Status: Active
Lot Size: 4.63 Acres
Square Feet: 11,598 sq ft
Year Built: 2003
Foundation: 10,628 sq ft
Garage: Yes
Stories: 2 Stories
Number Of Units Total: 5
Current Use: Automobile Service,Commercial,Residential,Warehouse
County: Cass
Days On Market: 71
Construction Status: Previously Owned
School Information
District: 118 - Northland Community Schools
Interior Features
Accessibility: No Stairs External
Utilities
Water: Well
Sewer: Private
Other Utilities: Electric Common,Heating Common,Hot Water Common
Cooling: Central
Heating: Forced Air, Propane
Exterior / Lot Features
Garage Spaces: 9
Open Parking: 40
Parking Description: Uncovered/Open, gravel lot
Exterior: Steel Siding, Log Siding
Roof: Metal
Lot Dimensions: 642x193x424x527
Zoning: Business/Commercial,Residential-Single Family,Shoreline
Topography: Level
Additional Exterior/Lot Features: Overhead Doors, Land Inclusions - Building,Land, Road Frontage - Paved Streets, State
Driving Directions
From the fork intersection of Hwy 6 and Hwy 200 - Northeast on Hwy 6 1 mile to property on the East
Financial Considerations
Tax/Property ID: 650313102
Tax Amount: 2716
Tax Year: 2025
HomeStead Description: Homesteaded
A broker reciprocity listing courtesy: Close-Converse Commercial Prop
The data relating to real estate for sale on this web site comes in part from the Broker Reciprocity℠ Program of the Regional Multiple Listing Service of Minnesota, Inc. Real estate listings held by brokerage firms other than Edina Realty, Inc. are marked with the Broker Reciprocity℠ logo or the Broker Reciprocity℠ thumbnail and detailed information about them includes the name of the listing brokers. Edina Realty, Inc. is not a Multiple Listing Service (MLS), nor does it offer MLS access. This website is a service of Edina Realty, Inc., a broker Participant of the Regional Multiple Listing Service of Minnesota, Inc. IDX information is provided exclusively for consumers personal, non-commercial use and may not be used for any purpose other than to identify prospective properties consumers may be interested in purchasing. Open House information is subject to change without notice. Information deemed reliable but not guaranteed.
Copyright 2025 Regional Multiple Listing Service of Minnesota, Inc. All Rights Reserved.
Payment Calculator
Interest rate and annual percentage rate (APR) are based on current market conditions, are for informational purposes only, are subject to change without notice and may be subject to pricing add-ons related to property type, loan amount, loan-to-value, credit score and other variables. Estimated closing costs used in the APR calculation are assumed to be paid by the borrower at closing. If the closing costs are financed, the loan, APR and payment amounts will be higher. If the down payment is less than 20%, mortgage insurance may be required and could increase the monthly payment and APR. Contact us for details. Additional loan programs may be available. Accuracy is not guaranteed, and all products may not be available in all borrower's geographical areas and are based on their individual situation. This is not a credit decision or a commitment to lend.
Sales History & Tax Summary for 7300 State 6 NE
Sales History
| Date | Price | Change |
|---|---|---|
| Currently not available. | ||
Tax Summary
| Tax Year | Estimated Market Value | Total Tax |
|---|---|---|
| Currently not available. | ||
Data powered by ATTOM Data Solutions. Copyright© 2025. Information deemed reliable but not guaranteed.
Schools
Schools nearby 7300 State 6 NE
| Schools in attendance boundaries | Grades | Distance | Rating |
|---|---|---|---|
| Loading... | |||
| Schools nearby | Grades | Distance | Rating |
|---|---|---|---|
| Loading... | |||
Data powered by ATTOM Data Solutions. Copyright© 2025. Information deemed reliable but not guaranteed.
The schools shown represent both the assigned schools and schools by distance based on local school and district attendance boundaries. Attendance boundaries change based on various factors and proximity does not guarantee enrollment eligibility. Please consult your real estate agent and/or the school district to confirm the schools this property is zoned to attend. Information is deemed reliable but not guaranteed.
SchoolDigger ® Rating
The SchoolDigger rating system is a 1-5 scale with 5 as the highest rating. SchoolDigger ranks schools based on test scores supplied by each state's Department of Education. They calculate an average standard score by normalizing and averaging each school's test scores across all tests and grades.
Coming soon properties will soon be on the market, but are not yet available for showings.