7308 Royal Palm Drive New Port Richey, FL 34652
For Sale MLS# TB8459053
2 beds 1 baths 744 sq ft Single Family
Details for 7308 Royal Palm Drive
MLS# TB8459053
Description for 7308 Royal Palm Drive, New Port Richey, FL, 34652
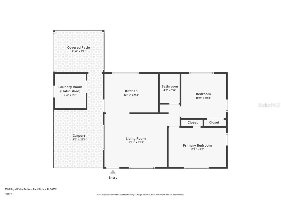
Welcome to this spacious two-bedroom, one-bath home located in the Jasmine Acres Community. This renovated home features an open floor plan with large windows that provide plenty of natural light. This home has terrazzo flooring throughout (replaced in 2023), updated light fixtures, ceiling fans, and window treatments. Seller is offering two years of FLOOD INSURANCE COVERAGE! The fully remodeled kitchen showcases stone countertops, beautiful wooden cabinetry, and stainless steel appliances. A convenient laundry room comes complete with a washer and dryer and offers generous storage space. The carport easily fits two vehicles and the covered rear patio provides an outside space to relax or entertain year-round. Electrical, plumbing and water heater have all been recently updated. Jasmine Point Estates is a great community with NO HOA and is close to parks, a variety of restaurants, shopping, Urban Air Trampoline and Adventure Park, and Walmart Supercenter. Enjoy easy access to state parks, nature reserves, and marinas, with downtown New Port Richey, waterfront restaurants, bars, shops, and major highways nearby. Best of all, it’s just a short drive to the beautiful West Coast beaches.
Listing Information
Property Type: Residential, Single Family Residence
Status: Active
Bedrooms: 2
Bathrooms: 1
Lot Size: 0.17 Acres
Square Feet: 744 sq ft
Year Built: 1958
Stories: 1 Story
Construction: Block,Concrete,Stucco
Subdivision: Jasmin Acres
Foundation: Block
County: Pasco
School Information
Elementary: Richey Elementary School
Middle: Gulf Middle-Po
High: Gulf High-Po
Room Information
Main Floor
Porch: 9.8x11.6
Laundry: 8.3x7.4
Bathroom 1: 7x4.9
Bedroom 2: 10.8x10.9
Primary Bedroom: 9.5x13.9
Kitchen: 9.3x12.1
Living Room: 12.9x14.11
Bathrooms
Full Baths: 1
Additonal Room Information
Laundry: Outside, Washer Hookup, Laundry Room, Electric Dryer Hookup
Interior Features
Appliances: Range, Refrigerator, Microwave
Flooring: Terrazzo
Additional Interior Features: Kitchen/Family Room Combo, Built-in Features, Open Floorplan, Stone Counters, Wood Cabinets
Utilities
Water: Public
Sewer: Public Sewer
Other Utilities: Electricity Connected,Phone Available,Sewer Connected,Water Connected
Cooling: Central Air
Heating: Electric
Exterior / Lot Features
Parking Description: driveway
Roof: Other
Additional Exterior/Lot Features: Lighting, Covered, Porch, Rear Porch, Landscaped
Community Features
Community Features: Sidewalks
Driving Directions
From I-75 S take exit 285 toward Dade City/New Port Richey and Continue onto Exit 52. Use the left 2 lanes to turn left onto US-19 S and then Drive to Royal Palm Dr. Turn right onto Royal Palm Dr and the property will be on the right
Financial Considerations
Terms: Cash,Conventional,FHA,VA Loan
Tax/Property ID: 16-25-32-0140-00B00-0040
Tax Amount: 4148
Tax Year: 2024
A broker reciprocity listing courtesy: KELLER WILLIAMS REALTY PORTFOLIO COLLECTION
Based on information provided by Stellar MLS as distributed by the MLS GRID. Information from the Internet Data Exchange is provided exclusively for consumers’ personal, non-commercial use, and such information may not be used for any purpose other than to identify prospective properties consumers may be interested in purchasing. This data is deemed reliable but is not guaranteed to be accurate by Edina Realty, Inc., or by the MLS. Edina Realty, Inc., is not a multiple listing service (MLS), nor does it offer MLS access.
Copyright 2026 Stellar MLS as distributed by the MLS GRID. All Rights Reserved.
Payment Calculator
Interest rate and annual percentage rate (APR) are based on current market conditions, are for informational purposes only, are subject to change without notice and may be subject to pricing add-ons related to property type, loan amount, loan-to-value, credit score and other variables. Estimated closing costs used in the APR calculation are assumed to be paid by the borrower at closing. If the closing costs are financed, the loan, APR and payment amounts will be higher. If the down payment is less than 20%, mortgage insurance may be required and could increase the monthly payment and APR. Contact us for details. Additional loan programs may be available. Accuracy is not guaranteed, and all products may not be available in all borrower's geographical areas and are based on their individual situation. This is not a credit decision or a commitment to lend.
Sales History & Tax Summary for 7308 Royal Palm Drive
Sales History
| Date | Price | |
|---|---|---|
| Currently not available. | ||
Tax Summary
| Tax Year | Estimated Market Value | Total Tax |
|---|---|---|
| Currently not available. | ||
Data powered by ATTOM Data Solutions. Copyright© 2026. Information deemed reliable but not guaranteed.
Schools
Schools nearby 7308 Royal Palm Drive
| Schools in attendance boundaries | Grades | Distance | Rating |
|---|---|---|---|
| Loading... | |||
| Schools nearby | Grades | Distance | Rating |
|---|---|---|---|
| Loading... | |||
Data powered by ATTOM Data Solutions. Copyright© 2026. Information deemed reliable but not guaranteed.
The schools shown represent both the assigned schools and schools by distance based on local school and district attendance boundaries. Attendance boundaries change based on various factors and proximity does not guarantee enrollment eligibility. Please consult your real estate agent and/or the school district to confirm the schools this property is zoned to attend. Information is deemed reliable but not guaranteed.
SchoolDigger ® Rating
The SchoolDigger rating system is a 1-5 scale with 5 as the highest rating. SchoolDigger ranks schools based on test scores supplied by each state's Department of Education. They calculate an average standard score by normalizing and averaging each school's test scores across all tests and grades.
Coming soon properties will soon be on the market, but are not yet available for showings.