$349,900
7315 8th Avenue W Bradenton, FL 34209
For Sale MLS# A4674157
2 beds 2 baths 1,913 sq ft Single Family
Details for 7315 8th Avenue W
MLS# A4674157
Description for 7315 8th Avenue W, Bradenton, FL, 34209
Welcome to this beautifully updated 2 bedroom 2 bath home in the highly desirable 55 plus community of Village Green. This inviting residence offers a perfect blend of comfort, style, and easy Florida living with furnishings available as an option for added convenience. Inside, find updates throughout including a modern kitchen with granite countertops, new flooring in the main living areas, and hurricane impact windows paired with Hunter Douglas blinds for peace of mind and energy efficiency. All kitchen appliances are brand new as of October 2025. The spacious 2 car garage is a standout feature, complete with a separate AC unit located in the attic, providing added comfort and flexibility for storage or hobbies. Enjoy the outdoors on your private patio, perfect for morning coffee or evening gatherings. An additional Florida room offers even more flexible living space ideal for a cozy lounge area, reading nook, or home office. Just a short stroll from your back door is the community pool where you can relax, socialize, and soak up the sunshine. And with pristine beaches, popular restaurants, world class golfing, and countless conveniences only minutes away, you will experience the very best of Florida’s Gulf Coast lifestyle. This is your chance to enjoy the easy maintenance free living Village Green is known for. Schedule your private tour today.
Listing Information
Property Type: Residential, Villa
Status: Active
Bedrooms: 2
Bathrooms: 2
Square Feet: 1,913 sq ft
Year Built: 1978
Garage: Yes
Stories: 1 Story
Construction: Block
Subdivision: Village Green Of Bradenton Sec 8
Foundation: Slab
County: Manatee
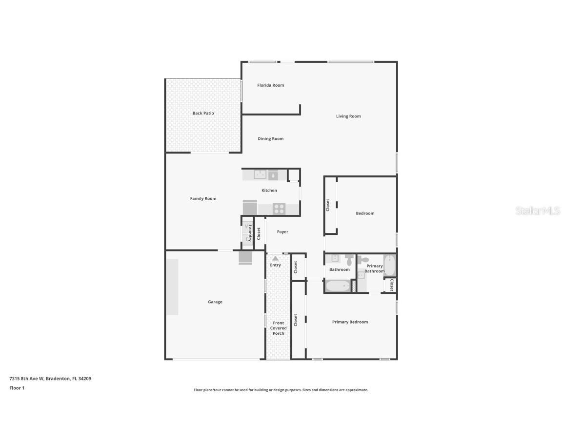
Room Information
Main Floor
Florida Room:
Dining Room:
Bedroom 2:
Primary Bedroom:
Family Room:
Kitchen:
Living Room:
Bathrooms
Full Baths: 2
Additonal Room Information
Laundry: Inside
Interior Features
Appliances: Washer, Electric Water Heater, Dishwasher, Dryer, Refrigerator
Flooring: Carpet,Laminate
Doors/Windows: Window Treatments
Additional Interior Features: Walk-In Closet(s), Window Treatments, Ceiling Fan(s), Open Floorplan, Kitchen/Family Room Combo, Solid Surface Counters, Living/Dining Room
Utilities
Water: Public
Sewer: Public Sewer
Other Utilities: Cable Connected,Electricity Connected,Sewer Connected,Water Connected
Cooling: Ceiling Fan(s), Central Air
Heating: Central
Exterior / Lot Features
Attached Garage: Attached Garage
Garage Spaces: 2
Roof: Tile
Pool: Community
Additional Exterior/Lot Features: Sprinkler/Irrigation, Rain Gutters, Lighting
Community Features
Community Features: Pool
HOA Dues Include: Trash, Internet, Cable TV, Association Management, Insurance, Maintenance Grounds, Pest Control, Reserve Fund, Maintenance Structure, Pool(s)
Homeowners Association: Yes
HOA Dues: $675 / Monthly
Driving Directions
West on Manatee, left on Village Green Pkwy W, Right on 8th AVE W
Financial Considerations
Tax/Property ID: 3899437002
Tax Amount: 4999
Tax Year: 2024
A broker reciprocity listing courtesy: REDFIN CORPORATION
Based on information provided by Stellar MLS as distributed by the MLS GRID. Information from the Internet Data Exchange is provided exclusively for consumers’ personal, non-commercial use, and such information may not be used for any purpose other than to identify prospective properties consumers may be interested in purchasing. This data is deemed reliable but is not guaranteed to be accurate by Edina Realty, Inc., or by the MLS. Edina Realty, Inc., is not a multiple listing service (MLS), nor does it offer MLS access.
Copyright 2025 Stellar MLS as distributed by the MLS GRID. All Rights Reserved.
Payment Calculator
Interest rate and annual percentage rate (APR) are based on current market conditions, are for informational purposes only, are subject to change without notice and may be subject to pricing add-ons related to property type, loan amount, loan-to-value, credit score and other variables. Estimated closing costs used in the APR calculation are assumed to be paid by the borrower at closing. If the closing costs are financed, the loan, APR and payment amounts will be higher. If the down payment is less than 20%, mortgage insurance may be required and could increase the monthly payment and APR. Contact us for details. Additional loan programs may be available. Accuracy is not guaranteed, and all products may not be available in all borrower's geographical areas and are based on their individual situation. This is not a credit decision or a commitment to lend.
Sales History & Tax Summary for 7315 8th Avenue W
Sales History
| Date | Price | Change |
|---|---|---|
| Currently not available. | ||
Tax Summary
| Tax Year | Estimated Market Value | Total Tax |
|---|---|---|
| Currently not available. | ||
Data powered by ATTOM Data Solutions. Copyright© 2025. Information deemed reliable but not guaranteed.
Schools
Schools nearby 7315 8th Avenue W
| Schools in attendance boundaries | Grades | Distance | Rating |
|---|---|---|---|
| Loading... | |||
| Schools nearby | Grades | Distance | Rating |
|---|---|---|---|
| Loading... | |||
Data powered by ATTOM Data Solutions. Copyright© 2025. Information deemed reliable but not guaranteed.
The schools shown represent both the assigned schools and schools by distance based on local school and district attendance boundaries. Attendance boundaries change based on various factors and proximity does not guarantee enrollment eligibility. Please consult your real estate agent and/or the school district to confirm the schools this property is zoned to attend. Information is deemed reliable but not guaranteed.
SchoolDigger ® Rating
The SchoolDigger rating system is a 1-5 scale with 5 as the highest rating. SchoolDigger ranks schools based on test scores supplied by each state's Department of Education. They calculate an average standard score by normalizing and averaging each school's test scores across all tests and grades.
Coming soon properties will soon be on the market, but are not yet available for showings.