733 Orange Cosmos Boulevard Davenport, FL 33837
For Sale MLS# L4958410
5 beds 5 baths 2,833 sq ft Single Family
Details for 733 Orange Cosmos Boulevard
MLS# L4958410
Description for 733 Orange Cosmos Boulevard, Davenport, FL, 33837
Enjoy resort living in this beautifully impressive home! Turnkey 5-Bedroom, 4.5-Bathroom Home with an Impressively Extended, South-Facing Pool Deck — ideally situated in the desirable Watersong Resort! Seller credit of $5,000 toward buyer closing costs and prepaids at closing. This stunning property provides ample space and comfort for your family. The exterior boasts an immense driveway, ensuring plenty of parking space for residents and guests alike. When you enter the home, you'll be greeted by a spacious living area and dining area to the right. The rear of the home features a kitchen equipped with a range, refrigerator, microwave, and dishwasher. Overlooking the kitchen is an additional spacious living and dining area, perfect for family gatherings and entertainment. Near the dining area, you'll find a sliding door that leads to the exterior of the home, where a large screened-in pool awaits, offering a private oasis for relaxation and fun with a conservation view. The primary bedroom and its large ensuite complete with a stand-up shower, a garden tub, and a walk-in closet, are on the first floor. Upstairs, the second primary bedroom offers a luxurious retreat which includes an additional master bedroom, featuring a shower-tub combo and another walk-in closet. Down the hallway, you'll find the remaining bedrooms and bathrooms, ensuring plenty of space for everyone. You can enjoy movie night in the upstairs loft or take a moment and read a book. The laundry room is conveniently located for easy access next to the half bath. For added entertainment, the garage includes a pool table, perfect for game nights. The Watersong community enhances your lifestyle with its Clubhouse, Playground, Community Pool, Fitness Center, and Game Room. This pet-friendly property is ideally located near shopping centers, making errands a breeze every day.
Listing Information
Property Type: Residential, Single Family Residence
Status: Active
Bedrooms: 5
Bathrooms: 5
Lot Size: 0.19 Acres
Square Feet: 2,833 sq ft
Year Built: 2012
Garage: Yes
Stories: 2 Story
Construction: Stucco
Construction Display: New Construction
Subdivision: Watersong Ph 01
Foundation: Slab
County: Polk
Construction Status: New Construction
School Information
Elementary: Loughman Oaks Elem
Middle: Boone Middle
High: Ridge Community Senior High
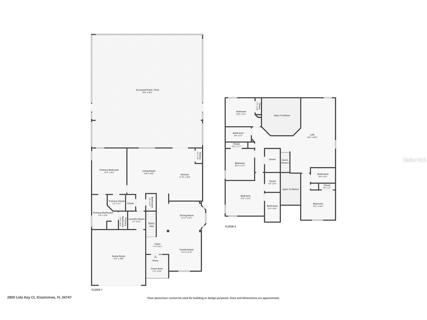
Room Information
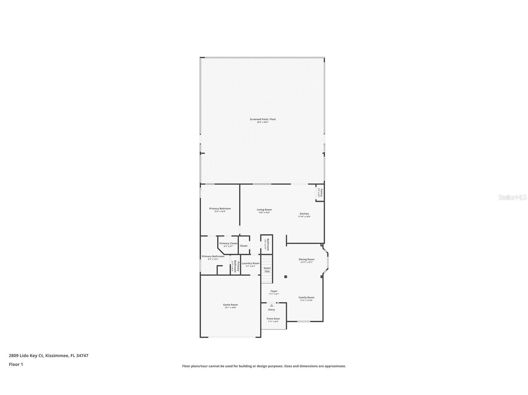
Main Floor
Kitchen: 12x15.5
Great Room: 16x18.5
Primary Bathroom: 9.5x10
Primary Bedroom: 13x12
Living Room: 12.5x15
Dining Room: 9x11
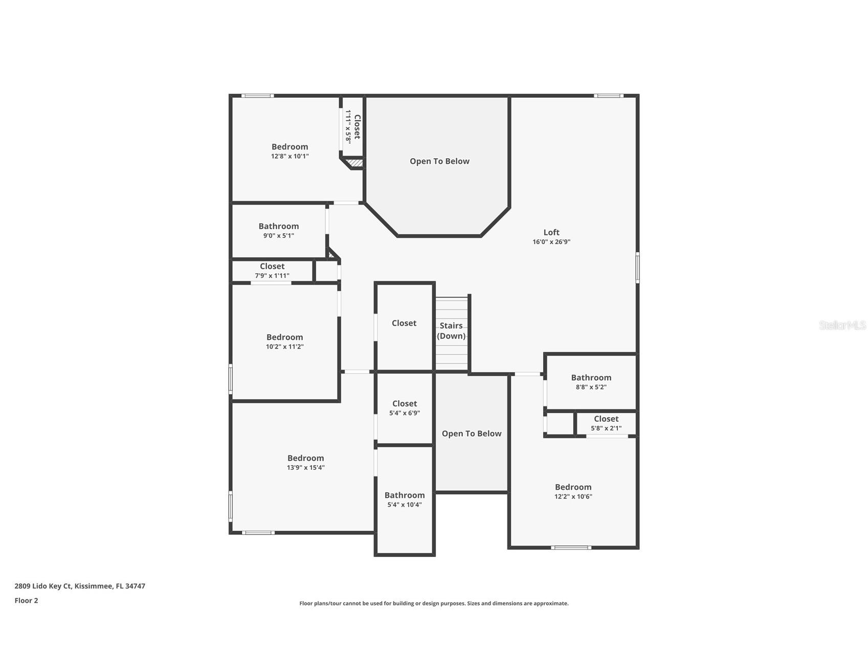
Upper Floor
Bathroom 4: 13x12
Bathroom 3: 5x8
Bathroom 2: 11.5x11
Primary Bedroom: 12x13.5
Bedroom 4: 13x10
Bedroom 3: 10x12
Bedroom 2: 10x10
Bathrooms
Full Baths: 4
1/2 Baths: 1
Additonal Room Information
Laundry: Washer Hookup, Laundry Room, Electric Dryer Hookup, Inside
Interior Features
Appliances: Ice Maker, Tankless Water Heater, Electric Water Heater, Gas Water Heater, Microwave, Dishwasher, Disposal, Dryer, Range, Refrigerator, Washer, Exhaust Fan
Flooring: Carpet,Ceramic Tile
Doors/Windows: Window Treatments
Additional Interior Features: Eat-In Kitchen, Window Treatments, Walk-In Closet(s), High Ceilings, Living/Dining Room, Main Level Primary, Solid Surface Counters
Utilities
Water: Public
Sewer: Public Sewer
Other Utilities: Cable Available,Electricity Connected,Phone Available,Sewer Connected,Underground Utilities,Water Connected
Cooling: Central Air
Heating: Central, Electric
Exterior / Lot Features
Attached Garage: Attached Garage
Garage Spaces: 2
Roof: Shingle
Pool: Tile, Other, Heated, In Ground, Gunite, Screen Enclosure
Additional Exterior/Lot Features: Sprinkler/Irrigation, Rear Porch, Enclosed, Screened, Deck, Landscaped, Cleared, Private Road, Conservation Area, Near Golf Course, Outside City Limits
Community Features
Community Features: Street Lights, Sidewalks
Homeowners Association: Yes
HOA Dues: $531 / Monthly
Driving Directions
From US Hwy 27 North, turn left onto Ronald Reagan Pkwy, continue to follow Ronald Reagan Pkwy to Loughman, turn right onto US-92 W/Hwy 17 S, turn left onto Orange Cosmos Blvd, the destination will be on the right From US Hwy 27 South, turn left onto Ernie Caldwell Blvd, continue to follow Ernie Caldwell Blvd to Loughman, turn left onto US 92 W/Hwy 17 S, turn right onto Orange Cosmos Blvd, the destination will be on your right.
Financial Considerations
Terms: Cash,Conventional,FHA,USDA Loan,VA Loan
Tax/Property ID: 27-26-24-706191-001810
Tax Amount: 5972.64
Tax Year: 2025
A broker reciprocity listing courtesy: AMPLIFY REAL ESTATE SERVICES FL
Based on information provided by Stellar MLS as distributed by the MLS GRID. Information from the Internet Data Exchange is provided exclusively for consumers’ personal, non-commercial use, and such information may not be used for any purpose other than to identify prospective properties consumers may be interested in purchasing. This data is deemed reliable but is not guaranteed to be accurate by Edina Realty, Inc., or by the MLS. Edina Realty, Inc., is not a multiple listing service (MLS), nor does it offer MLS access.
Copyright 2026 Stellar MLS as distributed by the MLS GRID. All Rights Reserved.
Payment Calculator
Interest rate and annual percentage rate (APR) are based on current market conditions, are for informational purposes only, are subject to change without notice and may be subject to pricing add-ons related to property type, loan amount, loan-to-value, credit score and other variables. Estimated closing costs used in the APR calculation are assumed to be paid by the borrower at closing. If the closing costs are financed, the loan, APR and payment amounts will be higher. If the down payment is less than 20%, mortgage insurance may be required and could increase the monthly payment and APR. Contact us for details. Additional loan programs may be available. Accuracy is not guaranteed, and all products may not be available in all borrower's geographical areas and are based on their individual situation. This is not a credit decision or a commitment to lend.
Sales History & Tax Summary for 733 Orange Cosmos Boulevard
Sales History
| Date | Price | |
|---|---|---|
| Currently not available. | ||
Tax Summary
| Tax Year | Estimated Market Value | Total Tax |
|---|---|---|
| Currently not available. | ||
Data powered by ATTOM Data Solutions. Copyright© 2026. Information deemed reliable but not guaranteed.
Schools
Schools nearby 733 Orange Cosmos Boulevard
| Schools in attendance boundaries | Grades | Distance | Rating |
|---|---|---|---|
| Loading... | |||
| Schools nearby | Grades | Distance | Rating |
|---|---|---|---|
| Loading... | |||
Data powered by ATTOM Data Solutions. Copyright© 2026. Information deemed reliable but not guaranteed.
The schools shown represent both the assigned schools and schools by distance based on local school and district attendance boundaries. Attendance boundaries change based on various factors and proximity does not guarantee enrollment eligibility. Please consult your real estate agent and/or the school district to confirm the schools this property is zoned to attend. Information is deemed reliable but not guaranteed.
SchoolDigger ® Rating
The SchoolDigger rating system is a 1-5 scale with 5 as the highest rating. SchoolDigger ranks schools based on test scores supplied by each state's Department of Education. They calculate an average standard score by normalizing and averaging each school's test scores across all tests and grades.
Coming soon properties will soon be on the market, but are not yet available for showings.