74 Gulf Boulevard #1B Indian Rocks Beach, FL 33785
For Sale MLS# TB8434712
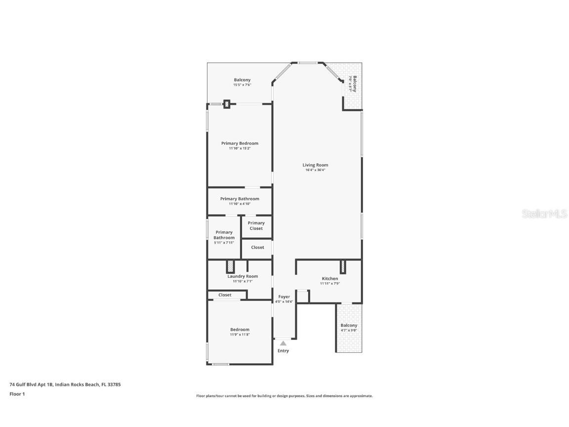
2 beds 2 baths 1,380 sq ft Condo
Details for 74 Gulf Boulevard #1B
MLS# TB8434712
Description for 74 Gulf Boulevard #1B, Indian Rocks Beach, FL, 33785
10 DAY SPECIAL STARTING FEBRUARY 18TH. INTEREST RATE BUYDOWN OFFERED BY THE SELLER. DON'T MISS THIS! True Beachfront Living, Right on the Sand. The Sunrise to Sunset vantage point offers continuous Dawn to Dusk Water Views, delivering a Memorable Experience every day. The property exemplifies Exceptional Value with the perfect balance of luxury, Convenience, and to achieve Relaxed Beach Lifestyle at this prime location. The condominium represents great long term investment opportunity as a primary home or second home with rental opportunity on monthly basis. This is truly a rare opportunity for beachfront living in a prime Indian Rocks Beach location at the Narrows, where breathtaking Gulf views meet the tranquility of the Intracoastal Waterway. The Narrows is a rare stretch of beach with limited public access, ensuring a serene and private like atmosphere. The exclusive eight unit boutique condominium sits directly on the sands, offering private access to one of Florida’s most beautiful, uncrowded beaches. Enjoy unparalleled views - watch the sunrise from your balcony over the Intracoastal and at the end of your day, the mesmerizing Gulf sunset just steps from your door. This is a well-maintained building supported by strong Condo Association Financial Reserves, which provides an excellent prospect for stable long-term financial health and helps against sudden special assessments. The building is compliant with Florida's new safety laws, evidenced by a completed SIRS Reserve Study and a clean Milestone Inspection (no costly Phase II required). Plus, a brand-new 2024 roof protects your investment for years to come. This is pet-friendly building that includes an elevator, and the $952 Monthly Assessment covers insurance, maintenance, management, reserves, water, internet and cable TV, trash, and sewer. The condo is very spacious and sunlit 2 bedroom, 2 bath condominium and boasts 1,380 sq. ft. of thoughtfully designed living space on the first floor above ground level. Recent updates include a New Energy-efficient Carrier A/C, a new Rheem water heater, full-size LG ThinQ Washer and Dryer, and luxury vinyl flooring throughout. The recently updated kitchen (2024/2025) features beautiful new Quartz Countertops and Samsung Stainless-Steel Appliances including Bespoke high-efficiency Induction Range, Microwave, Dishwasher, and Refrigerator, all seamlessly can be connected via the SmartThings platform for an intelligent, modern cooking experience. The home includes one assigned parking space, guest parking, and access to additional dedicated IRB homeowner parking spots just two hundred yards from the building—a rare convenience in beachfront communities. Additionally, ground-level storage (one of only two units with this feature) provides easy access for beach gear and water sports equipment. This home is perfectly situated in Indian Rocks Beach, celebrated for its white sandy shores, turquoise waters, and laid-back charm. The location provides easy access to the vibrant culture and attractions of the entire Tampa Bay area. With many local restaurants nearby, this location combines peace with unparalleled convenience. It's just minutes to St. Pete and Clearwater for endless shopping and entertainment, and only a short 30/40 minute drive to both Tampa and St. Pete/Clearwater International Airports. A property with this level of accessibility and an unbeatable beachfront location is a rare find.
Listing Information
Property Type: Residential, Condominium
Status: Active
Bedrooms: 2
Bathrooms: 2
Lot Size: 0.25 Acres
Square Feet: 1,380 sq ft
Year Built: 1982
Stories: 1 Story
Construction: Block,Concrete
Subdivision: 74 North Condo
Foundation: Pillar/Post/Pier
County: Pinellas
Room Information
Main Floor
Porch: 7.6x16
Living Room: 16x25
Bedroom 2: 12x12
Primary Bedroom: 12x15
Dining Room: 11x16
Kitchen: 8x12
Bathrooms
Full Baths: 2
Additonal Room Information
Laundry: Laundry Closet, Inside
Interior Features
Appliances: Range Hood, Range, Refrigerator
Flooring: Luxury Vinyl,Tile
Additional Interior Features: Ceiling Fan(s), Walk-In Closet(s), Split Bedrooms, Main Level Primary, Living/Dining Room, Kitchen/Family Room Combo, Open Floorplan
Utilities
Water: Public
Sewer: Public Sewer
Other Utilities: Cable Available,Cable Connected,Electricity Available,Electricity Connected,High Speed Internet Available,Municipal Utilities,Sewer Available,Sewer Connected,Water Available,Water Connected
Cooling: Central Air, Ceiling Fan(s)
Heating: Central
Exterior / Lot Features
Parking Description: Covered, Assigned, Guest
Roof: Membrane
Lot View: Beach,Intercoastal,Ocean,Trees/Woods,Water
Additional Exterior/Lot Features: Outdoor Grill, Outdoor Shower, Balcony, Storage, Patio, Porch, Balcony, Covered, Side Porch
Waterfront Details
Water Front Features: Beach Access, Ocean Access, Gulf Access, Intracoastal Access
Community Features
Community Features: Sidewalks, Waterfront, Fishing, Golf Carts OK, Water Access, Community Mailbox
Association Amenities: Elevator(s)
HOA Dues Include: Trash, Water, Taxes, Cable TV, Sewer, Insurance, Maintenance Grounds, Pest Control, Common Areas
Homeowners Association: Yes
HOA Dues: $965 / Monthly
Driving Directions
SR 688 (Walsingham) west over Indian Rocks Beach bridge to Gulf Blvd; south (left) on Gulf Blvd to 74 Gulf Blvd on right, Gulf side. Park in guest spots on the North side by the Blvd
Financial Considerations
Terms: Cash,Conventional,VA Loan
Tax/Property ID: 13-30-14-80320-000-0020
Tax Amount: 5454
Tax Year: 2024
A broker reciprocity listing courtesy: LPT REALTY, LLC
Based on information provided by Stellar MLS as distributed by the MLS GRID. Information from the Internet Data Exchange is provided exclusively for consumers’ personal, non-commercial use, and such information may not be used for any purpose other than to identify prospective properties consumers may be interested in purchasing. This data is deemed reliable but is not guaranteed to be accurate by Edina Realty, Inc., or by the MLS. Edina Realty, Inc., is not a multiple listing service (MLS), nor does it offer MLS access.
Copyright 2026 Stellar MLS as distributed by the MLS GRID. All Rights Reserved.
Payment Calculator
Interest rate and annual percentage rate (APR) are based on current market conditions, are for informational purposes only, are subject to change without notice and may be subject to pricing add-ons related to property type, loan amount, loan-to-value, credit score and other variables. Estimated closing costs used in the APR calculation are assumed to be paid by the borrower at closing. If the closing costs are financed, the loan, APR and payment amounts will be higher. If the down payment is less than 20%, mortgage insurance may be required and could increase the monthly payment and APR. Contact us for details. Additional loan programs may be available. Accuracy is not guaranteed, and all products may not be available in all borrower's geographical areas and are based on their individual situation. This is not a credit decision or a commitment to lend.
Sales History & Tax Summary for 74 Gulf Boulevard #1B
Sales History
| Date | Price | |
|---|---|---|
| Currently not available. | ||
Tax Summary
| Tax Year | Estimated Market Value | Total Tax |
|---|---|---|
| Currently not available. | ||
Data powered by ATTOM Data Solutions. Copyright© 2026. Information deemed reliable but not guaranteed.
Schools
Schools nearby 74 Gulf Boulevard #1B
| Schools in attendance boundaries | Grades | Distance | Rating |
|---|---|---|---|
| Loading... | |||
| Schools nearby | Grades | Distance | Rating |
|---|---|---|---|
| Loading... | |||
Data powered by ATTOM Data Solutions. Copyright© 2026. Information deemed reliable but not guaranteed.
The schools shown represent both the assigned schools and schools by distance based on local school and district attendance boundaries. Attendance boundaries change based on various factors and proximity does not guarantee enrollment eligibility. Please consult your real estate agent and/or the school district to confirm the schools this property is zoned to attend. Information is deemed reliable but not guaranteed.
SchoolDigger ® Rating
The SchoolDigger rating system is a 1-5 scale with 5 as the highest rating. SchoolDigger ranks schools based on test scores supplied by each state's Department of Education. They calculate an average standard score by normalizing and averaging each school's test scores across all tests and grades.
Coming soon properties will soon be on the market, but are not yet available for showings.