7496 Yale Harbor Drive Wesley Chapel, FL 33545
For Sale MLS# TB8437981
4 beds 3 baths 2,606 sq ft Single Family
Details for 7496 Yale Harbor Drive
MLS# TB8437981
Description for 7496 Yale Harbor Drive, Wesley Chapel, FL, 33545
THIS IS THE LOWEST PRICED POOL HOME IN THE COMMUNITY! If you’re looking for a pool home in Florida, and you pass on this one, good luck sleeping tonight! With a sparkling pool & spa, this five bedroom+ three full bath home is great for a primary home, or a vacation home. Built by MI Homes and featuring an open floor plan with espresso color kitchen cabinets, granite counter tops, tile flooring, sliders to the screened lanai & pool area and a smooth floorpan, you’ll want to snatch this one up before anyone else does. After stepping into the foyer head on over to the guest room on the first floor, kitchen are living room. The primary bedroom and three other bedrooms are on the second floor. The sellers have maintained this home better than most. They added a water softener, a pool with spa, paver deck with screen, a full fence, custom shelving in the pantry and closets, epoxy in the garage with cabinets, and a home security system with cameras. The home was built in 2022 and features block/stucco construction with a composition shingle roof. The property is conveniently located in close proximity to Overpass Rd., giving easy access to SR-75, which makes a quick ride to shopping, restaurants and Downtown Tampa. This home is located in the Epperson South Lagoon Community, which is gated. Life at the Lagoon is like nothing else, the Epperson Lagoon Community has the Publix Plaza at Innovation Springs (you can ride the golf car over), Starbucks and Chick Fil-A. The Epperson HOA quarterly fee is only $247 per quarter and includes cable + the fastest internet in the nation, Ultra-Fi. The Crystal Lagoon Membership Fee is $107 per quarter. The closest Elementary Schools are Innovation Preparatory Academy, Watergrass Elementary School & Wesley Chapel Elementary. The Kirkland K-8 Charter School is just a few blocks away The closest middle school is Thomas Weightnman Middle School. The nearest high schools are Kirkland Academy of Innovation High School and Wesley Chapel HS. The community features “Street Leaf” (solar streetlights), home of the first Crystal Lagoon, where Residents have access to Elam Park & the dock at King Lake, Paddle Boarding, Kayaking, a Wibit Obstacle Course, Cabanas, AquaBanas, Sandy Beaches, Live Music Events, Swim Up Bar and Resident Only Events. The Lagoon is like an Outdoor Clubhouse. The Holiday/Seasonal Events include Trivia Night, Family Night, Movies on the Lawn, Sounds of Summer (live music series), Karaoke, Pumpkin Patch in November, Golf Cart parades, Cinco de Mayo Resident only celebration, Fourth of July Resident Only celebration and much more. The Epperson Community Amenities include an Eagle’s Nest Part, a dog park, and golf cart paths. This home is located about 10 minutes away from KRATE (the new outdoor mall), 35 minutes north of Downtown Tampa, 45 minutes from Tampa International Airport, and 90 minutes from Orlando and Walt Disney World theme parks. Don’t miss this incredible opportunity to own a piece of paradise in one of Wesley Chapel’s most sought-after neighborhoods, schedule your showing today! Video tour available upon request, contact the Agent directly.
Listing Information
Property Type: Residential, Single Family Residence
Status: Active
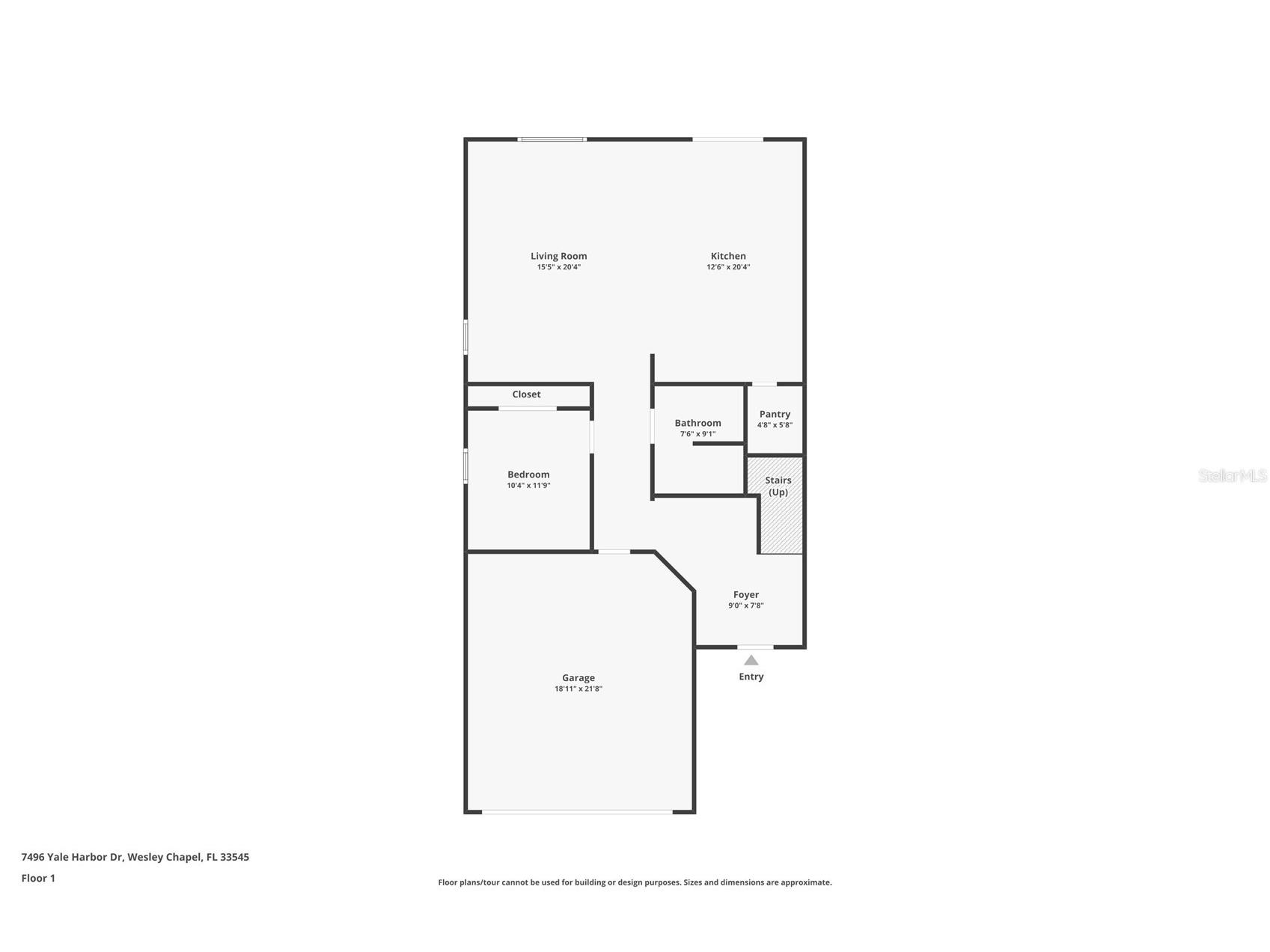
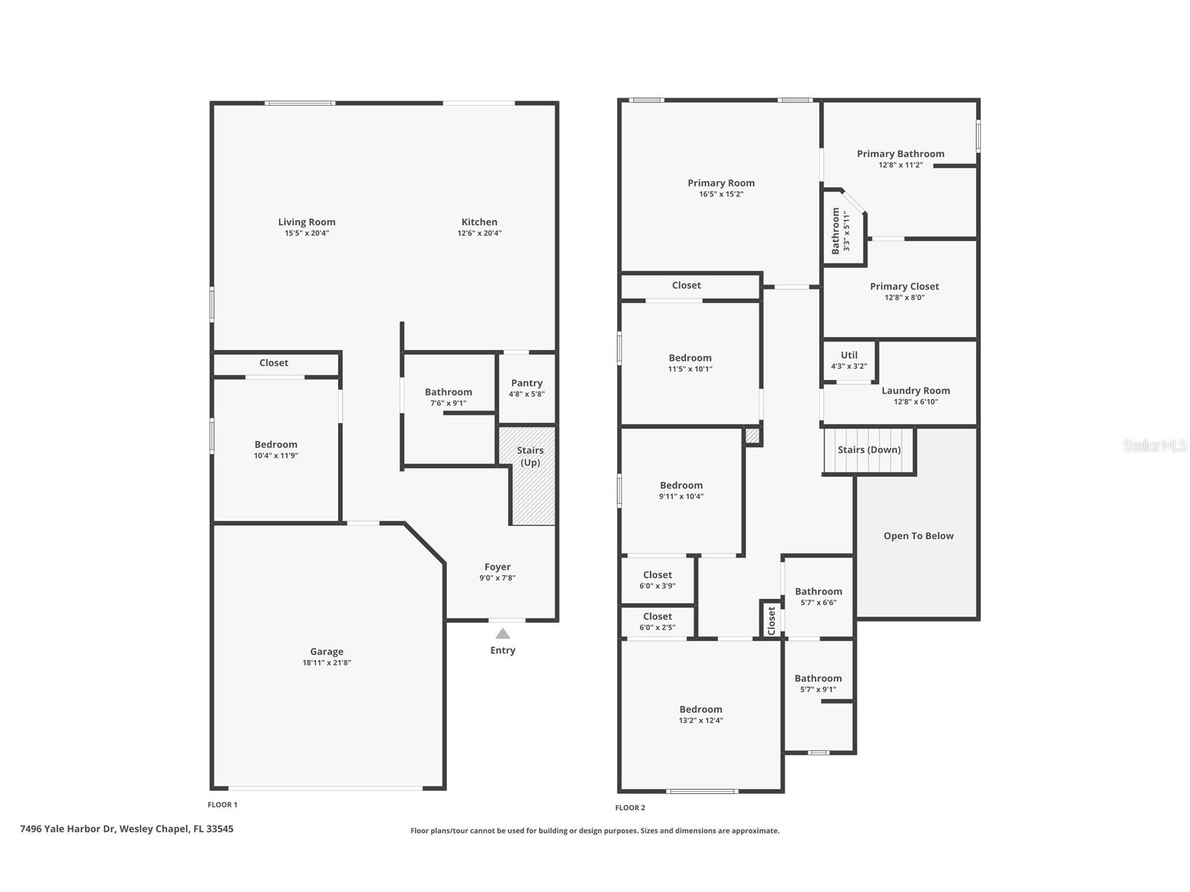
Bedrooms: 4
Bathrooms: 3
Lot Size: 0.11 Acres
Square Feet: 2,606 sq ft
Year Built: 2022
Garage: Yes
Stories: 2 Story
Construction: Block,Stucco
Subdivision: Epperson Ranch South Ph 3a
Builder: MI HOMES
Foundation: Slab
County: Pasco
School Information
Elementary: Wesley Chapel Elementary-Po
Middle: Thomas E Weightman Middle-Po
High: Wesley Chapel High-Po
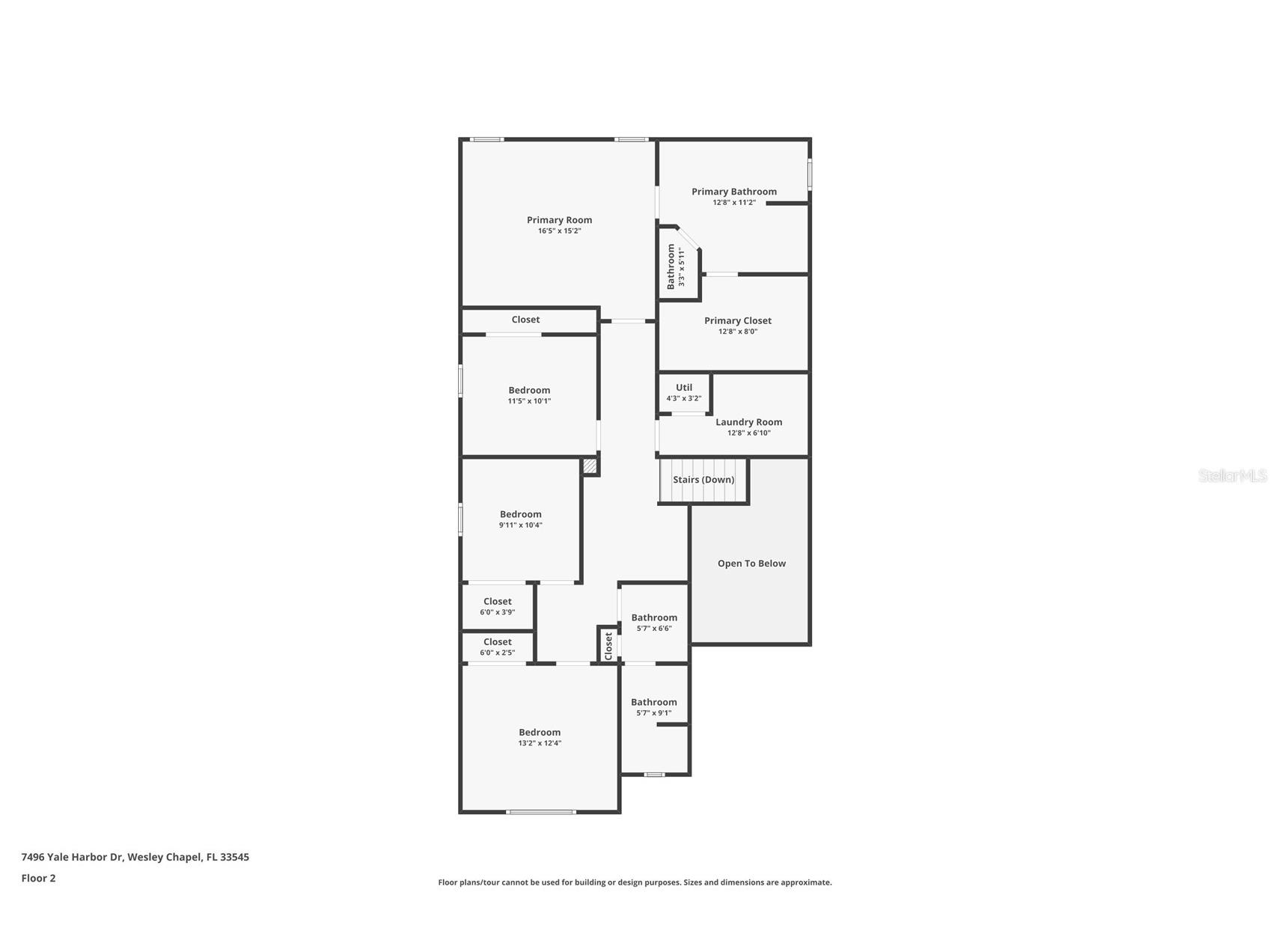
Room Information
Main Floor
Bedroom 2:
Living Room:
Kitchen:
Upper Floor
Bedroom 5:
Bedroom 4:
Bedroom 3:
Primary Bedroom:
Bathrooms
Full Baths: 3
Additonal Room Information
Laundry: Inside, Upper Level
Interior Features
Appliances: Exhaust Fan, Dishwasher, Disposal, Microwave, Range, Refrigerator
Flooring: Carpet,Tile
Additional Interior Features: Ceiling Fan(s), Walk-In Closet(s), High Ceilings, Living/Dining Room, Open Floorplan
Utilities
Water: Public
Sewer: Public Sewer
Other Utilities: Cable Available,Cable Connected,Electricity Available,Electricity Connected,High Speed Internet Available,Municipal Utilities,Sewer Available,Sewer Connected,Water Available,Water Connected
Cooling: Central Air, Ceiling Fan(s)
Heating: Central
Exterior / Lot Features
Attached Garage: Attached Garage
Garage Spaces: 2
Roof: Shingle
Pool: Salt Water, Screen Enclosure, In Ground, Community, Association, Heated
Additional Exterior/Lot Features: Sprinkler/Irrigation, Lighting
Community Features
Community Features: Dock, Sidewalks, Pool, Playground, Dog Park, Gated, Restaurant, Park, Golf Carts OK, Community Mailbox
Security Features: Gated Community
Association Amenities: Cable TV, Pool, Playground, Trail(s), Gated, Park
HOA Dues Include: Internet, Cable TV
Homeowners Association: Yes
HOA Dues: $247 / Quarterly
Driving Directions
I-75 NORTH, EXIT OVERPASS RD,. TURN RIGHT ON EPPERSON BLVD., LEFT ON YALE HARBOR DR. HOUSE WILL BE ON THE LEFT.
Financial Considerations
Terms: Cash,Conventional,FHA,VA Loan
Tax/Property ID: 34-25-20-0120-00000-0860
Tax Amount: 7337
Tax Year: 2024
A broker reciprocity listing courtesy: FRANK ALBERT REALTY
Based on information provided by Stellar MLS as distributed by the MLS GRID. Information from the Internet Data Exchange is provided exclusively for consumers’ personal, non-commercial use, and such information may not be used for any purpose other than to identify prospective properties consumers may be interested in purchasing. This data is deemed reliable but is not guaranteed to be accurate by Edina Realty, Inc., or by the MLS. Edina Realty, Inc., is not a multiple listing service (MLS), nor does it offer MLS access.
Copyright 2026 Stellar MLS as distributed by the MLS GRID. All Rights Reserved.
Payment Calculator
Interest rate and annual percentage rate (APR) are based on current market conditions, are for informational purposes only, are subject to change without notice and may be subject to pricing add-ons related to property type, loan amount, loan-to-value, credit score and other variables. Estimated closing costs used in the APR calculation are assumed to be paid by the borrower at closing. If the closing costs are financed, the loan, APR and payment amounts will be higher. If the down payment is less than 20%, mortgage insurance may be required and could increase the monthly payment and APR. Contact us for details. Additional loan programs may be available. Accuracy is not guaranteed, and all products may not be available in all borrower's geographical areas and are based on their individual situation. This is not a credit decision or a commitment to lend.
Sales History & Tax Summary for 7496 Yale Harbor Drive
Sales History
| Date | Price | |
|---|---|---|
| Currently not available. | ||
Tax Summary
| Tax Year | Estimated Market Value | Total Tax |
|---|---|---|
| Currently not available. | ||
Data powered by ATTOM Data Solutions. Copyright© 2026. Information deemed reliable but not guaranteed.
Schools
Schools nearby 7496 Yale Harbor Drive
| Schools in attendance boundaries | Grades | Distance | Rating |
|---|---|---|---|
| Loading... | |||
| Schools nearby | Grades | Distance | Rating |
|---|---|---|---|
| Loading... | |||
Data powered by ATTOM Data Solutions. Copyright© 2026. Information deemed reliable but not guaranteed.
The schools shown represent both the assigned schools and schools by distance based on local school and district attendance boundaries. Attendance boundaries change based on various factors and proximity does not guarantee enrollment eligibility. Please consult your real estate agent and/or the school district to confirm the schools this property is zoned to attend. Information is deemed reliable but not guaranteed.
SchoolDigger ® Rating
The SchoolDigger rating system is a 1-5 scale with 5 as the highest rating. SchoolDigger ranks schools based on test scores supplied by each state's Department of Education. They calculate an average standard score by normalizing and averaging each school's test scores across all tests and grades.
Coming soon properties will soon be on the market, but are not yet available for showings.