$382,990
75 Sawdust Lane Palm Coast, FL 32137
For Sale MLS# FC314639
4 beds 3 baths 2,273 sq ft Single Family
Details for 75 Sawdust Lane
MLS# FC314639
Description for 75 Sawdust Lane, Palm Coast, FL, 32137
Under Construction. Welcome to Sawmill Branch, your destination for new homes in Palm Coast, Florida. D.R. Horton is delighted to offer our Express Series homes in this beautiful Flagler County community. Located just minutes from local shopping and dining, Sawmill Branch provides residents with easy access to top-rated Flagler County schools, I-95, and nearby beaches. This convenient location ensures that you are never far from the essential amenities and attractions
Listing Information
Property Type: Residential, Single Family Residence
Status: Active
Bedrooms: 4
Bathrooms: 3
Lot Size: 0.13 Acres
Square Feet: 2,273 sq ft
Year Built: 2026
Garage: Yes
Stories: 1 Story
Construction: Wood Frame
Construction Display: New Construction
Subdivision: Sawmill Branch
Builder: DR Horton
Foundation: Slab
County: Flagler
Construction Status: Under Construction
School Information
Elementary: Belle Terre Elementary
Middle: Indian Trails Middle-Fc
High: Matanzas High
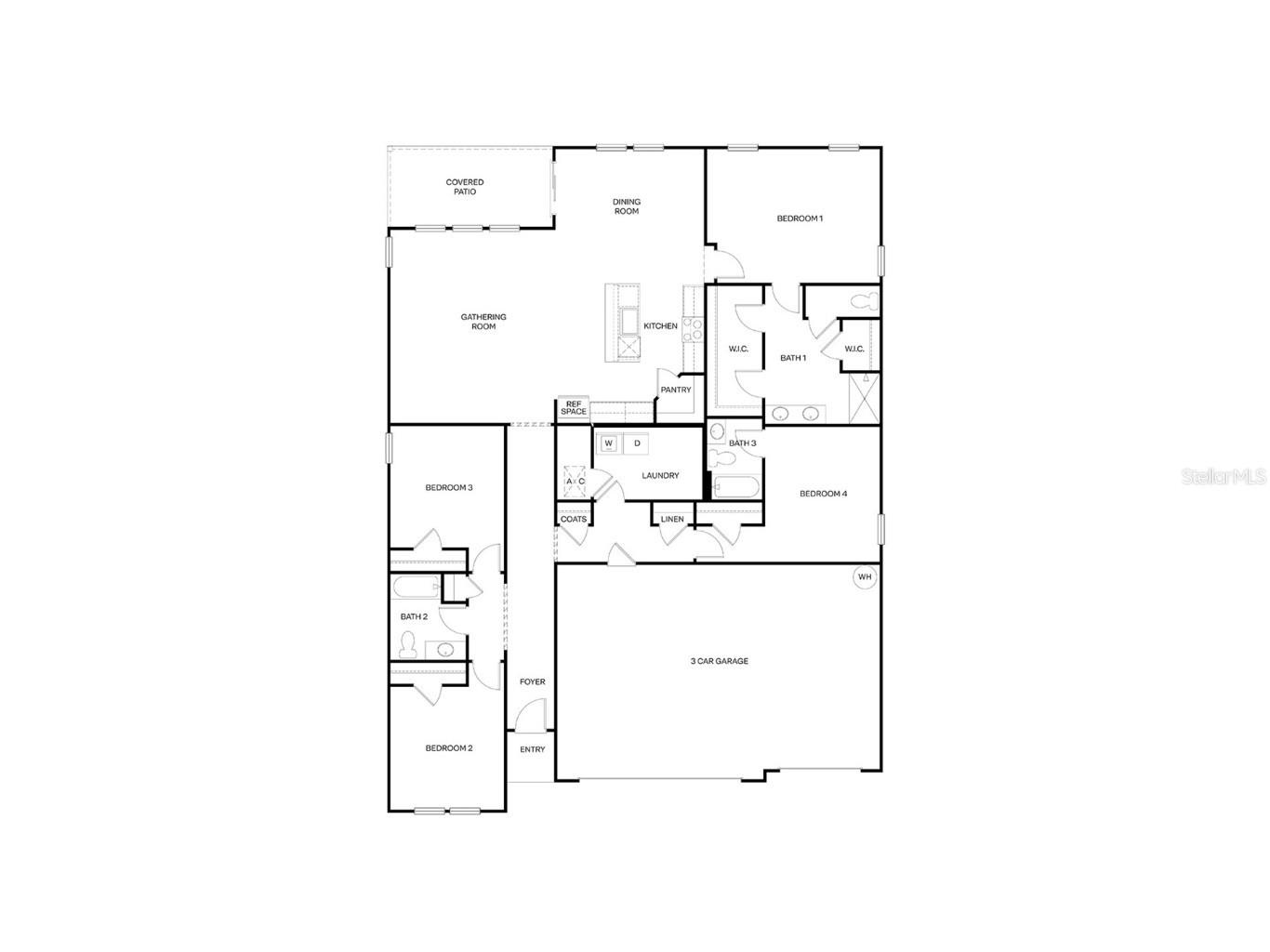
Room Information
Main Floor
Primary Bedroom: 14x12
Kitchen: 13x15
Great Room: 12x23
Bathrooms
Full Baths: 3
Additonal Room Information
Laundry: Inside, Laundry Room
Interior Features
Appliances: Electric Water Heater, Range, Dishwasher, Disposal, Microwave
Flooring: Carpet,Vinyl
Doors/Windows: Window Treatments
Additional Interior Features: Split Bedrooms, Walk-In Closet(s), Window Treatments, Living/Dining Room, Open Floorplan, Kitchen/Family Room Combo
Utilities
Sewer: Public Sewer
Other Utilities: Municipal Utilities,Water Not Available
Cooling: Central Air
Heating: Electric
Exterior / Lot Features
Attached Garage: Attached Garage
Garage Spaces: 2
Roof: Shingle
Pool: Association
Lot View: Pond,Water
Additional Exterior/Lot Features: Sprinkler/Irrigation
Community Features
Association Amenities: Pool, Playground, Clubhouse, Fitness Center
Homeowners Association: Yes
HOA Dues: $233 / Annually
Driving Directions
From I-95 take exit 298 toward Bunnell. Merge right onto US-1 S for approx. 4 miles. At the traffic circle, take the 1st exit onto Matanzas Woods Pkwy. Continue ahead to the next traffic circle and take the 1st exit at Matanzas Village Ave. Model Homes will be just ahead on the right at Summerwood Rd. S.
Financial Considerations
Terms: Cash,Conventional,FHA,VA Loan
Tax/Property ID: 21-10-30-5416-00000-3040
Tax Year: 2024
A broker reciprocity listing courtesy: DR HORTON REALTY INC.
Based on information provided by Stellar MLS as distributed by the MLS GRID. Information from the Internet Data Exchange is provided exclusively for consumers’ personal, non-commercial use, and such information may not be used for any purpose other than to identify prospective properties consumers may be interested in purchasing. This data is deemed reliable but is not guaranteed to be accurate by Edina Realty, Inc., or by the MLS. Edina Realty, Inc., is not a multiple listing service (MLS), nor does it offer MLS access.
Copyright 2025 Stellar MLS as distributed by the MLS GRID. All Rights Reserved.
Payment Calculator
Interest rate and annual percentage rate (APR) are based on current market conditions, are for informational purposes only, are subject to change without notice and may be subject to pricing add-ons related to property type, loan amount, loan-to-value, credit score and other variables. Estimated closing costs used in the APR calculation are assumed to be paid by the borrower at closing. If the closing costs are financed, the loan, APR and payment amounts will be higher. If the down payment is less than 20%, mortgage insurance may be required and could increase the monthly payment and APR. Contact us for details. Additional loan programs may be available. Accuracy is not guaranteed, and all products may not be available in all borrower's geographical areas and are based on their individual situation. This is not a credit decision or a commitment to lend.
Sales History & Tax Summary for 75 Sawdust Lane
Sales History
| Date | Price | Change |
|---|---|---|
| Currently not available. | ||
Tax Summary
| Tax Year | Estimated Market Value | Total Tax |
|---|---|---|
| Currently not available. | ||
Data powered by ATTOM Data Solutions. Copyright© 2025. Information deemed reliable but not guaranteed.
Schools
Schools nearby 75 Sawdust Lane
| Schools in attendance boundaries | Grades | Distance | Rating |
|---|---|---|---|
| Loading... | |||
| Schools nearby | Grades | Distance | Rating |
|---|---|---|---|
| Loading... | |||
Data powered by ATTOM Data Solutions. Copyright© 2025. Information deemed reliable but not guaranteed.
The schools shown represent both the assigned schools and schools by distance based on local school and district attendance boundaries. Attendance boundaries change based on various factors and proximity does not guarantee enrollment eligibility. Please consult your real estate agent and/or the school district to confirm the schools this property is zoned to attend. Information is deemed reliable but not guaranteed.
SchoolDigger ® Rating
The SchoolDigger rating system is a 1-5 scale with 5 as the highest rating. SchoolDigger ranks schools based on test scores supplied by each state's Department of Education. They calculate an average standard score by normalizing and averaging each school's test scores across all tests and grades.
Coming soon properties will soon be on the market, but are not yet available for showings.