$264,999
7500 Rocky Point Drive Hudson, FL 34667
For Sale MLS# TB8448013
3 beds 3 baths 1,876 sq ft Single Family
Details for 7500 Rocky Point Drive
MLS# TB8448013
Description for 7500 Rocky Point Drive, Hudson, FL, 34667
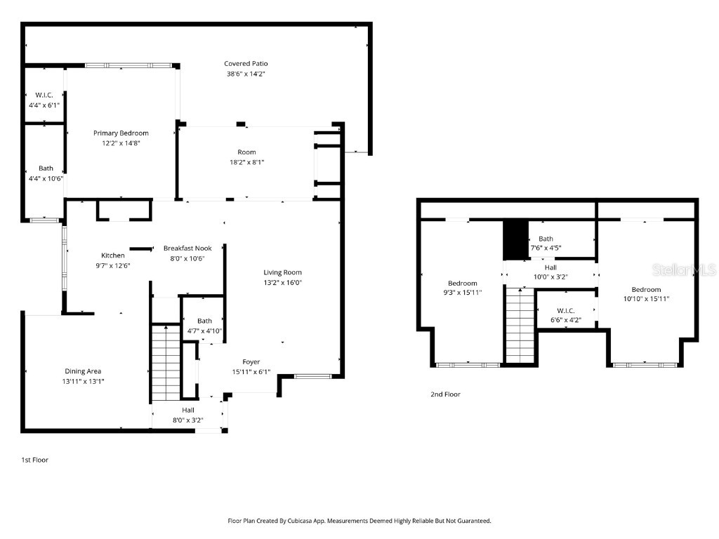
Welcome to a beautifully designed Mediterranean-style two-story patio home nestled at the end of a quiet cul-de-sac in the desirable Beacon Woods Village community of Hudson. With approximately 1,876 square feet of living space, this 3-bed, 2½-bath residence features a spacious 2-car garage, trailer/boat parking capacity, and an expanded driveway for additional vehicles. A gated wrought-iron front courtyard creates an inviting sense of privacy as you approach the double-door entry. Inside, the open floorplan is filled with natural light from multiple glass doors and large windows that connect the living areas with the outdoors. The main level includes a full-sized primary suite with its own bathroom and walk-in closet, offering convenient one-level living. Upstairs, two generously sized bedrooms and a full bathroom form a separate upper-level wing ideal for guests or additional living space. Outdoor living is a highlight here: three sets of sliding doors lead to a screened paver patio, and both front and rear courtyards provide beautifully enclosed spaces perfect for dining, relaxing, or entertaining. The home sits on a low-maintenance corner lot in a quiet cul-de-sac and enjoys access to community amenities including a clubhouse, pool, tennis courts, basketball courts, and nearby public golf. Combining privacy, space, and an adaptable layout, this Hudson home offers excellent comfort and lifestyle appeal in the 34667 area. Property is being sold “AS-IS” with right to inspect. It is the buyers and buyer’s agent responsibility to verify all room measurements, utilities info, lot size, schools zoning, building addition permits, building materials, along with all property information in this listing. All room measurements and dimensions are estimates.
Listing Information
Property Type: Residential, Single Family Residence
Status: Active
Bedrooms: 3
Bathrooms: 3
Lot Size: 0.09 Acres
Square Feet: 1,876 sq ft
Year Built: 1975
Garage: Yes
Stories: 2 Story
Construction: Block,Stucco
Subdivision: Beacon Woods Village
Foundation: Slab
County: Pasco
School Information
Elementary: Gulf Highland Elementary
Middle: Hudson Middle-Po
High: Fivay High-Po
Room Information
Main Floor
Primary Bathroom: 5x10
Primary Bedroom: 11x15
Florida Room: 8x17
Living Room: 10x12
Kitchen: 8x8
Family Room: 13x13
Dining Room: 9x10
Living Room: 12x19
Bathrooms
Full Baths: 2
1/2 Baths: 1
Additonal Room Information
Laundry: In Garage
Interior Features
Appliances: Electric Water Heater, Microwave, Range, Refrigerator, Washer, Dishwasher, Disposal, Dryer
Flooring: Carpet,Ceramic Tile
Doors/Windows: Blinds
Additional Interior Features: Split Bedrooms, Walk-In Closet(s), Attic, Ceiling Fan(s), Living/Dining Room, Main Level Primary, Separate/Formal Dining Room, Open Floorplan
Utilities
Water: Public
Sewer: Public Sewer
Other Utilities: Cable Available,Electricity Connected,Municipal Utilities,Sewer Connected,Water Connected
Cooling: Ceiling Fan(s), Central Air
Heating: Central, Electric
Exterior / Lot Features
Attached Garage: Attached Garage
Garage Spaces: 2
Parking Description: Garage, driveway, on street, Garage Door Opener, Oversized, Parking Pad, Boat, Guest
Roof: Shingle
Pool: Association, Community
Fencing: Masonry, fenced
Additional Exterior/Lot Features: Front Porch, Rear Porch, Patio, Screened, Corner Lot, Landscaped, Cul-de-Sac, Dead End, Outside City Limits
Community Features
Community Features: Street Lights, Pool, Tennis Court(s)
Security Features: Smoke Detector(s)
Association Amenities: Tennis Court(s), Pool, Basketball Court, Playground, Clubhouse, Fitness Center
HOA Dues Include: Pool(s)
Homeowners Association: Yes
HOA Dues: $340 / Annually
Driving Directions
Driving from Tampa to 7500 Rocky Point Dr in Hudson is straightforward and mostly highway travel. Begin by heading north on I-275 and merging onto the FL-589 Veterans Expressway, which becomes the Suncoast Parkway. Continue north for about 25–30 miles until you reach Exit 27 for FL-52, then turn left to head west. Follow FL-52 for roughly six miles until you reach US-19, where you’ll turn right and continue north for about two miles. From there, turn left onto Beacon Woods Dr, follow it to Split Rail Ln, and then continue as the road curves into Rocky Point Dr. The home sits at the end of the quiet cul-de-sac on your left.
Financial Considerations
Terms: Cash,Conventional
Tax/Property ID: 03-25-16-051K-00000-5080
Tax Amount: 2606
Tax Year: 2024
A broker reciprocity listing courtesy: SEFAIR INVESTMENTS INC
Based on information provided by Stellar MLS as distributed by the MLS GRID. Information from the Internet Data Exchange is provided exclusively for consumers’ personal, non-commercial use, and such information may not be used for any purpose other than to identify prospective properties consumers may be interested in purchasing. This data is deemed reliable but is not guaranteed to be accurate by Edina Realty, Inc., or by the MLS. Edina Realty, Inc., is not a multiple listing service (MLS), nor does it offer MLS access.
Copyright 2025 Stellar MLS as distributed by the MLS GRID. All Rights Reserved.
Payment Calculator
Interest rate and annual percentage rate (APR) are based on current market conditions, are for informational purposes only, are subject to change without notice and may be subject to pricing add-ons related to property type, loan amount, loan-to-value, credit score and other variables. Estimated closing costs used in the APR calculation are assumed to be paid by the borrower at closing. If the closing costs are financed, the loan, APR and payment amounts will be higher. If the down payment is less than 20%, mortgage insurance may be required and could increase the monthly payment and APR. Contact us for details. Additional loan programs may be available. Accuracy is not guaranteed, and all products may not be available in all borrower's geographical areas and are based on their individual situation. This is not a credit decision or a commitment to lend.
Sales History & Tax Summary for 7500 Rocky Point Drive
Sales History
| Date | Price | Change |
|---|---|---|
| Currently not available. | ||
Tax Summary
| Tax Year | Estimated Market Value | Total Tax |
|---|---|---|
| Currently not available. | ||
Data powered by ATTOM Data Solutions. Copyright© 2025. Information deemed reliable but not guaranteed.
Schools
Schools nearby 7500 Rocky Point Drive
| Schools in attendance boundaries | Grades | Distance | Rating |
|---|---|---|---|
| Loading... | |||
| Schools nearby | Grades | Distance | Rating |
|---|---|---|---|
| Loading... | |||
Data powered by ATTOM Data Solutions. Copyright© 2025. Information deemed reliable but not guaranteed.
The schools shown represent both the assigned schools and schools by distance based on local school and district attendance boundaries. Attendance boundaries change based on various factors and proximity does not guarantee enrollment eligibility. Please consult your real estate agent and/or the school district to confirm the schools this property is zoned to attend. Information is deemed reliable but not guaranteed.
SchoolDigger ® Rating
The SchoolDigger rating system is a 1-5 scale with 5 as the highest rating. SchoolDigger ranks schools based on test scores supplied by each state's Department of Education. They calculate an average standard score by normalizing and averaging each school's test scores across all tests and grades.
Coming soon properties will soon be on the market, but are not yet available for showings.