7505 Pitch Pine Circle #119 Tampa, FL 33617
For Sale MLS# A4666550
2 beds 1 baths 1,085 sq ft Condo
Details for 7505 Pitch Pine Circle #119
MLS# A4666550
Description for 7505 Pitch Pine Circle #119, Tampa, FL, 33617
Rarely Available FIRST FLOOR UNIT !! Affordable Living at its Finest ! This spacious All Ages Condo is perfect as a primary residence, vacation home, OR as a potentially great rental investment ! NEW ROOF in 2022 ! This 2 bedroom, 1 bathroom first floor unit has a fantastic layout and many great updates not seen at this price point. The kitchen has been remodeled and features white shaker cabinets and beautiful granite countertops. The main bathroom has also been updated with a walk in tile shower and dual vanity with granite countertops as well. The unit laundry closet gives you the convenience that you need in your every day life. The home has been freshly painted throughout and shows how well it's been cared for throughout the years. The community itself features a clubhouse and two pools. This condo is minutes away from interstates I-275/I-75/I-4, Busch Gardens, Adventure Island, USF, Moffitt Cancer Center, Museum of Science & Industry, Hard Rock Casino, MidFlorida Amphitheatre, Fairgrounds, restaurants, shopping, and schools making it the perfect home base for anything you could ever want in your life.
Listing Information
Property Type: Residential, Condominium
Status: Active
Bedrooms: 2
Bathrooms: 1
Square Feet: 1,085 sq ft
Year Built: 1981
Stories: 1 Story
Construction: Block,Stucco,Wood Frame
Subdivision: Place One A Condo
Foundation: Slab
County: Hillsborough
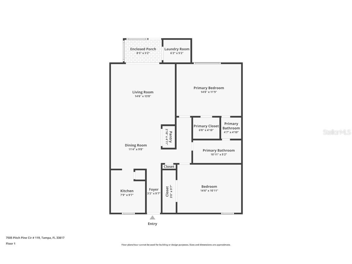
Room Information
Main Floor
Porch: 5x9
Bedroom 2: 11x15
Living Room: 14x15
Kitchen: 10x8
Primary Bathroom: 6x11
Primary Bedroom: 12x15
Bathrooms
Full Baths: 1
Additonal Room Information
Laundry: Laundry Closet
Interior Features
Appliances: Electric Water Heater, Dishwasher, Microwave, Range, Refrigerator
Flooring: Laminate,Tile
Additional Interior Features: Living/Dining Room, Stone Counters, Main Level Primary
Utilities
Water: Public
Sewer: Public Sewer
Other Utilities: Cable Connected,Electricity Connected,High Speed Internet Available,Sewer Connected,Water Connected
Cooling: Central Air
Heating: Central, Electric
Exterior / Lot Features
Roof: Shingle
Pool: Community
Community Features
Community Features: Sidewalks, Pool, Playground, Clubhouse, Community Mailbox
HOA Dues Include: Recreation Facilities, Trash, Water, Insurance, Sewer, Maintenance Structure, Pool(s), Reserve Fund
Homeowners Association: Yes
HOA Dues: $554 / Monthly
Driving Directions
Heading North on N 56th Street, Turn Left into the Place One Community, Turn Left onto Pitch Pine Circle and follow around until you see building 7505 on your right.
Financial Considerations
Terms: Cash
Tax/Property ID: U-27-28-19-1KP-000000-00119.0
Tax Amount: 73.42
Tax Year: 2024
A broker reciprocity listing courtesy: EXP REALTY LLC
Based on information provided by Stellar MLS as distributed by the MLS GRID. Information from the Internet Data Exchange is provided exclusively for consumers’ personal, non-commercial use, and such information may not be used for any purpose other than to identify prospective properties consumers may be interested in purchasing. This data is deemed reliable but is not guaranteed to be accurate by Edina Realty, Inc., or by the MLS. Edina Realty, Inc., is not a multiple listing service (MLS), nor does it offer MLS access.
Copyright 2026 Stellar MLS as distributed by the MLS GRID. All Rights Reserved.
Payment Calculator
Interest rate and annual percentage rate (APR) are based on current market conditions, are for informational purposes only, are subject to change without notice and may be subject to pricing add-ons related to property type, loan amount, loan-to-value, credit score and other variables. Estimated closing costs used in the APR calculation are assumed to be paid by the borrower at closing. If the closing costs are financed, the loan, APR and payment amounts will be higher. If the down payment is less than 20%, mortgage insurance may be required and could increase the monthly payment and APR. Contact us for details. Additional loan programs may be available. Accuracy is not guaranteed, and all products may not be available in all borrower's geographical areas and are based on their individual situation. This is not a credit decision or a commitment to lend.
Sales History & Tax Summary for 7505 Pitch Pine Circle #119
Sales History
| Date | Price | |
|---|---|---|
| Currently not available. | ||
Tax Summary
| Tax Year | Estimated Market Value | Total Tax |
|---|---|---|
| Currently not available. | ||
Data powered by ATTOM Data Solutions. Copyright© 2026. Information deemed reliable but not guaranteed.
Schools
Schools nearby 7505 Pitch Pine Circle #119
| Schools in attendance boundaries | Grades | Distance | Rating |
|---|---|---|---|
| Loading... | |||
| Schools nearby | Grades | Distance | Rating |
|---|---|---|---|
| Loading... | |||
Data powered by ATTOM Data Solutions. Copyright© 2026. Information deemed reliable but not guaranteed.
The schools shown represent both the assigned schools and schools by distance based on local school and district attendance boundaries. Attendance boundaries change based on various factors and proximity does not guarantee enrollment eligibility. Please consult your real estate agent and/or the school district to confirm the schools this property is zoned to attend. Information is deemed reliable but not guaranteed.
SchoolDigger ® Rating
The SchoolDigger rating system is a 1-5 scale with 5 as the highest rating. SchoolDigger ranks schools based on test scores supplied by each state's Department of Education. They calculate an average standard score by normalizing and averaging each school's test scores across all tests and grades.
Coming soon properties will soon be on the market, but are not yet available for showings.