7557 Lotus Lane Lino Lakes, MN 55038
For Sale MLS# 7048123
4 beds 3 baths 2,280 sq ft Single Family
Details for 7557 Lotus Lane
MLS# 7048123
Description for 7557 Lotus Lane, Lino Lakes, MN, 55038
This home is under construction and available for a July closing! This new two-story home features a modern layout with a finished lower level, providing extra living space and flexibility to suit your lifestyle. The main level features vaulted ceilings that enhance the open-concept Great Room and dining area, while the stylish kitchen boasts a center island and a versatile flex room, ideal for a home office or playroom. Upstairs, you’ll find a luxurious owner’s suite along with two secondary bedrooms, while the lower level includes a fourth bedroom perfect for guests and additional space for entertaining or relaxation. Located just north of Minneapolis, this community combines peaceful suburban living with easy access to I-35 for convenient commutes downtown. Enjoy great neighborhood amenities, including a community center, scenic greenbelt, and nearby lakes and parks for outdoor recreation.
Listing Information
Property Type: Residential, Single Family
Status: Active
Bedrooms: 4
Bathrooms: 3
Lot Size: 0.21 Acres
Square Feet: 2,280 sq ft
Year Built: 2026
Foundation: 1,572 sq ft
Garage: Yes
Stories: Modified Two Story
Date Available: 2/7/2026
Construction Display: New Construction
Completion date: 2026-07-04T05:00:00Z
Subdivision: Watermark
Builder: LENNAR
County: Anoka
Days On Market: 27
Construction Status: Under Construc/Spec Homes
School Information
District: 624 - White Bear Lake
Room Information
Main Floor
Bedroom 1: 14x14
Bedroom 2: 12x11
Bedroom 3: 13x10
Dining Room: 16x18
Flex Room: 10x11
Kitchen: 10x12
Living Room: 16x13
Lower Floor
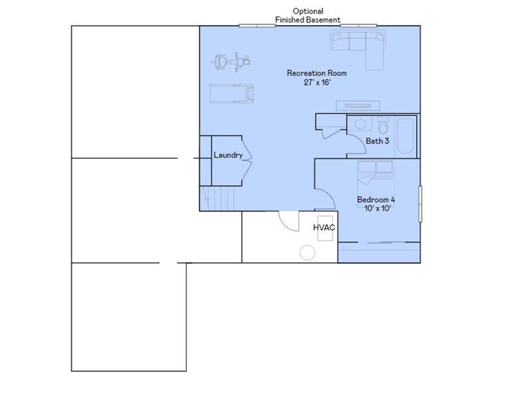
Bedroom 4: 10x10
Recreation Room: 27x16
Bathrooms
Full Baths: 2
3/4 Baths: 1
Additonal Room Information
Family: 2 or More,Family Room,Great Room,Lower Level,Main Level
Dining: Eat In Kitchen,Informal Dining Room,Living/Dining Room
Laundry: In Basement, Washer Hookup, Gas Dryer Hookup, Lower Level
Bath Description: Double Sink,3/4 Primary,Full Basement,Main Floor Full Bath
Interior Features
Square Footage above: 1,582 sq ft
Square Footage below: 698 sq ft
Appliances: Stainless Steel Appliances, Tankless Water Heater, Dishwasher, Disposal, Air-To-Air Exchanger, Other, Range, Refrigerator, Furnace Humidifier, Microwave
Basement: Finished (Livable)
Fireplaces: 1, Living Room, Family Room, Electric
Additional Interior Features: Kitchen Window, Paneled Doors, 3 BR on One Level, Main Floor Bedroom, Vaulted Ceiling(s), Walk-In Closet, Washer/Dryer Hookup, Kitchen Center Island, Main Floor Primary
Utilities
Water: City Water/Connected
Sewer: City Sewer - In Street
Cooling: Central
Heating: Fireplace, Other, Natural Gas
Exterior / Lot Features
Attached Garage: Attached Garage
Garage Spaces: 3
Parking Description: Garage Door Opener, Attached Garage, Driveway - Asphalt, Garage Sq Ft - 631.0
Exterior: Brick/Stone, Other, Vinyl
Roof: Age 8 Years or Less, Asphalt Shingles
Lot Dimensions: TBD
Zoning: Other
Additional Exterior/Lot Features: Porch, In-Ground Sprinkler, Sod Included in Price, Underground Utilities, Road Frontage - Paved Streets, Curbs
Community Features
Community Features: Club House, Play Area, Other, Exercise Room
Association Amenities: Trails, Other
HOA Dues Include: Other, Shared Amenities, Professional Mgmt
Homeowners Association: Yes
Association Name: Associa
HOA Dues: $160 / Quarterly
Driving Directions
From the intersection of 35E and County Rd 14 (Main Street), go W on County Rd 14 to 20th Ave N. Take a right on 20th Ave N then a right on Watermark Way, left on Forest Lane and right on Norway Lane.
Financial Considerations
Tax/Property ID: TBD
Tax Year: 2026
HomeStead Description: Non-Homesteaded
A broker reciprocity listing courtesy: Lennar Sales Corp
The data relating to real estate for sale on this web site comes in part from the Broker Reciprocity℠ Program of the Regional Multiple Listing Service of Minnesota, Inc. Real estate listings held by brokerage firms other than Edina Realty, Inc. are marked with the Broker Reciprocity℠ logo or the Broker Reciprocity℠ thumbnail and detailed information about them includes the name of the listing brokers. Edina Realty, Inc. is not a Multiple Listing Service (MLS), nor does it offer MLS access. This website is a service of Edina Realty, Inc., a broker Participant of the Regional Multiple Listing Service of Minnesota, Inc. IDX information is provided exclusively for consumers personal, non-commercial use and may not be used for any purpose other than to identify prospective properties consumers may be interested in purchasing. Open House information is subject to change without notice. Information deemed reliable but not guaranteed.
Copyright 2026 Regional Multiple Listing Service of Minnesota, Inc. All Rights Reserved.
Payment Calculator
Interest rate and annual percentage rate (APR) are based on current market conditions, are for informational purposes only, are subject to change without notice and may be subject to pricing add-ons related to property type, loan amount, loan-to-value, credit score and other variables. Estimated closing costs used in the APR calculation are assumed to be paid by the borrower at closing. If the closing costs are financed, the loan, APR and payment amounts will be higher. If the down payment is less than 20%, mortgage insurance may be required and could increase the monthly payment and APR. Contact us for details. Additional loan programs may be available. Accuracy is not guaranteed, and all products may not be available in all borrower's geographical areas and are based on their individual situation. This is not a credit decision or a commitment to lend.
Sales History & Tax Summary for 7557 Lotus Lane
Sales History
| Date | Price | |
|---|---|---|
| Currently not available. | ||
Tax Summary
| Tax Year | Estimated Market Value | Total Tax |
|---|---|---|
| Currently not available. | ||
Data powered by ATTOM Data Solutions. Copyright© 2026. Information deemed reliable but not guaranteed.
Schools
Schools nearby 7557 Lotus Lane
| Schools in attendance boundaries | Grades | Distance | Rating |
|---|---|---|---|
| Loading... | |||
| Schools nearby | Grades | Distance | Rating |
|---|---|---|---|
| Loading... | |||
Data powered by ATTOM Data Solutions. Copyright© 2026. Information deemed reliable but not guaranteed.
The schools shown represent both the assigned schools and schools by distance based on local school and district attendance boundaries. Attendance boundaries change based on various factors and proximity does not guarantee enrollment eligibility. Please consult your real estate agent and/or the school district to confirm the schools this property is zoned to attend. Information is deemed reliable but not guaranteed.
SchoolDigger ® Rating
The SchoolDigger rating system is a 1-5 scale with 5 as the highest rating. SchoolDigger ranks schools based on test scores supplied by each state's Department of Education. They calculate an average standard score by normalizing and averaging each school's test scores across all tests and grades.
Coming soon properties will soon be on the market, but are not yet available for showings.