$399,990
Off-Market Date: 01/31/20267559 Sea Oak Court Parrish, FL 34219 - SEAIRE LAGOON
Pending MLS# G5107551
3 beds 3 baths 2,043 sq ft Townhouse/Twinhome
Details for 7559 Sea Oak Court
MLS# G5107551
Description for 7559 Sea Oak Court, Parrish, FL, 34219 - SEAIRE LAGOON
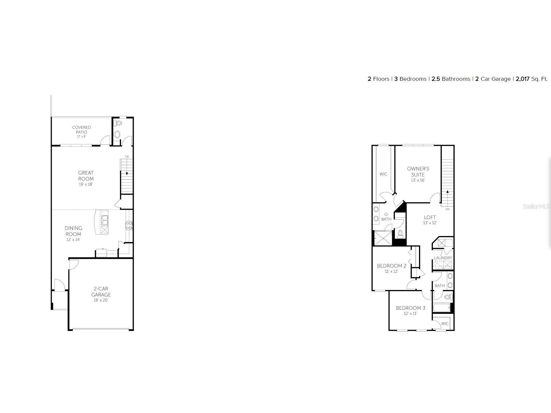
One or more photo(s) has been virtually staged. Pre-Construction. To be built. Sample Images of the Coral Townhome have an open-concept living. Design Included!!! The Standard features include 9'4 Ceilings, 8' Entry Door, Ceramic Tile flooring in the Kitchen, Baths, Foyer, Cafe, and Laundry. In the Kitchen, you also get Quartz countertops, Whirlpool Stainless Steel Dishwasher, Range, and Microwave vented to the exterior, 42" Upper Cabinets, and under Sink Garbage Disposal. More features are the R-38 Energy Saving Attic Insulation, Wifi ready Garage Door Opener, and 50 Gallon Hot Water Heater, Smoke, and Carbon Monoxide Detectors. Stop in to get the full list, too many to mention. The community Seaire has a 4.5-acre Lagoon, which is the heart of this community, offering beach areas, private cabanas, water obstacle courses, a Water slide, Covered Shady areas to relax with the family, and a Full-service Bar to get your favorite beverage. You have quick access to I-75 and 275 for trips to the area beaches, attractions, and restaurants.
Listing Information
Property Type: Residential, Townhouse
Status: Pending
Bedrooms: 3
Bathrooms: 3
Lot Size: 0.04 Acres
Square Feet: 2,043 sq ft
Year Built: 2026
Garage: Yes
Stories: 2 Story
Construction: Wood Frame
Construction Display: New Construction
Subdivision: Seaire
Builder: DREAM FINDERS HOMES
Foundation: Slab
County: Manatee
School Information
Elementary: Barbara A. Harvey Elementary
Middle: Buffalo Creek Middle
High: Palmetto High
Room Information
Main Floor
Porch: 8x17
Kitchen: 10x10
Dining Room: 14x12
Living Room: 18x19
Upper Floor
Loft: 16x12.9
Bedroom 3: 14x12
Bedroom 2: 14x11
Primary Bathroom:
Primary Bedroom: 16x13
Bathrooms
Full Baths: 2
1/2 Baths: 1
Additonal Room Information
Laundry: Inside, Laundry Closet, Upper Level
Interior Features
Appliances: Range, Microwave, Dishwasher, Disposal
Flooring: Carpet,Tile
Doors/Windows: Double Pane Windows
Additional Interior Features: Upper Level Primary, Stone Counters, Open Floorplan, Split Bedrooms
Utilities
Water: Public
Sewer: Public Sewer
Other Utilities: Cable Available,Electricity Available,Natural Gas Available,High Speed Internet Available,Municipal Utilities
Cooling: Central Air
Heating: Heat Pump, Central
Exterior / Lot Features
Attached Garage: Attached Garage
Garage Spaces: 2
Parking Description: Garage, driveway, Garage Door Opener
Roof: Shingle
Pool: Community, In Ground
Lot Dimensions: 20X110
Additional Exterior/Lot Features: Covered, Patio, Level, Cleared, Flat, City Lot
Waterfront Details
Standard Water Body: SEAIRE LAGOON
Community Features
Community Features: Sidewalks, Pool, Playground, Water Access, Community Mailbox
Security Features: Smoke Detector(s)
Association Amenities: Playground
HOA Dues Include: Pool(s), Other
Homeowners Association: Yes
HOA Dues: $250 / Monthly
Driving Directions
Take I 75 to Moccasin Wallow Rd then turn on Parrish Bay Drive left on Gulf Haven Drive follow to 9932 Gulf Haven Drive.
Financial Considerations
Terms: Cash,Conventional,FHA,Other,VA Loan
Tax/Property ID: 650949909
Tax Year: 2025
A broker reciprocity listing courtesy: OLYMPUS EXECUTIVE REALTY INC
Based on information provided by Stellar MLS as distributed by the MLS GRID. Information from the Internet Data Exchange is provided exclusively for consumers’ personal, non-commercial use, and such information may not be used for any purpose other than to identify prospective properties consumers may be interested in purchasing. This data is deemed reliable but is not guaranteed to be accurate by Edina Realty, Inc., or by the MLS. Edina Realty, Inc., is not a multiple listing service (MLS), nor does it offer MLS access.
Copyright 2026 Stellar MLS as distributed by the MLS GRID. All Rights Reserved.
Sales History & Tax Summary for 7559 Sea Oak Court
Sales History
| Date | Price | |
|---|---|---|
| Currently not available. | ||
Tax Summary
| Tax Year | Estimated Market Value | Total Tax |
|---|---|---|
| Currently not available. | ||
Data powered by ATTOM Data Solutions. Copyright© 2026. Information deemed reliable but not guaranteed.
Schools
Schools nearby 7559 Sea Oak Court
| Schools in attendance boundaries | Grades | Distance | Rating |
|---|---|---|---|
| Loading... | |||
| Schools nearby | Grades | Distance | Rating |
|---|---|---|---|
| Loading... | |||
Data powered by ATTOM Data Solutions. Copyright© 2026. Information deemed reliable but not guaranteed.
The schools shown represent both the assigned schools and schools by distance based on local school and district attendance boundaries. Attendance boundaries change based on various factors and proximity does not guarantee enrollment eligibility. Please consult your real estate agent and/or the school district to confirm the schools this property is zoned to attend. Information is deemed reliable but not guaranteed.
SchoolDigger ® Rating
The SchoolDigger rating system is a 1-5 scale with 5 as the highest rating. SchoolDigger ranks schools based on test scores supplied by each state's Department of Education. They calculate an average standard score by normalizing and averaging each school's test scores across all tests and grades.
Coming soon properties will soon be on the market, but are not yet available for showings.