7586 Sea Mist Drive Port Charlotte, FL 33981
For Sale MLS# D6144160
2 beds 2 baths 1,462 sq ft Single Family
Details for 7586 Sea Mist Drive
MLS# D6144160
Description for 7586 Sea Mist Drive, Port Charlotte, FL, 33981
Beachy, Quiet & Private Coastal Retreat on a Double Lot! This charming, move-in-ready home offers the perfect blend of coastal charm and modern updates. Nestled on a double lot in an X flood zone for added peace of mind, this beautifully maintained property partially fenced, provides a true sense of privacy and relaxation. Step outside to your own backyard oasis featuring mature tropical landscaping, a firepit area, two newer sheds (2021 & 2022), and a sparkling screened-in pool, ideal for year-round enjoyment. Designed for seamless indoor-outdoor living, the home boasts an inviting covered patio overlooking the pool and sliding glass doors that fill the interior with natural light. Inside, the oversized living room welcomes you with a large picture window and plantation shutters, creating a warm, coastal ambiance. The updated kitchen showcases modern finishes and a large pantry, while both bathrooms have been beautifully renovated with modern finishes and a fresh, beachy feel. Recent upgrades include a new roof and AC (2023), updated plumbing and electrical, and hurricane shutters ensuring comfort and worry-free living. A screened lanai adds yet another relaxing space to enjoy the laid-back Florida lifestyle. Perfectly located near the pristine beaches of Englewood, as well as golf courses, shopping, dining, and entertainment, this coastal gem is ideal for those seeking a private retreat or the ultimate space for entertaining. With timeless style, thoughtful updates, and an exceptional location, this beautiful home won’t last long!
Listing Information
Property Type: Residential, Single Family Residence
Status: Active
Bedrooms: 2
Bathrooms: 2
Lot Size: 0.46 Acres
Square Feet: 1,462 sq ft
Year Built: 1983
Garage: Yes
Stories: 1 Story
Construction: Block,Stucco
Construction Display: New Construction
Subdivision: Port Charlotte Sec 065
Foundation: Slab
County: Charlotte
Construction Status: New Construction
School Information
Elementary: Myakka River Elementary
Middle: L.A. Ainger Middle
High: Lemon Bay High
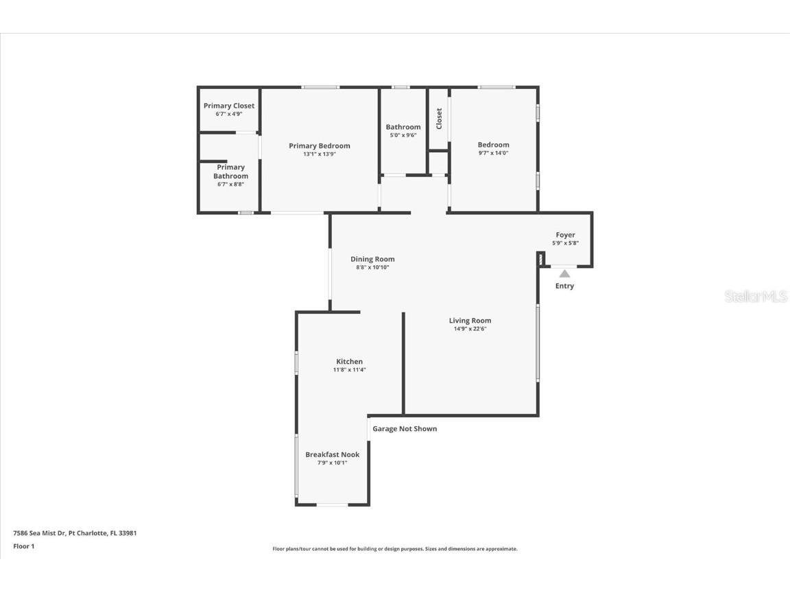
Room Information
Main Floor
Kitchen: 24x10
Laundry:
Bathroom 2:
Bedroom 2: 9x13
Primary Bathroom:
Primary Bedroom: 14x13
Dining Room: 10x8
Living Room: 22x14
Bathrooms
Full Baths: 2
Additonal Room Information
Laundry: Laundry Room
Interior Features
Appliances: Washer, Dishwasher, Dryer, Microwave, Range, Refrigerator
Flooring: Tile
Additional Interior Features: Ceiling Fan(s), Vaulted Ceiling(s)
Utilities
Water: Public
Sewer: Septic Tank
Other Utilities: Electricity Connected,Water Connected
Cooling: Ceiling Fan(s), Central Air
Heating: Electric
Exterior / Lot Features
Attached Garage: Attached Garage
Garage Spaces: 1
Roof: Shingle
Pool: Gunite, In Ground
Lot View: Pool
Additional Exterior/Lot Features: Lighting, Storm/Security Shutters, Screened, Landscaped, Oversized Lot
Out Buildings: Shed(s)
Driving Directions
From FL 776, turn right onto Sunnybrook Blvd, turn left onto Gulfstream Blvd, turn left on to Sea Mist, Property will be on the right
Financial Considerations
Terms: Cash,Conventional,FHA,VA Loan
Tax/Property ID: 412012377003
Tax Amount: 3790.2
Tax Year: 2024
A broker reciprocity listing courtesy: PARADISE EXCLUSIVE INC
Based on information provided by Stellar MLS as distributed by the MLS GRID. Information from the Internet Data Exchange is provided exclusively for consumers’ personal, non-commercial use, and such information may not be used for any purpose other than to identify prospective properties consumers may be interested in purchasing. This data is deemed reliable but is not guaranteed to be accurate by Edina Realty, Inc., or by the MLS. Edina Realty, Inc., is not a multiple listing service (MLS), nor does it offer MLS access.
Copyright 2026 Stellar MLS as distributed by the MLS GRID. All Rights Reserved.
Payment Calculator
Interest rate and annual percentage rate (APR) are based on current market conditions, are for informational purposes only, are subject to change without notice and may be subject to pricing add-ons related to property type, loan amount, loan-to-value, credit score and other variables. Estimated closing costs used in the APR calculation are assumed to be paid by the borrower at closing. If the closing costs are financed, the loan, APR and payment amounts will be higher. If the down payment is less than 20%, mortgage insurance may be required and could increase the monthly payment and APR. Contact us for details. Additional loan programs may be available. Accuracy is not guaranteed, and all products may not be available in all borrower's geographical areas and are based on their individual situation. This is not a credit decision or a commitment to lend.
Sales History & Tax Summary for 7586 Sea Mist Drive
Sales History
| Date | Price | Change |
|---|---|---|
| Currently not available. | ||
Tax Summary
| Tax Year | Estimated Market Value | Total Tax |
|---|---|---|
| Currently not available. | ||
Data powered by ATTOM Data Solutions. Copyright© 2026. Information deemed reliable but not guaranteed.
Schools
Schools nearby 7586 Sea Mist Drive
| Schools in attendance boundaries | Grades | Distance | Rating |
|---|---|---|---|
| Loading... | |||
| Schools nearby | Grades | Distance | Rating |
|---|---|---|---|
| Loading... | |||
Data powered by ATTOM Data Solutions. Copyright© 2026. Information deemed reliable but not guaranteed.
The schools shown represent both the assigned schools and schools by distance based on local school and district attendance boundaries. Attendance boundaries change based on various factors and proximity does not guarantee enrollment eligibility. Please consult your real estate agent and/or the school district to confirm the schools this property is zoned to attend. Information is deemed reliable but not guaranteed.
SchoolDigger ® Rating
The SchoolDigger rating system is a 1-5 scale with 5 as the highest rating. SchoolDigger ranks schools based on test scores supplied by each state's Department of Education. They calculate an average standard score by normalizing and averaging each school's test scores across all tests and grades.
Coming soon properties will soon be on the market, but are not yet available for showings.