$599,800
7597 Norway Lane Lino Lakes, MN 55038
For Sale MLS# 6778683
5 beds 4 baths 3,394 sq ft Single Family
Details for 7597 Norway Lane
MLS# 6778683
Description for 7597 Norway Lane, Lino Lakes, MN, 55038
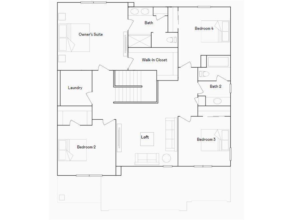
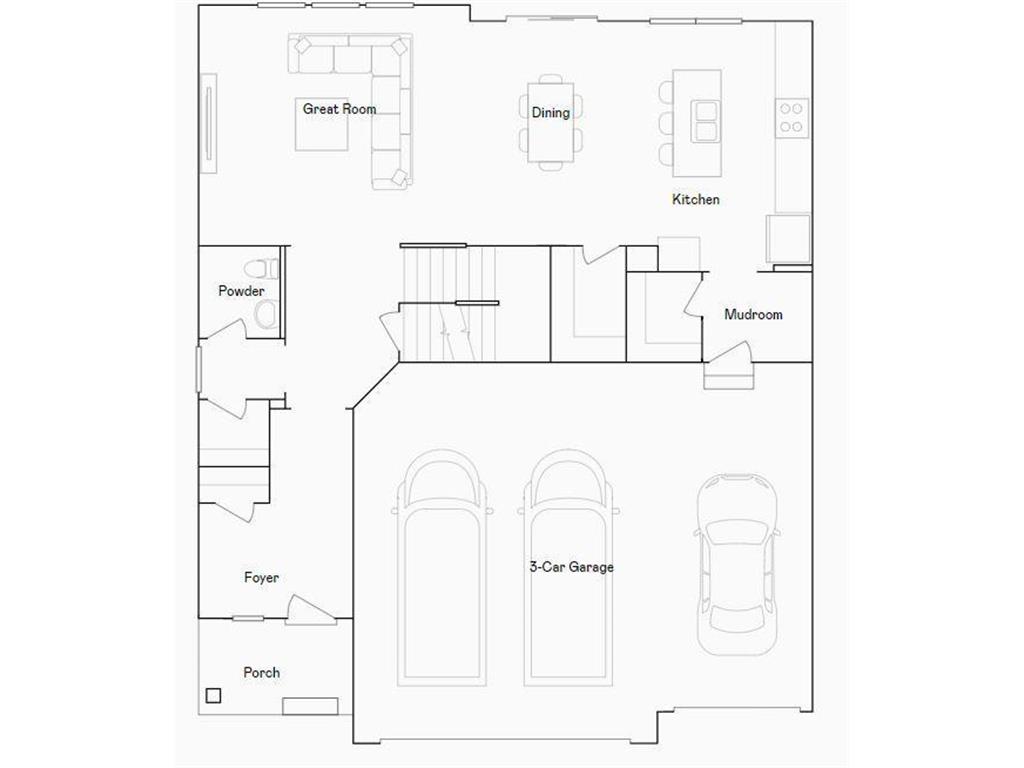
This home is complete and move-in ready! The main level features a spacious Great Room, a modern kitchen with a center island, and a dining area perfect for everyday meals or entertaining. Upstairs, enjoy a versatile loft, four bedrooms, and a private owner’s suite with a walk-in closet and en-suite bath. The finished lookout basement adds even more living space with a recreation room, fifth bedroom, and full bathroom. A three-car garage completes the home. Nestled between the Rice Creek Chain of Lakes and I-35E, Watermark offers a scenic setting with easy access to the Twin Cities.
Listing Information
Property Type: Residential, Single Family
Status: Active
Bedrooms: 5
Bathrooms: 4
Lot Size: 0.17 Acres
Square Feet: 3,394 sq ft
Year Built: 2025
Foundation: 1,094 sq ft
Garage: Yes
Stories: 2 Stories
Date Available: 12/19/2025
Construction Display: New Construction
Completion date: 2025-12-19T06:00:00Z
Subdivision: Watermark
Builder: LENNAR
County: Anoka
Days On Market: 23
Construction Status: Completed New Construction
School Information
District: 624 - White Bear Lake
Room Information
Main Floor
Dining Room: 5x14
Family Room: 17x15
Kitchen: 13x14
Upper Floor
Bedroom 1: 16x15
Bedroom 2: 12x10
Bedroom 3: 11x10
Bedroom 4: 11 x 11
Loft: 13x10
Lower Floor
Bedroom 5: 12 x 11
Recreation Room: 26 x 13
Bathrooms
Full Baths: 2
3/4 Baths: 1
1/2 Baths: 1
Additonal Room Information
Family: 2 or More,Great Room,Lower Level,Main Level
Dining: Informal Dining Room
Laundry: Washer Hookup, Laundry Room, Upper Level, Gas Dryer Hookup
Bath Description: 3/4 Primary,Full Basement,Main Floor 1/2 Bath,Upper Level Full Bath
Interior Features
Square Footage above: 2,622 sq ft
Square Footage below: 772 sq ft
Appliances: Stainless Steel Appliances, Range, Refrigerator, Air-To-Air Exchanger, Dishwasher, Disposal, Furnace Humidifier, Microwave
Basement: Finished (Livable), Daylight/Lookout Windows
Fireplaces: 1, Electric
Additional Interior Features: Walk-In Closet, Washer/Dryer Hookup, Paneled Doors, Tile Floors, Main Floor Laundry, 2nd Floor Laundry, 3 BR on One Level, 4 BR on One Level
Utilities
Water: City Water/Connected
Sewer: City Sewer/Connected
Cooling: Central
Heating: Natural Gas, Forced Air
Exterior / Lot Features
Attached Garage: Attached Garage
Garage Spaces: 3
Parking Description: Driveway - Asphalt, Attached Garage, Garage Sq Ft - 704.0
Exterior: Brick/Stone, Wood, Vinyl
Roof: Age 8 Years or Less, Asphalt Shingles
Lot Dimensions: TBD
Zoning: Residential-Single Family
Additional Exterior/Lot Features: Porch
Community Features
Community Features: Exercise Room, Other, Club House
Association Amenities: Other, Trails
HOA Dues Include: Sanitation, Shared Amenities, Other, Professional Mgmt
Homeowners Association: Yes
Association Name: Assoica
HOA Dues: $160 / Quarterly
Driving Directions
From the intersection of 35E and country Rd 14 (main Street), go W on 14, take a quick right (N) onto 21st Ave N, Right onto Watermark Way.
Financial Considerations
Tax/Property ID: TBD
Tax Year: 2025
HomeStead Description: Non-Homesteaded
A broker reciprocity listing courtesy: Lennar Sales Corp
The data relating to real estate for sale on this web site comes in part from the Broker Reciprocity℠ Program of the Regional Multiple Listing Service of Minnesota, Inc. Real estate listings held by brokerage firms other than Edina Realty, Inc. are marked with the Broker Reciprocity℠ logo or the Broker Reciprocity℠ thumbnail and detailed information about them includes the name of the listing brokers. Edina Realty, Inc. is not a Multiple Listing Service (MLS), nor does it offer MLS access. This website is a service of Edina Realty, Inc., a broker Participant of the Regional Multiple Listing Service of Minnesota, Inc. IDX information is provided exclusively for consumers personal, non-commercial use and may not be used for any purpose other than to identify prospective properties consumers may be interested in purchasing. Open House information is subject to change without notice. Information deemed reliable but not guaranteed.
Copyright 2026 Regional Multiple Listing Service of Minnesota, Inc. All Rights Reserved.
Payment Calculator
Interest rate and annual percentage rate (APR) are based on current market conditions, are for informational purposes only, are subject to change without notice and may be subject to pricing add-ons related to property type, loan amount, loan-to-value, credit score and other variables. Estimated closing costs used in the APR calculation are assumed to be paid by the borrower at closing. If the closing costs are financed, the loan, APR and payment amounts will be higher. If the down payment is less than 20%, mortgage insurance may be required and could increase the monthly payment and APR. Contact us for details. Additional loan programs may be available. Accuracy is not guaranteed, and all products may not be available in all borrower's geographical areas and are based on their individual situation. This is not a credit decision or a commitment to lend.
Sales History & Tax Summary for 7597 Norway Lane
Sales History
| Date | Price | Change |
|---|---|---|
| Currently not available. | ||
Tax Summary
| Tax Year | Estimated Market Value | Total Tax |
|---|---|---|
| Currently not available. | ||
Data powered by ATTOM Data Solutions. Copyright© 2026. Information deemed reliable but not guaranteed.
Schools
Schools nearby 7597 Norway Lane
| Schools in attendance boundaries | Grades | Distance | Rating |
|---|---|---|---|
| Loading... | |||
| Schools nearby | Grades | Distance | Rating |
|---|---|---|---|
| Loading... | |||
Data powered by ATTOM Data Solutions. Copyright© 2026. Information deemed reliable but not guaranteed.
The schools shown represent both the assigned schools and schools by distance based on local school and district attendance boundaries. Attendance boundaries change based on various factors and proximity does not guarantee enrollment eligibility. Please consult your real estate agent and/or the school district to confirm the schools this property is zoned to attend. Information is deemed reliable but not guaranteed.
SchoolDigger ® Rating
The SchoolDigger rating system is a 1-5 scale with 5 as the highest rating. SchoolDigger ranks schools based on test scores supplied by each state's Department of Education. They calculate an average standard score by normalizing and averaging each school's test scores across all tests and grades.
Coming soon properties will soon be on the market, but are not yet available for showings.