$749,000
76 Duero Street Saint Augustine, FL 32084
For Sale MLS# NS1087590
2 beds 3 baths 1,296 sq ft Single Family
Details for 76 Duero Street
MLS# NS1087590
Description for 76 Duero Street, Saint Augustine, FL, 32084
One or more photo(s) has been virtually staged. Saint Augustine beauty located in historic Lincolnville. Built in 2014, this home captures both the historic charm of St. Augustine and the modern conveniences of today. The elevated main house has two bedrooms upstairs. The primary bedroom has its own private access to the large upstairs balcony providing the perfect place to enjoy your morning coffee. Adjacent to each bedroom is a private half bath and shared shower area. The open concept downstairs is the perfect place for entertaining. The living room has plenty of natural light with several large windows. The living area flows directly into the dining and kitchen area. Quartz counter tops, stainless steel appliances and large kitchen island makes the kitchen both functional and beautiful. This property comes with a detached garage. Above the garage is a spacious studio apartment with a full bathroom and kitchenette. Perfect for visiting guests, a home office or potential rental income. There is plenty of off street parking which will accommodate multiple vehicles. Enjoying the outdoors is easy to do from either of the two inviting and spacious porches. Home generator included! This property has been beautifully landscaped with maintenance free faux grass and beautiful slate pavered walkways. Conveniently located near downtown, it is an easy stroll or bike ride to experience local restaurants, art galleries, quaint shops and historic landmarks. Less than 3 miles to Anastasia State Park and the beach. This home offers the best of Florida living in the "Ancient City" of beautiful Saint Augustine!
Listing Information
Property Type: Residential, Single Family Residence
Status: Active
Bedrooms: 2
Bathrooms: 3
Lot Size: 0.15 Acres
Square Feet: 1,296 sq ft
Year Built: 2014
Garage: Yes
Stories: 2 Story
Construction: HardiPlank Type,Wood Frame
Subdivision: Buena Esperanza Sub
Foundation: Other
County: St Johns
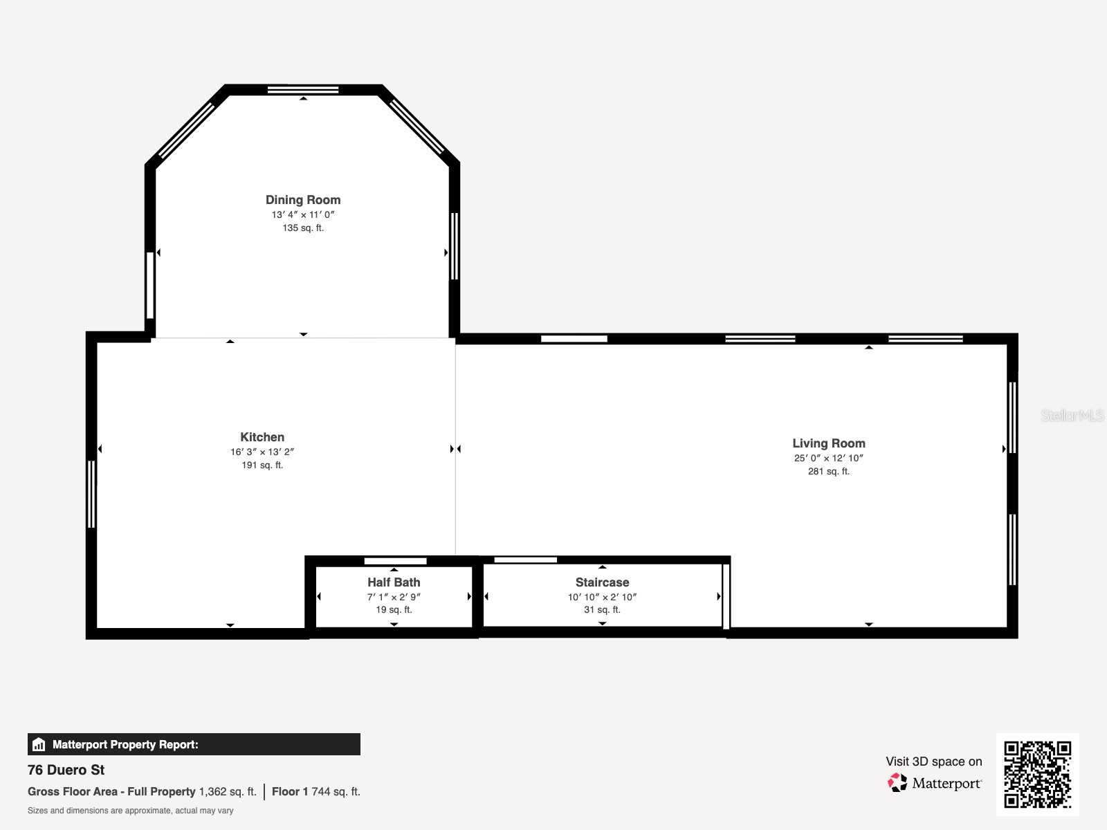
Room Information
Main Floor
Kitchen: 16x13
Dining Room: 13x11
Living Room: 25x12
Upper Floor
Bedroom 2: 13x10
Primary Bedroom: 13x10
Bathrooms
Full Baths: 1
1/2 Baths: 2
Additonal Room Information
Laundry: In Garage
Interior Features
Appliances: Microwave, Electric Water Heater, Range, Refrigerator, Washer, Range Hood, Dishwasher, Dryer
Flooring: Engineered Hardwood,Tile
Doors/Windows: Window Treatments, Blinds
Additional Interior Features: Eat-In Kitchen, Ceiling Fan(s), Window Treatments, Open Floorplan, Stone Counters
Utilities
Water: Public
Sewer: Public Sewer
Other Utilities: Electricity Connected,Municipal Utilities,Sewer Connected,Water Connected
Cooling: Ceiling Fan(s), Central Air
Heating: Central
Exterior / Lot Features
Garage Spaces: 1
Parking Description: Off Street
Roof: Metal
Fencing: Other
Additional Exterior/Lot Features: Balcony, Balcony, Covered, Front Porch
Out Buildings: Garage Apartment
Driving Directions
Head north on S Ponce De Leon Blvd. toward FL-207. Turn right onto W King St. Turn right onto Riberia St. Turn left onto Duero. 76 Duero St. will be on your left.
Financial Considerations
Terms: Cash,Conventional,FHA,VA Loan
Tax/Property ID: 212520-0000
Tax Amount: 10107
Tax Year: 2025
A broker reciprocity listing courtesy: THE KEYES COMPANY
Based on information provided by Stellar MLS as distributed by the MLS GRID. Information from the Internet Data Exchange is provided exclusively for consumers’ personal, non-commercial use, and such information may not be used for any purpose other than to identify prospective properties consumers may be interested in purchasing. This data is deemed reliable but is not guaranteed to be accurate by Edina Realty, Inc., or by the MLS. Edina Realty, Inc., is not a multiple listing service (MLS), nor does it offer MLS access.
Copyright 2026 Stellar MLS as distributed by the MLS GRID. All Rights Reserved.
Payment Calculator
Interest rate and annual percentage rate (APR) are based on current market conditions, are for informational purposes only, are subject to change without notice and may be subject to pricing add-ons related to property type, loan amount, loan-to-value, credit score and other variables. Estimated closing costs used in the APR calculation are assumed to be paid by the borrower at closing. If the closing costs are financed, the loan, APR and payment amounts will be higher. If the down payment is less than 20%, mortgage insurance may be required and could increase the monthly payment and APR. Contact us for details. Additional loan programs may be available. Accuracy is not guaranteed, and all products may not be available in all borrower's geographical areas and are based on their individual situation. This is not a credit decision or a commitment to lend.
Sales History & Tax Summary for 76 Duero Street
Sales History
| Date | Price | |
|---|---|---|
| Currently not available. | ||
Tax Summary
| Tax Year | Estimated Market Value | Total Tax |
|---|---|---|
| Currently not available. | ||
Data powered by ATTOM Data Solutions. Copyright© 2026. Information deemed reliable but not guaranteed.
Schools
Schools nearby 76 Duero Street
| Schools in attendance boundaries | Grades | Distance | Rating |
|---|---|---|---|
| Loading... | |||
| Schools nearby | Grades | Distance | Rating |
|---|---|---|---|
| Loading... | |||
Data powered by ATTOM Data Solutions. Copyright© 2026. Information deemed reliable but not guaranteed.
The schools shown represent both the assigned schools and schools by distance based on local school and district attendance boundaries. Attendance boundaries change based on various factors and proximity does not guarantee enrollment eligibility. Please consult your real estate agent and/or the school district to confirm the schools this property is zoned to attend. Information is deemed reliable but not guaranteed.
SchoolDigger ® Rating
The SchoolDigger rating system is a 1-5 scale with 5 as the highest rating. SchoolDigger ranks schools based on test scores supplied by each state's Department of Education. They calculate an average standard score by normalizing and averaging each school's test scores across all tests and grades.
Coming soon properties will soon be on the market, but are not yet available for showings.