762 Sterling Spring Road Orlando, FL 32828
Pending MLS# TB8442971
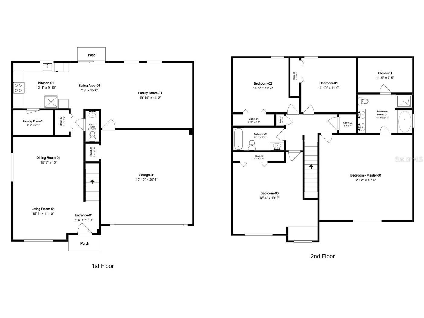
4 beds 3 baths 2,586 sq ft Single Family
Details for 762 Sterling Spring Road
MLS# TB8442971
Description for 762 Sterling Spring Road, Orlando, FL, 32828
Under contract-accepting backup offers. One or more photo(s) has been virtually staged. Welcome to this beautiful home in Orlando with great curb appeal and a well-designed layout and a NEW Roof! As you enter, the living room sits to your left, flowing seamlessly into the dining area and open kitchen, which connects to the family room—perfect for gatherings. The kitchen features stainless steel appliances and modern finishes. Fresh paint and upgraded fixtures sets the stage for your dream home. There’s one bedroom on the first floor, while the primary suite and two additional bedrooms are upstairs for privacy. Enjoy LVP and tile flooring throughout and a spacious backyard with pond access, ideal for relaxation or outdoor entertaining.
Listing Information
Property Type: Residential, Single Family Residence
Status: Pending
Bedrooms: 4
Bathrooms: 3
Lot Size: 0.13 Acres
Square Feet: 2,586 sq ft
Year Built: 2004
Garage: Yes
Stories: 2 Story
Construction: Stucco
Subdivision: Waterford Chase East Ph 02 Village
Foundation: Slab
County: Orange
School Information
Elementary: Camelot Elem
Middle: Timber Springs Middle
High: Timber Creek High
Room Information
Main Floor
Family Room: 14x19
Kitchen: 9x12
Dining Room: 10x15
Living Room: 11x15
Upper Floor
Bedroom 3: 19x18
Bedroom 2: 11x14
Bedroom 1: 11x11
Primary Bedroom: 18x20
Bathrooms
Full Baths: 2
1/2 Baths: 1
Additonal Room Information
Laundry: Laundry Room
Interior Features
Appliances: Microwave, Range, Refrigerator, Dishwasher
Flooring: Tile,Vinyl
Doors/Windows: Window Treatments
Fireplaces: Family Room
Additional Interior Features: Ceiling Fan(s)
Utilities
Water: Public
Sewer: Public Sewer
Other Utilities: Electricity Connected,Sewer Connected,Underground Utilities,Water Connected
Cooling: Ceiling Fan(s), Central Air
Heating: Central
Exterior / Lot Features
Attached Garage: Attached Garage
Garage Spaces: 2
Roof: Shingle
Community Features
Community Features: Sidewalks
Homeowners Association: Yes
HOA Dues: $175 / Quarterly
Driving Directions
From downtown Orlando, head south on North Orange Avenue, then turn left onto East Anderson Street. Merge east onto FL-408 and continue until you reach exit 23 for FL-50 East. Merge onto Colonial Drive heading east, then turn right on Avalon Park Boulevard. Turn left on Waterford Chase Parkway, then
Financial Considerations
Terms: Cash,Conventional,FHA,VA Loan
Tax/Property ID: 25-22-31-9007-00-200
Tax Amount: 6694.8
Tax Year: 2024
A broker reciprocity listing courtesy: HOMESMART
Based on information provided by Stellar MLS as distributed by the MLS GRID. Information from the Internet Data Exchange is provided exclusively for consumers’ personal, non-commercial use, and such information may not be used for any purpose other than to identify prospective properties consumers may be interested in purchasing. This data is deemed reliable but is not guaranteed to be accurate by Edina Realty, Inc., or by the MLS. Edina Realty, Inc., is not a multiple listing service (MLS), nor does it offer MLS access.
Copyright 2026 Stellar MLS as distributed by the MLS GRID. All Rights Reserved.
Sales History & Tax Summary for 762 Sterling Spring Road
Sales History
| Date | Price | |
|---|---|---|
| Currently not available. | ||
Tax Summary
| Tax Year | Estimated Market Value | Total Tax |
|---|---|---|
| Currently not available. | ||
Data powered by ATTOM Data Solutions. Copyright© 2026. Information deemed reliable but not guaranteed.
Schools
Schools nearby 762 Sterling Spring Road
| Schools in attendance boundaries | Grades | Distance | Rating |
|---|---|---|---|
| Loading... | |||
| Schools nearby | Grades | Distance | Rating |
|---|---|---|---|
| Loading... | |||
Data powered by ATTOM Data Solutions. Copyright© 2026. Information deemed reliable but not guaranteed.
The schools shown represent both the assigned schools and schools by distance based on local school and district attendance boundaries. Attendance boundaries change based on various factors and proximity does not guarantee enrollment eligibility. Please consult your real estate agent and/or the school district to confirm the schools this property is zoned to attend. Information is deemed reliable but not guaranteed.
SchoolDigger ® Rating
The SchoolDigger rating system is a 1-5 scale with 5 as the highest rating. SchoolDigger ranks schools based on test scores supplied by each state's Department of Education. They calculate an average standard score by normalizing and averaging each school's test scores across all tests and grades.
Coming soon properties will soon be on the market, but are not yet available for showings.