$155,000
7625 Sun Island Drive S #106 South Pasadena, FL 33707
For Sale MLS# TB8380070
1 beds 1 baths 600 sq ft Condo
Details for 7625 Sun Island Drive S #106
MLS# TB8380070
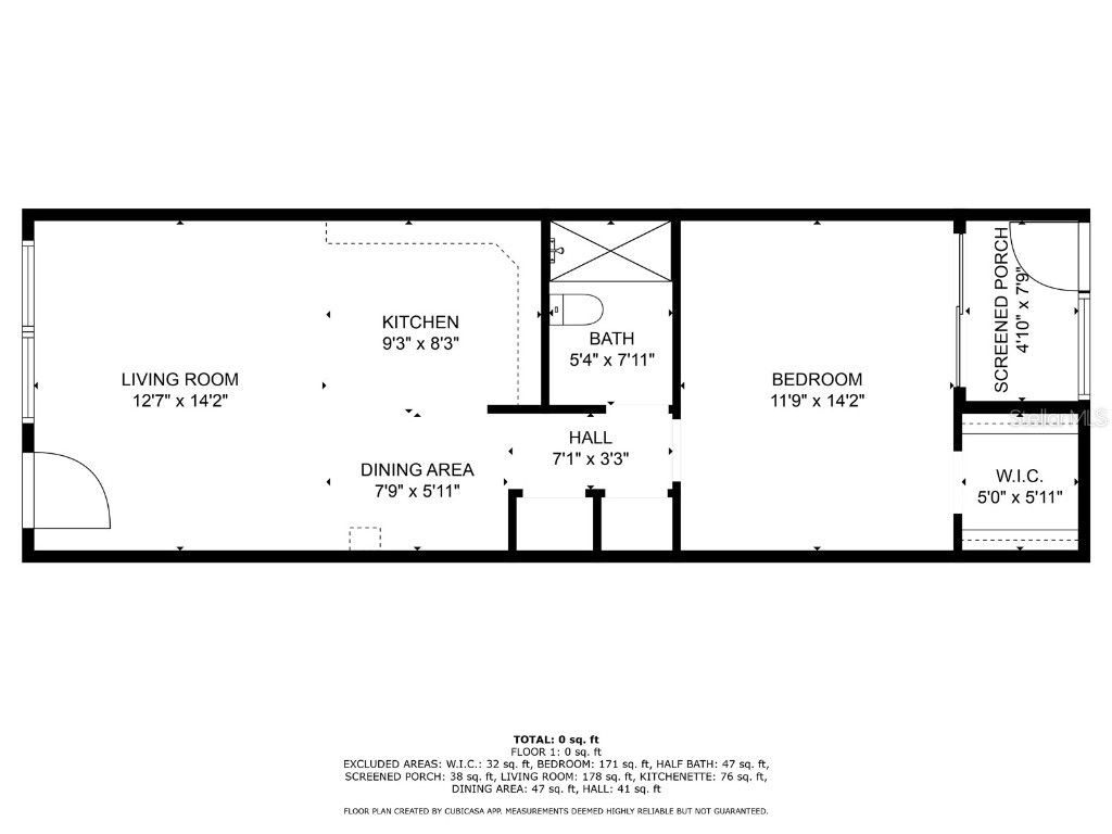
Description for 7625 Sun Island Drive S #106, South Pasadena, FL, 33707
Welcome to the beautiful community of Bay Island. This unit located in the Heritage Building is directly on the water. The unit had minimal water intrusion during Hurricane Helene with no interior damage however the condo and all the first floor units are being remediated by the association to ensure all first floor units are fully renovated and free of storm damage. The unit is nearly completed. In progress photos updated (Jan 2026). The cost of remediation is being covered by the HOA and a renovation finish package with details is available for review with COMPLETION SCHEDULED for January 2026. A weekly progress report of scheduled of repairs is being provided for clear communication. This first floor unit has an open floorplan with living, dining and kitchen. The bathroom has a walk-in shower with white subway tile. The bedroom has a walk-in closet and sliding door that opens to a screen enclosed covered porch overlooking the water! Flooring, kitchen finishes, appliances and bathroom finishes will be re-installed and covered by the community under their flood insurance coverage. Depending on timing, this may allow the buyer to choose their preferred options. This 24-hr guard gated waterfront community has an exceptional array of activities for the active resident including multiple pools & spas, tennis & pickleball courts, community room with activities such as yoga, entertainment and socials, shuffleboard courts, fitness center with sauna, waterfront tiki huts with grilling area and community marina for fishing or boating opportunities. The indoor amenities are in process of remediation and photos are pre storm for reference. Bay Island is a 55+ community. Ask for more details on this exceptional value condo. UPDATE: Cabinets installed, Drywall installed, all new baseboard & trim & doors installed, painting complete, sliding door replaced with hurricane rated sliding leading out to the waterfront, bathroom completed - only minor finishing details to complete. SELLER OPEN TO PAYING HOA FEES until unit has CO & is able to be occupied - ask for details. 2026 HOA fee is LOWER @ $539.99/month
Listing Information
Property Type: Residential, Condominium
Status: Active
Bedrooms: 1
Bathrooms: 1
Lot Size: 0.47 Acres
Square Feet: 600 sq ft
Year Built: 1973
Stories: 1 Story
Construction: Block,Stucco
Construction Display: New Construction
Subdivision: Bay Island Group 7
Foundation: Slab
County: Pinellas
Construction Status: Fixer
Room Information
Main Floor
Primary Bedroom:
Kitchen:
Living Room:
Bathrooms
Full Baths: 1
Additonal Room Information
Laundry: Common Area, Upper Level
Interior Features
Flooring: Concrete
Additional Interior Features: Main Level Primary, Open Floorplan, Kitchen/Family Room Combo
Utilities
Water: Public
Sewer: Public Sewer
Other Utilities: Cable Connected,Electricity Connected,Sewer Connected,Water Connected
Cooling: Central Air
Heating: Central, Electric
Exterior / Lot Features
Parking Description: Assigned
Roof: Other
Pool: Community, Association
Lot View: Water
Additional Exterior/Lot Features: Lighting, Balcony, Balcony, Covered, Screened, Rear Porch, Buyer Approval Required
Community Features
Community Features: Fitness, Street Lights, Gated, Sidewalks, Pool, Tennis Court(s), Clubhouse, Community Mailbox
Security Features: Gated Community, Gated with Guard
Association Amenities: Recreation Facilities, Pool, Pickleball, Sauna
HOA Dues Include: Maintenance Grounds, Sewer, Reserve Fund, Maintenance Structure, Recreation Facilities, Trash, Water, Pool(s)
Driving Directions
From Pasadena Ave S- turn into the Bay Island entrance at Sun Island Dr S. All vehicles will need to provide valid drivers license to guard. Drive straight ahead keep right, then turn right to the Heritage Building. Unit is to the left side of the elevators.
Financial Considerations
Terms: Cash
Tax/Property ID: 30-31-16-03617-000-1060
Tax Amount: 417.24
Tax Year: 2024
A broker reciprocity listing courtesy: SMITH & ASSOCIATES REAL ESTATE
Based on information provided by Stellar MLS as distributed by the MLS GRID. Information from the Internet Data Exchange is provided exclusively for consumers’ personal, non-commercial use, and such information may not be used for any purpose other than to identify prospective properties consumers may be interested in purchasing. This data is deemed reliable but is not guaranteed to be accurate by Edina Realty, Inc., or by the MLS. Edina Realty, Inc., is not a multiple listing service (MLS), nor does it offer MLS access.
Copyright 2026 Stellar MLS as distributed by the MLS GRID. All Rights Reserved.
Payment Calculator
Interest rate and annual percentage rate (APR) are based on current market conditions, are for informational purposes only, are subject to change without notice and may be subject to pricing add-ons related to property type, loan amount, loan-to-value, credit score and other variables. Estimated closing costs used in the APR calculation are assumed to be paid by the borrower at closing. If the closing costs are financed, the loan, APR and payment amounts will be higher. If the down payment is less than 20%, mortgage insurance may be required and could increase the monthly payment and APR. Contact us for details. Additional loan programs may be available. Accuracy is not guaranteed, and all products may not be available in all borrower's geographical areas and are based on their individual situation. This is not a credit decision or a commitment to lend.
Sales History & Tax Summary for 7625 Sun Island Drive S #106
Sales History
| Date | Price | |
|---|---|---|
| Currently not available. | ||
Tax Summary
| Tax Year | Estimated Market Value | Total Tax |
|---|---|---|
| Currently not available. | ||
Data powered by ATTOM Data Solutions. Copyright© 2026. Information deemed reliable but not guaranteed.
Schools
Schools nearby 7625 Sun Island Drive S #106
| Schools in attendance boundaries | Grades | Distance | Rating |
|---|---|---|---|
| Loading... | |||
| Schools nearby | Grades | Distance | Rating |
|---|---|---|---|
| Loading... | |||
Data powered by ATTOM Data Solutions. Copyright© 2026. Information deemed reliable but not guaranteed.
The schools shown represent both the assigned schools and schools by distance based on local school and district attendance boundaries. Attendance boundaries change based on various factors and proximity does not guarantee enrollment eligibility. Please consult your real estate agent and/or the school district to confirm the schools this property is zoned to attend. Information is deemed reliable but not guaranteed.
SchoolDigger ® Rating
The SchoolDigger rating system is a 1-5 scale with 5 as the highest rating. SchoolDigger ranks schools based on test scores supplied by each state's Department of Education. They calculate an average standard score by normalizing and averaging each school's test scores across all tests and grades.
Coming soon properties will soon be on the market, but are not yet available for showings.