768 E Michigan Street #78 Orlando, FL 32806 - LAKE PINELOCH
For Sale MLS# O6327521
2 beds 2 baths 1,116 sq ft Condo
Details for 768 E Michigan Street #78
MLS# O6327521
Description for 768 E Michigan Street #78, Orlando, FL, 32806 - LAKE PINELOCH
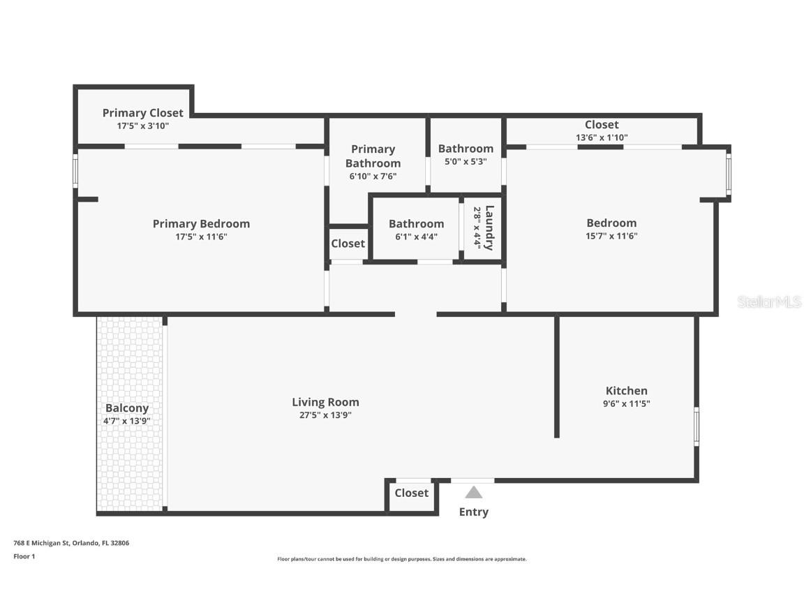
RENOVATED CONDO AND WITH AN ACCEPTED OFFER SELLER WILL INCLUDED SEVERAL MONTHS OF PAID HOA DUES. Welcome to La Costa Brave one of the few condo communities that are not only lake front but just minutes to downtown Orlando. This freshly remodeled 2/1/1 condo is ready for a new owner. Updates include NEW WINDOWS, NEW VINYL FLOORING, NEW PAINT, BASEBOARDS, NEW BATHROOM VANITIES, NEW KITCHEN CABINETS and NEW QUARTZ COUNTERTOPS. Upon entering this second-floor unit you are greeted by an open floorplan. Sliders just off the Livingroom lead to you private covered patio. From here you can take in the views of lush landscaping, the first of 2 community pools and tranquil views of Lake Pineloch. Just off the dining room area you will find a newly remodeled kitchen.....white cabinetry.....quartz counters and stainless-steel appliances create the perfect space for anyone who loves to cook. Off the living room you will find the half bath with NEW cabinetry and a private closet area which hold the washer and dryer. To the left and right of the half bath you will find two matching bedrooms with tons of closet space, vinyl floors and access to a shared bathroom. The full bath includes an updated shower area and a separate double sink vanity space. A few extras you will find in the well-appointed condo are: exposed beams on the ceiling, spacious bedrooms, large living room space and exterior storage on your private patio. La Costa Brava provides walking paths, a gym, recreational (Cantina) space which can be rented out for private parties, a separate mail space, docks, a community boat slip, 2 pools area and just minutes to shopping (SODO shopping center), schools, hospital, entertainment and so much more.
Listing Information
Property Type: Residential, Condominium
Status: Active
Bedrooms: 2
Bathrooms: 2
Lot Size: 0.20 Acres
Square Feet: 1,116 sq ft
Year Built: 1967
Stories: 1 Story
Construction: Block,Stucco
Subdivision: La Costa Brava Lakeside
Foundation: Slab
County: Orange
School Information
Elementary: Blankner Elem
High: Boone High
Room Information
Main Floor
Dining Room: 8x8
Bedroom 2: 13x15
Living Room: 14x17
Primary Bedroom: 13x17
Kitchen: 9x9
Bathrooms
Full Baths: 1
1/2 Baths: 1
Additonal Room Information
Laundry: Inside
Interior Features
Appliances: Washer, Dishwasher, Range, Refrigerator, Dryer, Microwave
Flooring: Tile,Vinyl
Accessibility: Wheelchair Access
Additional Interior Features: Split Bedrooms, High Ceilings, Built-in Features, Ceiling Fan(s), Living/Dining Room, Wood Cabinets
Utilities
Water: Public
Sewer: Public Sewer
Other Utilities: Cable Connected,Electricity Connected,Municipal Utilities,Sewer Connected,Water Connected
Cooling: Ceiling Fan(s), Central Air
Heating: Central
Exterior / Lot Features
Roof: Other
Pool: Community, Association
Lot View: Lake,Pool,Water
Additional Exterior/Lot Features: Rain Gutters, Balcony, Balcony
Waterfront Details
Standard Water Body: LAKE PINELOCH
Water Front Features: Lake Privileges
Community Features
Community Features: Dock, Sidewalks, Boat Slip, Pool, Handicap Access, Waterfront, Boat Facilities, Fishing, Fitness, Water Access
Association Amenities: Maintenance Grounds, Pool, Clubhouse, Fitness Center
HOA Dues Include: Water, Trash, Recreation Facilities, Sewer, Maintenance Grounds, Pest Control, Maintenance Structure, Pool(s)
Driving Directions
From Kaley or Curry Ford turn South on Ferncreek. Turn west on Michigan Street. La Costa Brava will be on your left. Once arrived, condo is nestled in the back left corner on the second floor
Financial Considerations
Terms: Cash,Conventional
Tax/Property ID: 01-23-29-4276-07-780
Tax Amount: 2919
Tax Year: 2024
A broker reciprocity listing courtesy: CHARLES RUTENBERG REALTY ORLANDO
Based on information provided by Stellar MLS as distributed by the MLS GRID. Information from the Internet Data Exchange is provided exclusively for consumers’ personal, non-commercial use, and such information may not be used for any purpose other than to identify prospective properties consumers may be interested in purchasing. This data is deemed reliable but is not guaranteed to be accurate by Edina Realty, Inc., or by the MLS. Edina Realty, Inc., is not a multiple listing service (MLS), nor does it offer MLS access.
Copyright 2026 Stellar MLS as distributed by the MLS GRID. All Rights Reserved.
Payment Calculator
Interest rate and annual percentage rate (APR) are based on current market conditions, are for informational purposes only, are subject to change without notice and may be subject to pricing add-ons related to property type, loan amount, loan-to-value, credit score and other variables. Estimated closing costs used in the APR calculation are assumed to be paid by the borrower at closing. If the closing costs are financed, the loan, APR and payment amounts will be higher. If the down payment is less than 20%, mortgage insurance may be required and could increase the monthly payment and APR. Contact us for details. Additional loan programs may be available. Accuracy is not guaranteed, and all products may not be available in all borrower's geographical areas and are based on their individual situation. This is not a credit decision or a commitment to lend.
Sales History & Tax Summary for 768 E Michigan Street #78
Sales History
| Date | Price | |
|---|---|---|
| Currently not available. | ||
Tax Summary
| Tax Year | Estimated Market Value | Total Tax |
|---|---|---|
| Currently not available. | ||
Data powered by ATTOM Data Solutions. Copyright© 2026. Information deemed reliable but not guaranteed.
Schools
Schools nearby 768 E Michigan Street #78
| Schools in attendance boundaries | Grades | Distance | Rating |
|---|---|---|---|
| Loading... | |||
| Schools nearby | Grades | Distance | Rating |
|---|---|---|---|
| Loading... | |||
Data powered by ATTOM Data Solutions. Copyright© 2026. Information deemed reliable but not guaranteed.
The schools shown represent both the assigned schools and schools by distance based on local school and district attendance boundaries. Attendance boundaries change based on various factors and proximity does not guarantee enrollment eligibility. Please consult your real estate agent and/or the school district to confirm the schools this property is zoned to attend. Information is deemed reliable but not guaranteed.
SchoolDigger ® Rating
The SchoolDigger rating system is a 1-5 scale with 5 as the highest rating. SchoolDigger ranks schools based on test scores supplied by each state's Department of Education. They calculate an average standard score by normalizing and averaging each school's test scores across all tests and grades.
Coming soon properties will soon be on the market, but are not yet available for showings.