7745 178th Street Chippewa Falls, WI 54729 - Wissota
For Sale MLS# 1594138
4 beds 3 baths 3,399 sq ft Single Family
Details for 7745 178th Street
MLS# 1594138
Description for 7745 178th Street, Chippewa Falls, WI, 54729 - Wissota
Experience lakefront living at its finest in this stunning 4-bed, 2+ bath home on the shores of beautiful Lake Wissota. Located in the highly sought-after Pine Harbor Cove, this property boasts over 200 feet of prime water frontage and breathtaking views from nearly every room. Currently operating as a successful VRBO, this spacious retreat offers a seamless blend of relaxation and investment potential. Inside, you’ll find a bright, open layout perfect for entertaining, while outside features expansive lakeside decks, firepit and new steps to the water. Whether you're looking for a year-round residence, vacation getaway, or income-producing property, this lake house delivers the charm, location, and lifestyle that’s hard to find on Wissota.
Listing Information
Property Type: Residential, Single Family Residence
Status: Active
Bedrooms: 4
Bathrooms: 3
Lot Size: 0.90 Acres
Square Feet: 3,399 sq ft
Year Built: 1950
Garage: Yes
Stories: 1 Story
Construction: Cedar
Foundation: Block
County: Chippewa
Days On Market: 118
School Information
District: Chippewa Falls Area Unified
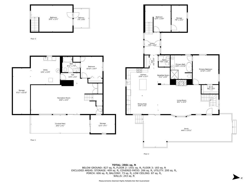
Room Information
Upper Floor
Bedroom: 21x11
Bedroom: 20x15
Kitchen: 18x13
Living Room: 30x14
Lower Floor
Bedroom: 15x14
Bedroom: 11x11
Family Room: 15x10
Bathrooms
Full Baths: 2
1/2 Baths: 1
Interior Features
Square Footage above: 2,277 sq ft
Square Footage below: 1,122 sq ft
Appliances: Dishwasher, Range, Refrigerator, Washer, Dryer, Oven, Electric Water Heater
Basement: Walk-Out Access, Finished
Fireplaces: Gas Log
Utilities
Water: Well
Sewer: Septic Tank
Cooling: Central Air
Heating: Forced Air, Baseboard
Exterior / Lot Features
Garage Spaces: 2
Parking Description: driveway, Garage Door Opener, Detached, Asphalt, Garage
Lot View: Lake
Lot Dimensions: 0 x 0 x
Zoning: Residential
Additional Exterior/Lot Features: Composite, Deck
Waterfront Details
Standard Water Body: Wissota
Water Front Features: Lake
Driving Directions
Take 29 E to hwy X. Take left on 70th then right on 185th st then right on 178th
Financial Considerations
Covenants/Deed Restrictions: Boat Lift, Dock
Tax/Property ID: 22908351462330400
Tax Amount: 7765
Tax Year: 2024
A broker reciprocity listing courtesy: Team Trillium
The data relating to real estate for sale on this web site comes in part from the Broker Reciprocity℠ Program of the Northwestern Wisconsin MLS. Real estate listings held by brokerage firms other than Edina Realty, Inc. are marked with the Broker Reciprocity℠ logo or the Broker Reciprocity℠ thumbnail and detailed information about them includes the name of the listing brokers. Edina Realty, Inc. is not a Multiple Listing Service (MLS), nor does it offer MLS access. This website is a service of Edina Realty, Inc., a broker Participant of the Northwestern Wisconsin MLS. IDX information is provided exclusively for consumers personal, non-commercial use and may not be used for any purpose other than to identify prospective properties consumers may be interested in purchasing. Open House information is subject to change without notice. Information deemed reliable but not guaranteed.
Copyright 2025 Northwestern Wisconsin MLS. All Rights Reserved.
Payment Calculator
Interest rate and annual percentage rate (APR) are based on current market conditions, are for informational purposes only, are subject to change without notice and may be subject to pricing add-ons related to property type, loan amount, loan-to-value, credit score and other variables. Estimated closing costs used in the APR calculation are assumed to be paid by the borrower at closing. If the closing costs are financed, the loan, APR and payment amounts will be higher. If the down payment is less than 20%, mortgage insurance may be required and could increase the monthly payment and APR. Contact us for details. Additional loan programs may be available. Accuracy is not guaranteed, and all products may not be available in all borrower's geographical areas and are based on their individual situation. This is not a credit decision or a commitment to lend.
Sales History & Tax Summary for 7745 178th Street
Sales History
| Date | Price | Change |
|---|---|---|
| Currently not available. | ||
Tax Summary
| Tax Year | Estimated Market Value | Total Tax |
|---|---|---|
| Currently not available. | ||
Data powered by ATTOM Data Solutions. Copyright© 2025. Information deemed reliable but not guaranteed.
Schools
Schools nearby 7745 178th Street
| Schools in attendance boundaries | Grades | Distance | Rating |
|---|---|---|---|
| Loading... | |||
| Schools nearby | Grades | Distance | Rating |
|---|---|---|---|
| Loading... | |||
Data powered by ATTOM Data Solutions. Copyright© 2025. Information deemed reliable but not guaranteed.
The schools shown represent both the assigned schools and schools by distance based on local school and district attendance boundaries. Attendance boundaries change based on various factors and proximity does not guarantee enrollment eligibility. Please consult your real estate agent and/or the school district to confirm the schools this property is zoned to attend. Information is deemed reliable but not guaranteed.
SchoolDigger ® Rating
The SchoolDigger rating system is a 1-5 scale with 5 as the highest rating. SchoolDigger ranks schools based on test scores supplied by each state's Department of Education. They calculate an average standard score by normalizing and averaging each school's test scores across all tests and grades.
Coming soon properties will soon be on the market, but are not yet available for showings.