7751 Marsala Street Clermont, FL 34714
For Sale MLS# O6361149
7 beds 6 baths 4,646 sq ft Single Family
Details for 7751 Marsala Street
MLS# O6361149
Description for 7751 Marsala Street, Clermont, FL, 34714
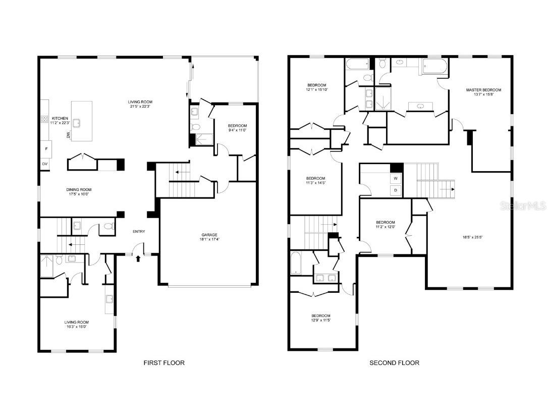
Gorgeous home at Ridgeview community, Multi-generation in-law suite, with separate entrance door, with a lot of upgrades and improvements, premium lot back to large dry pond, no neighbor behind, 7 bedrooms and 5.5 bathrooms, Low HOA fee, no CDD, NO CARPETS. with nice engineer wood flooring and wood like tiles, LED lights, ceiling fan with remote controls, crown molding, double solid wood stair case with iron balusters, upgraded closet shelves systems and lights, first floor with Casita room with cabinets and separate entrance and another guest suite and pool bathroom suites in first floor. Double stairs, On second floor, master bedroom suite and another 4 bedrooms and 2 bathrooms. Gourmet kitchen, quartz countertop in kitchen and in all bathrooms. long driveway to accommodate more car parking, Community HOA resort pool and playground park. Lanai screen enclosed and whole house gutter installed.
Listing Information
Property Type: Residential, Single Family Residence
Status: Active
Bedrooms: 7
Bathrooms: 6
Lot Size: 0.17 Acres
Square Feet: 4,646 sq ft
Year Built: 2023
Garage: Yes
Stories: 2 Story
Construction: Block
Property Attached: Yes
Subdivision: Ridgeview Phase 3
Foundation: Block
County: Lake
Room Information
Main Floor
Living Room: 24x20
Kitchen: 15x12
Upper Floor
Family Room: 29x20
Primary Bedroom: 16x14
Bathrooms
Full Baths: 5
1/2 Baths: 1
Additonal Room Information
Laundry: Laundry Room
Interior Features
Appliances: Electric Water Heater, Built-In Oven, Range Hood, Cooktop, Dishwasher, Disposal, Dryer, Microwave, Refrigerator, Washer
Flooring: Engineered Hardwood,Porcelain Tile
Doors/Windows: Blinds
Additional Interior Features: Ceiling Fan(s), Open Floorplan, Crown Molding
Utilities
Water: Public
Sewer: Public Sewer
Other Utilities: Municipal Utilities
Cooling: Central Air, Ceiling Fan(s)
Heating: Central
Exterior / Lot Features
Attached Garage: Attached Garage
Garage Spaces: 2
Roof: Shingle
Pool: Association, Community
Additional Exterior/Lot Features: Sprinkler/Irrigation, Rain Gutters
Community Features
Community Features: Pool, Playground
Association Amenities: Pool
Homeowners Association: Yes
HOA Dues: $93 / Monthly
Driving Directions
hw27 turn in to Ridgeview community, Crestavista Ave, Turn right to Marsala St, house is at right side.
Financial Considerations
Terms: Cash,Conventional,FHA,VA Loan
Tax/Property ID: 28-23-26-0012-000-34700
Tax Amount: 10578.68
Tax Year: 2025
A broker reciprocity listing courtesy: AGENT GROUP REALTY
Based on information provided by Stellar MLS as distributed by the MLS GRID. Information from the Internet Data Exchange is provided exclusively for consumers’ personal, non-commercial use, and such information may not be used for any purpose other than to identify prospective properties consumers may be interested in purchasing. This data is deemed reliable but is not guaranteed to be accurate by Edina Realty, Inc., or by the MLS. Edina Realty, Inc., is not a multiple listing service (MLS), nor does it offer MLS access.
Copyright 2025 Stellar MLS as distributed by the MLS GRID. All Rights Reserved.
Payment Calculator
Interest rate and annual percentage rate (APR) are based on current market conditions, are for informational purposes only, are subject to change without notice and may be subject to pricing add-ons related to property type, loan amount, loan-to-value, credit score and other variables. Estimated closing costs used in the APR calculation are assumed to be paid by the borrower at closing. If the closing costs are financed, the loan, APR and payment amounts will be higher. If the down payment is less than 20%, mortgage insurance may be required and could increase the monthly payment and APR. Contact us for details. Additional loan programs may be available. Accuracy is not guaranteed, and all products may not be available in all borrower's geographical areas and are based on their individual situation. This is not a credit decision or a commitment to lend.
Sales History & Tax Summary for 7751 Marsala Street
Sales History
| Date | Price | Change |
|---|---|---|
| Currently not available. | ||
Tax Summary
| Tax Year | Estimated Market Value | Total Tax |
|---|---|---|
| Currently not available. | ||
Data powered by ATTOM Data Solutions. Copyright© 2025. Information deemed reliable but not guaranteed.
Schools
Schools nearby 7751 Marsala Street
| Schools in attendance boundaries | Grades | Distance | Rating |
|---|---|---|---|
| Loading... | |||
| Schools nearby | Grades | Distance | Rating |
|---|---|---|---|
| Loading... | |||
Data powered by ATTOM Data Solutions. Copyright© 2025. Information deemed reliable but not guaranteed.
The schools shown represent both the assigned schools and schools by distance based on local school and district attendance boundaries. Attendance boundaries change based on various factors and proximity does not guarantee enrollment eligibility. Please consult your real estate agent and/or the school district to confirm the schools this property is zoned to attend. Information is deemed reliable but not guaranteed.
SchoolDigger ® Rating
The SchoolDigger rating system is a 1-5 scale with 5 as the highest rating. SchoolDigger ranks schools based on test scores supplied by each state's Department of Education. They calculate an average standard score by normalizing and averaging each school's test scores across all tests and grades.
Coming soon properties will soon be on the market, but are not yet available for showings.